Shared ownership chance near excellent transport and new village facilities.
Minimum 50% share purchase required (£172,500) with rent on remaining share
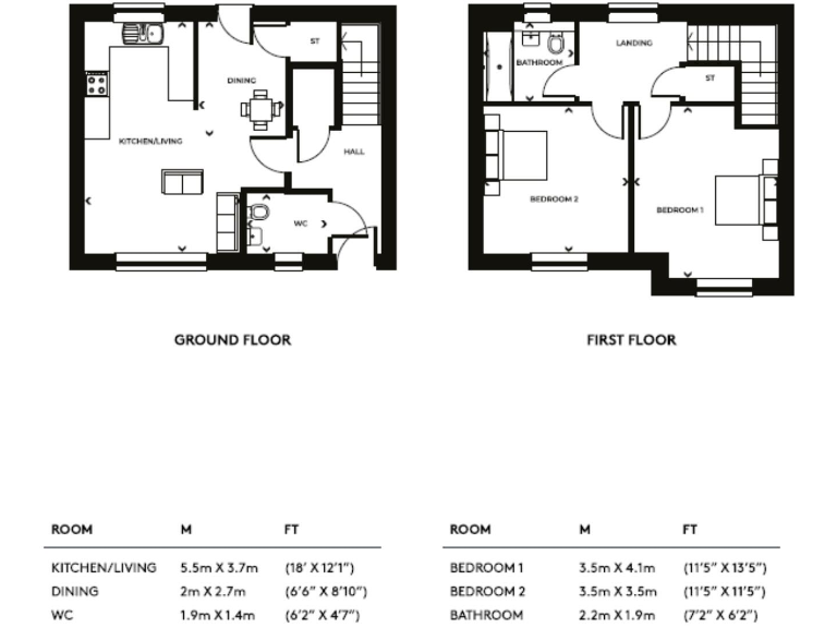
This modern two-bedroom duplex at Heyford Park offers a practical route onto the property ladder via Shared Ownership. Finished to a contemporary specification, the open-plan kitchen/living area and integrated appliances suit first-time buyers seeking a low-maintenance, ready-made home. At 855 sq ft across two storeys it provides sensible space for a couple or small family.
Buyers should note this is shared ownership with a minimum 50% purchase (£172,500) and rent payable on the remaining share. The property is leasehold (approx. 994 years remaining) and completion is estimated at the end of 2025. There is no rear garden or back door for this plot, and broadband speeds in the area are currently very slow — factors that may affect home-working or families wanting outdoor private space.
Heyford Park is a newly developed community with a village centre, parks, schools and strong transport links to Bicester and Oxford. Allocated off-street parking and low local crime add everyday convenience and reassurance. The scheme also offers the option to buy additional shares later, supporting longer-term ownership plans.
This duplex is best for first-time buyers who prioritise modern finishes, community amenities and commuter connectivity, and who are comfortable with shared ownership terms and the lack of private rear outdoor space.
2 bedroom terraced house for sale in 658 Shared Ownership - The Rupert, Upper Heyford, Bicester, Oxfordshire, OX25 — £172,500 • 2 bed • 1 bath • 855 ft²
2 bedroom apartment for sale in Bovis Apartments, Heyford Park, Upper Heyford, Bicester, Oxfordshire, OX25 — £70,000 • 2 bed • 1 bath • 753 ft²
2 bedroom apartment for sale in Bovis Apartments, Heyford Park, Upper Heyford, Bicester, Oxfordshire, OX25 — £70,000 • 2 bed • 1 bath • 753 ft²
2 bedroom apartment for sale in Apartment, Heyford Square, Upper Heyford, Bicester, Oxfordshire, OX25 — £116,000 • 2 bed • 2 bath • 774 ft²
2 bedroom semi-detached house for sale in The Bretton, Heyford Fields, Upper Heyford, Bicester, Oxfordshire, OX25 — £350,000 • 2 bed • 1 bath • 751 ft²
3 bedroom link detached house for sale in Larsen Road, Heyford Park, Upper Heyford, Bicester, OX25 — £560,000 • 3 bed • 1 bath • 1516 ft²










































