Easy, low-maintenance retirement living close to Okehampton amenities.
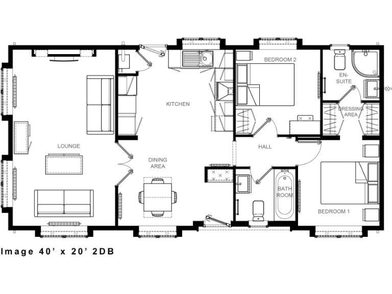
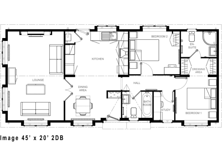
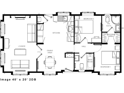
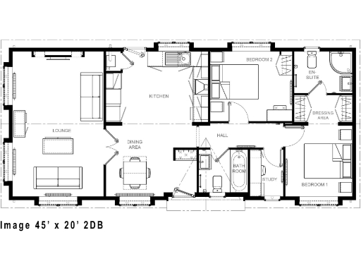
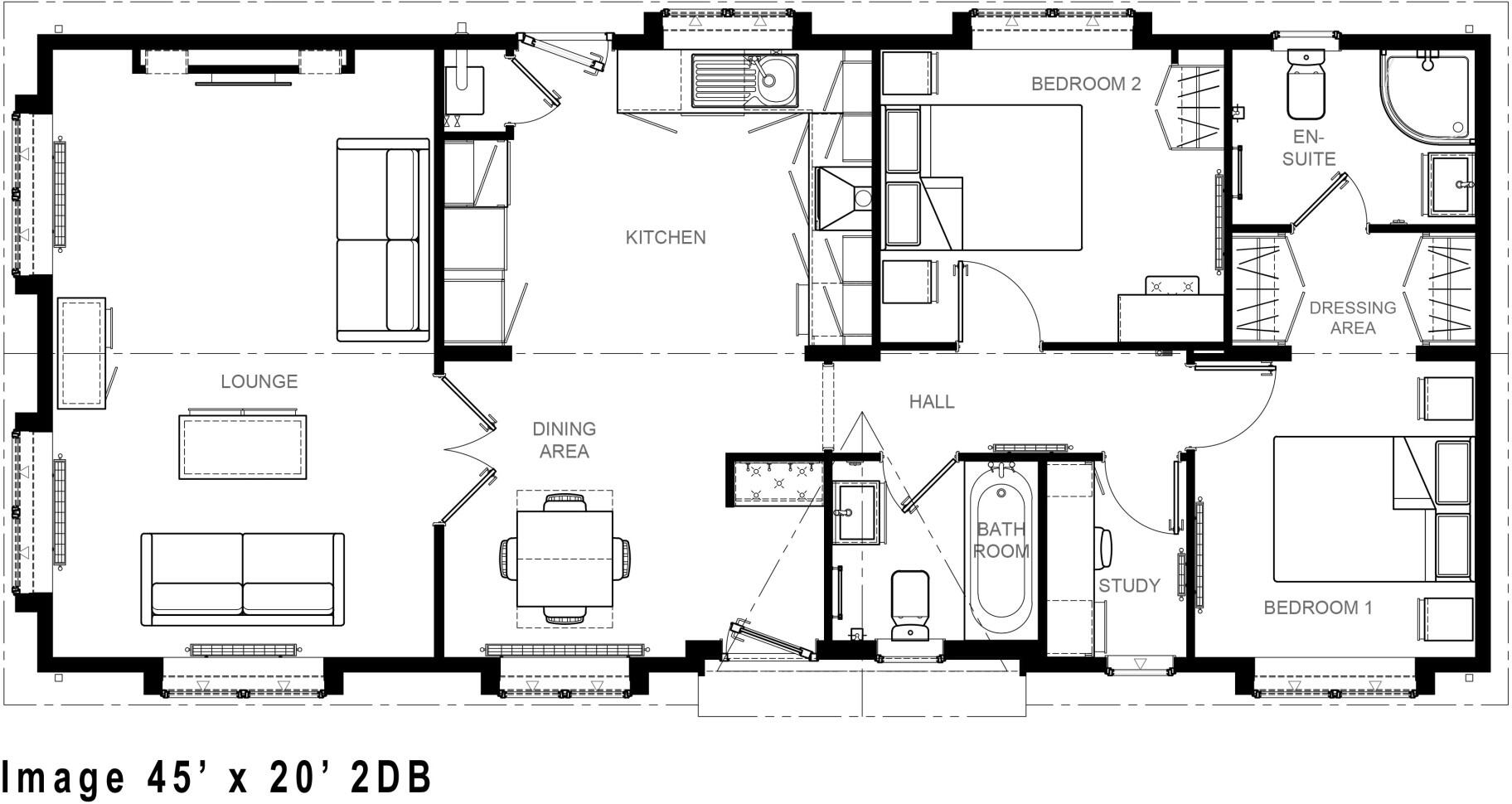
Fully furnished brand-new Omar park home, 45'x20' build
Large corner plot with decking, garden and off-street parking
Open-plan lounge/diner and modern integrated kitchen
Designed for over-50s community living, long-established park
Site fee about £200/month; ground rent reported £2,400/year
Tenure and mortgageability can be restricted for park homes
Very slow broadband in the area may limit connectivity
Local crime rate reported high — consider security measures
A brand-new, fully furnished 45'x20' park home positioned on a large corner plot in a long-established residential park for the over-50s. The modern Omar-style layout offers an open-plan living/dining area, a central kitchen with integrated appliances, two bedrooms and a bathroom — all finished to current construction standards and supplied with contemporary furnishings.
Outside, the property benefits from private decking, garden space and off-street parking. The park sits on the edge of Okehampton with countryside and Dartmoor within easy reach, yet the town centre, shops and supermarkets are walkable, making everyday life convenient while retaining a rural feel.
Practical points to note: the home sits within a managed community with site fees (about £200/month) and a reported ground rent of £2,400 per year. The tenure arrangements for park homes can restrict mortgage options and re-sale terms — virtual freehold or lease details should be checked with a solicitor. Broadband speeds are reported very slow and the local crime rate is high, which may affect some buyers’ priorities.
This property will suit someone seeking low-maintenance, single-level living in an over-50s community with ready-to-use furnishings and outdoor space. It offers a straightforward move-in option and part-exchange is available for sellers wanting a quick, uncomplicated transaction.
2 bedroom park home for sale in Okehampton, Devon, EX20 — £234,950 • 2 bed • 2 bath • 680 ft²
2 bedroom detached house for sale in Sampford Courtenay, Okehampton, EX20 — £185,000 • 2 bed • 2 bath • 892 ft²
2 bedroom park home for sale in Oaklands Residential Park, Okehampton, EX20 — £230,000 • 2 bed • 2 bath • 700 ft²
2 bedroom park home for sale in Springfield, Four seasons village, Winkleigh, Devon, EX19 — £200,000 • 2 bed • 2 bath • 920 ft²
2 bedroom park home for sale in The Beeches, Okehampton, EX20 — £215,000 • 2 bed • 2 bath • 739 ft²
2 bedroom park home for sale in The Beeches, Sampford Courtenay, EX20 — £185,000 • 2 bed • 2 bath • 786 ft²










































