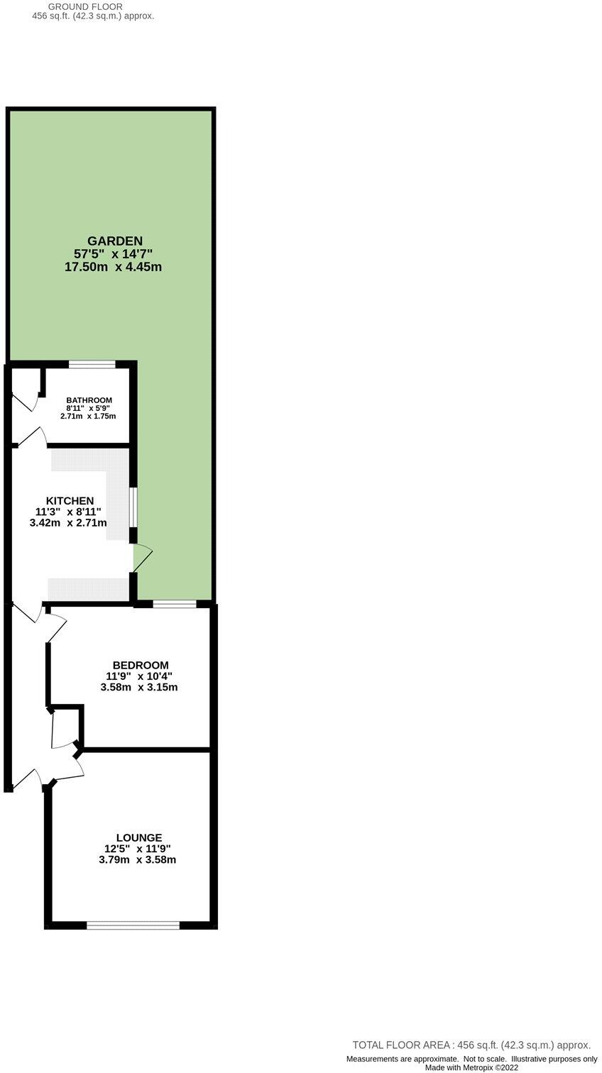
**Standout Features:**
- One-bedroom ground floor maisonette with period features
- Private rear garden, ideal for personal retreat
- 11ft fitted kitchen and modern bathroom suite
- Double-glazed windows and gas central heating
- Walking distance to Enfield Town Train Station and Shopping Centre
- Low ground rent of £100 and no service charges
- Currently generating £950/month in guaranteed rent
**Concerns:**
- Leasehold with only 77 years remaining (potential mortgage issue)
- Overgrown garden requiring maintenance
- High local crime rate
Discover this cozy ground floor one-bedroom maisonette, located in a classic Victorian terrace, perfect for first-time buyers and investors alike. Featuring an inviting 11ft fitted kitchen and a modern bathroom suite, this property blends classic charm with contemporary living. The private rear garden is a blank canvas waiting for your personal touch, creating the ideal outdoor sanctuary. 
Conveniently situated just a short walk from Enfield Town Train Station and shopping amenities, enjoy seamless access to local attractions. With a low annual ground rent of £100 and currently leased for £950 PCM, this property offers fantastic investment potential. However, keep in mind the short lease of 77 years, which may pose challenges for financing. This is a unique opportunity not to be missed—envision your future in this charming locale today!
 1 bedroom maisonette for sale in Sketty Road, Enfield, EN1 — £275,000 • 1 bed • 1 bath • 534 ft²
 1 bedroom maisonette for sale in Sketty Road, Enfield, EN1 — £275,000 • 1 bed • 1 bath • 534 ft² 1 bedroom maisonette for sale in Mandeville Road, Enfield, EN3 — £225,000 • 1 bed • 1 bath • 499 ft²
 1 bedroom maisonette for sale in Mandeville Road, Enfield, EN3 — £225,000 • 1 bed • 1 bath • 499 ft² 2 bedroom maisonette for sale in Bowood Road, Enfield, Greater London, EN3 — £300,000 • 2 bed • 1 bath • 489 ft²
 2 bedroom maisonette for sale in Bowood Road, Enfield, Greater London, EN3 — £300,000 • 2 bed • 1 bath • 489 ft² 1 bedroom maisonette for sale in Standard Road, Enfield, EN3 — £260,000 • 1 bed • 1 bath • 722 ft²
 1 bedroom maisonette for sale in Standard Road, Enfield, EN3 — £260,000 • 1 bed • 1 bath • 722 ft² 2 bedroom maisonette for sale in Gordon Road, Enfield, EN2 — £350,000 • 2 bed • 1 bath • 626 ft²
 2 bedroom maisonette for sale in Gordon Road, Enfield, EN2 — £350,000 • 2 bed • 1 bath • 626 ft² 2 bedroom maisonette for sale in Gordon Road, Enfield EN2 — £300,000 • 2 bed • 1 bath • 646 ft²
 2 bedroom maisonette for sale in Gordon Road, Enfield EN2 — £300,000 • 2 bed • 1 bath • 646 ft²






































