DL13 4HW - 5 bedroom country house for sale in Broomshields Hall, Satl…

View on Property Piper

5 bedroom country house for sale in Broomshields Hall, Satley, County Durham, DL13

Summary - Kennel Cottage, Broomshields, Satley, CO DURHAM DL13 4HW

5 bed 5 bath Country House

**Standout Features:**
- Grade II Listed country house with historical significance
- Approximately 18 acres, including landscaped gardens, a lake, and extensive woodland
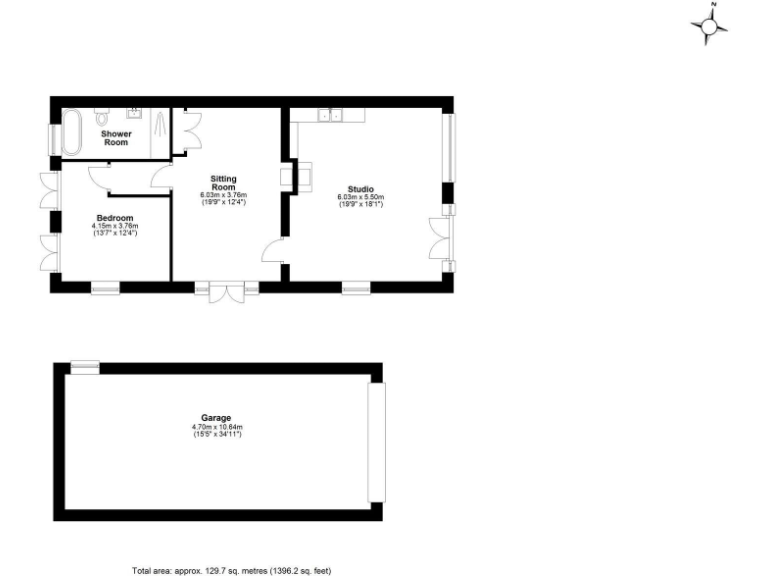
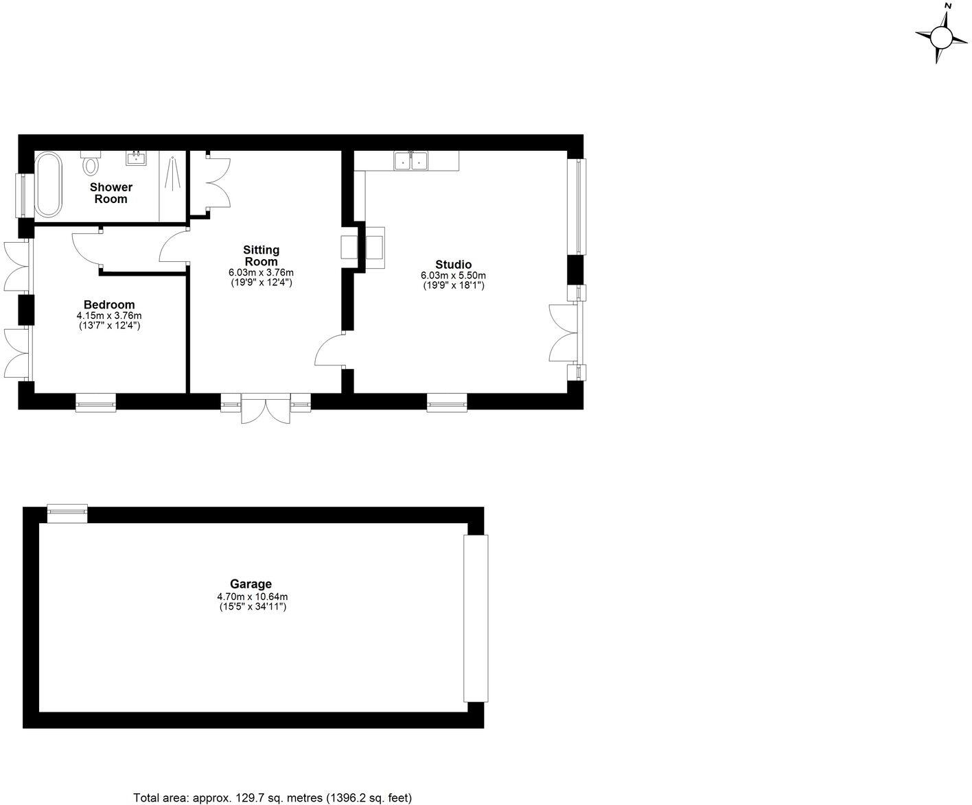
- Five spacious bedrooms with en-suite bathrooms, plus Gardener's Cottage/Studio
- All-weather tennis court and scenic walking routes
- Tastefully renovated interiors retaining original character and charm
- Convenient access to Durham and Newcastle-upon-Tyne

**Potential Concerns:**
- The property carries a listed status, which may restrict renovation and extension opportunities
- Average broadband speed
- Limited local amenities

Nestled in the tranquil beauty of the Durham Dales, Broomshields Hall is an exquisite Grade II Listed country retreat offering a harmonious blend of historic charm and modern comfort. Boasting over 6,700 sq. ft. of living space, the home features five generously sized bedrooms, three with en-suite bathrooms, and elegant reception areas adorned with original woodwork and wood-burning stoves. Imagine entertaining guests in the grand drawing room or enjoying serene afternoons in the scenic gardens, which stretch over six acres and include a tranquil lake and all-weather tennis court.

This remarkable estate, set on approximately 18 acres of beautifully landscaped grounds and woodlands, promises endless enjoyment for nature lovers and those who appreciate privacy. The separate Gardener’s Cottage adds a versatile space that can serve as a guest suite or art studio, while ample outdoor areas provide potential for gardening or recreational activities. Although the home is steeped in elegance, the listed status may limit future modifications, so discerning buyers should consider this aspect. With low crime rates and excellent local schools nearby, Broomshields Hall offers an idyllic setting for families or those seeking a peaceful retreat—don't miss the chance to own this exclusive countryside gem!

Property Details

Brochure Descriptions

Image Descriptions

Floorplan Description

Rooms

Textual Property Features

Detected Visual Features

EPC Details

Nearby Schools

Nearest Bars And Restaurants

,,,,}

Nearest General Shops

,,}

Nearest Grocery shops

,,}

Nearest Supermarkets

,,}

Nearest Religious buildings

,,}

Nearest Medical buildings

,,,}

Nearest Leisure Facilities

,,,,}

Nearest Tourist attractions

,,}

Nearest Train stations

,,,,}

Nearest Bus stations and stops

,,,,}

Nearest Hotels

,,}

Tags

Local Market Stats

Similar Properties

Meta

High Res Images

Compatible Images

Low res Images

Thumbnails

Raw Images

High Res Floorplan Images

Compatible Floorplan Images

Low res Floorplan Images

FloorplanImages Thumbnail

Raw Floorplan Images