**Standout Features:**
- Characterful single-storey stone conversion
- Grade II Listed property with origins dating back to 1750
- Tranquil location overlooking the village green
- Private low-maintenance walled garden with a timber summerhouse
- Excellent commuter access to Newcastle and Carlisle
- Generously sized rooms with vaulted ceilings and exposed beams
**Potential Downsides:**
- Listed status may restrict extensive renovations or extensions
- Located in a more remote area with average mobile and broadband services
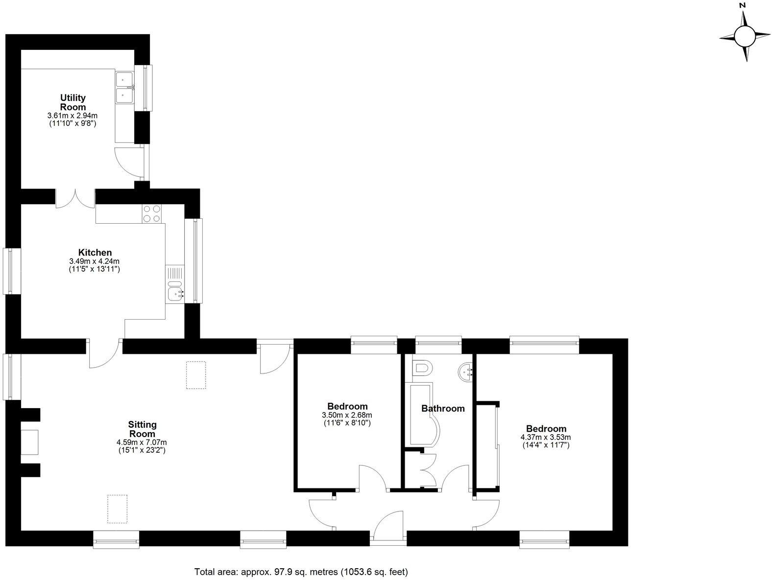
Welcome to Blacksmith’s Cottage, a delightful detached stone home nestled in the peaceful village of Great Whittington, Northumberland. With a rich history dating back to 1750, this Grade II Listed property boasts stunning character elements including vaulted ceilings, exposed beams, and an eye-catching stone inglenook fireplace that anchors the generous sitting room. The thoughtfully renovated interiors offer modern comfort while preserving their historic charm, featuring two spacious double bedrooms, a practical kitchen with integrated appliances, and a utility room that adds convenient storage and workspace.
Step outside to your private walled garden, a serene retreat enriched with mature planting and a cozy summerhouse - perfect for relaxing or entertaining. Living in this idyllic setting, you'll enjoy picturesque countryside views while being within easy reach of Newcastle and Carlisle via well-connected transport links. Though the cottage's listed status may limit extensive renovations, it provides the perfect opportunity for those looking to add personal touches without compromising on character. Whether you’re a first-time buyer seeking a tranquil escape, a small family, or an investor looking for rental potential, Blacksmith’s Cottage offers a rare chance to own a piece of history in a charming village setting. Don’t wait – properties like this don’t stay on the market for long!
5 bedroom cottage for sale in Garden Cottage, Close House Estate, Heddon-On-The-Wall, Northumberland, NE15 — £1,350,000 • 5 bed • 2 bath • 3473 ft²
2 bedroom cottage for sale in Humshaugh, Hexham, NE46 — £335,000 • 2 bed • 2 bath • 730 ft²
2 bedroom end of terrace house for sale in Shaw House Cottages, Newton, Stocksfield, NE43 — £199,500 • 2 bed • 1 bath • 920 ft²
3 bedroom detached house for sale in Coalburns, Greenside, NE40 — £450,000 • 3 bed • 2 bath
2 bedroom bungalow for sale in Ingoe, Newcastle upon Tyne, NE20 — £375,000 • 2 bed • 2 bath • 1324 ft²
2 bedroom cottage for sale in St. Helens Street, Corbridge, NE45 — £260,000 • 2 bed • 1 bath • 896 ft²


















































