Generous period home with garage, central village location and development potential.
No onward chain — ready for prompt completion
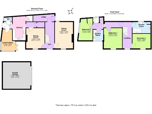
Three double bedrooms and two shower rooms (one recently refurbished)
Approximately 1,833 sq ft with high ceilings and sash windows
Three reception rooms — flexible for office, playroom or dining
Sunny, private rear garden — small, low-maintenance plot
Large double garage plus off-street parking for multiple cars
Planning/applications available showing improvement potential
Medium flood risk and expensive council tax to note
This substantial Victorian detached house on Wheatley High Street combines period character with contemporary updates across approximately 1,833 sq ft. Offered with no onward chain, the property provides flexible living with three reception rooms, three double bedrooms and two shower rooms — one recently refurbished — suited to family life or multi-use space such as home office and playroom.
High ceilings, sash windows and traditional fireplaces give strong character while the living spaces feel bright and well-proportioned. The kitchen opens to a sunny, private rear garden that catches the light through much of the day; outdoor space is compact but easy to maintain. A large double garage and off-street parking add practical value in this central village location.
Plans and applications showing potential improvement or redevelopment options are available to view, offering scope for further enhancement or extension subject to consents. The house sits in a very affluent area with low crime, good broadband and excellent mobile signal — helpful for commuters and those working from home. Local schools are all rated Good and amenities are within easy reach.
Notes of caution are straightforward: the plot is relatively small for the property’s size, council tax is described as expensive, and the site has a medium flood risk which should be investigated by buyers and insurers. For purchasers wanting a generous character home in Wheatley with scope to personalise, this is a rare, chain-free opportunity.
2 bedroom terraced house for sale in London Road, Wheatley, OX33 — £295,000 • 2 bed • 1 bath • 1319 ft²
2 bedroom end of terrace house for sale in Church Road, Wheatley, Oxford, OX33 — £395,000 • 2 bed • 2 bath • 963 ft²
3 bedroom semi-detached house for sale in Kiln Lane, Wheatley, OX33 — £520,000 • 3 bed • 1 bath • 1012 ft²
3 bedroom semi-detached house for sale in London Road, Wheatley, Oxfordshire, OX33 — £525,000 • 3 bed • 2 bath • 1290 ft²
5 bedroom detached house for sale in Old Road, Wheatley, OX33 — £850,000 • 5 bed • 3 bath • 1748 ft²
5 bedroom detached house for sale in Kellys Road, Oxford, OX33 — £550,000 • 5 bed • 3 bath • 1325 ft²


















































