Spacious family living with large garden and multi-car parking on a generous plot.
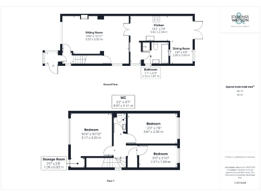
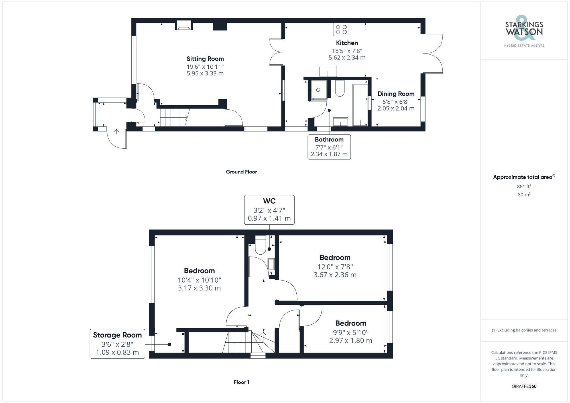
- Extended three-bedroom semi-detached layout with versatile reception rooms
- 19' dual-aspect sitting room; 18' open-plan kitchen/diner with integrated appliances
- Landscaped, private and enclosed rear garden; large plot
- Driveway parking for multiple vehicles; generous frontage and shingled drive
- Ground-floor four-piece bathroom; first-floor two-piece WC
- LPG boiler heating and solar panels; EPC rated F — energy upgrades likely needed
- Cavity walls assumed uninsulated; double glazing age unknown
- Local area affluent but recorded above-average crime — check local stats
This extended three-bedroom semi-detached home sits on a generous plot in Costessey, offering a practical layout for family life. A bright 19' dual-aspect sitting room flows through double doors into an 18' open-plan kitchen/dining space with integrated appliances and French doors to a landscaped, private garden — ideal for indoor-outdoor living and family meals.
The ground floor includes a sizable four-piece bathroom and useful enclosed porch, while upstairs has three bedrooms and a convenient first-floor WC. Driveway parking for multiple vehicles and additional off-street space add real convenience for families with more than one car.
There are clear strengths and some straightforward improvements to consider. The property has LPG-fired central heating, double glazing of unknown age, solar panels, and cavity walls assumed to lack insulation; energy performance is currently low (EPC rating F), so insulating and heating upgrades would improve comfort and running costs. The area is described as very affluent overall but records above-average local crime, which some buyers will want to investigate further.
Local schools include Good and Outstanding options nearby, and the home is freehold with no flood risk and affordable council tax. For buyers looking to move in and improve value through energy upgrades and cosmetic updates, this property balances immediate family-friendly spaces with practical potential.
3 bedroom detached house for sale in Hill Road, Costessey, Norwich, NR5 — £525,000 • 3 bed • 2 bath • 2441 ft²
3 bedroom semi-detached house for sale in Norwich Road, Costessey, Norwich, NR5 — £270,000 • 3 bed • 1 bath • 664 ft²
4 bedroom semi-detached house for sale in Britannia Way, Norwich, NR5 — £300,000 • 4 bed • 2 bath • 1071 ft²
3 bedroom detached house for sale in Sunny Close, New Costessey, NR5 — £325,000 • 3 bed • 1 bath • 668 ft²
3 bedroom semi-detached house for sale in Dereham Road, New Costessey, NR5 — £375,000 • 3 bed • 1 bath • 1272 ft²
3 bedroom semi-detached house for sale in Redpoll Road, Costessey, NR8 — £270,000 • 3 bed • 2 bath • 1105 ft²






















































































































