Spacious two-bedroom Victorian garden flat with high ceilings and private landscaped garden.
- Victorian garden flat with high ceilings and original period features
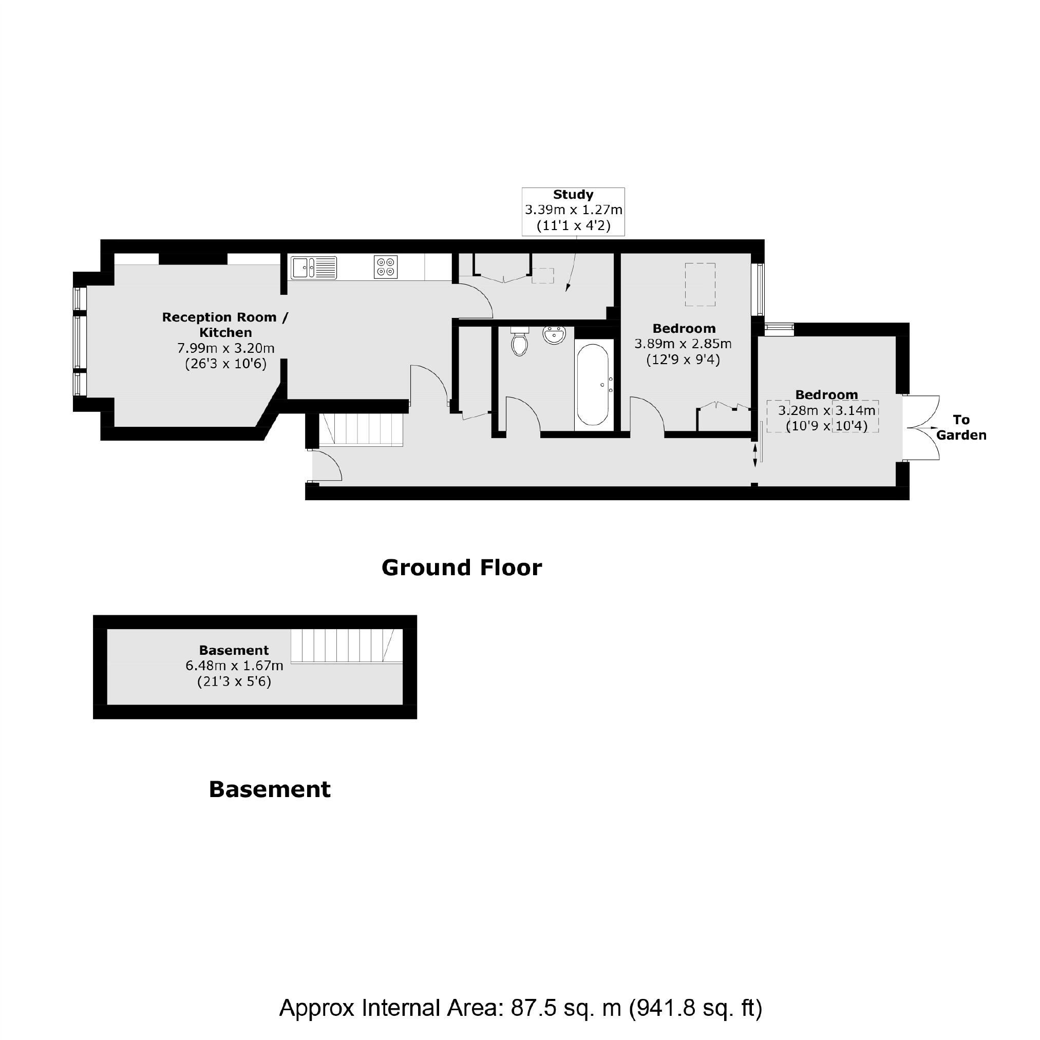
- Spacious open-plan kitchen/living, bespoke larder and built-in storage
- Private landscaped garden and usable basement for storage
- Two double bedrooms plus study; 941 sq ft overall
- Energy rating C; double glazing and mains gas central heating
- Share of freehold tenure provides ownership control
- Council Tax Band E — above-average running costs
- High local crime rate; consider security and local surveys
A beautifully appointed Victorian garden flat on Kingscourt Road, blending period character with high-spec contemporary finishes. The open-plan living and kitchen area, bespoke storage and high ceilings create a bright, spacious feel across the 941 sq ft layout. Two double bedrooms and a study suit a couple, small family or professionals wanting home and workspace.
The flat benefits from a recently landscaped private garden and a usable basement, offering valuable outdoor and storage space uncommon for central flats. Energy performance is a solid C, double glazing is fitted and mains gas boiler heating serves radiator systems. Share of freehold tenure adds ownership stability.
Practical points to note: the property sits in a high-crime area and council tax is above average (Band E). The building’s solid-brick Victorian construction likely has little cavity insulation, so further insulation works could improve comfort and running costs. Buyers should verify all details and survey for any basement damp or maintenance needs before purchase.
Location is a major selling point: Kingscourt Road sits between Streatham High Road and Tooting Bec Common, with easy access to local independent shops, cafés, and good transport links to Streatham Hill, Streatham and Brixton for wider London connections. Several highly regarded schools are nearby, making this attractive to families seeking a well-connected, characterful home.
2 bedroom flat for sale in Kingscourt Road, Streatham, London, SW16 — £450,000 • 2 bed • 1 bath • 551 ft²
1 bedroom apartment for sale in Kingscourt Road, London, SW16 — £435,000 • 1 bed • 1 bath • 762 ft²
2 bedroom flat for sale in Kingscourt Road, Streatham, London, SW16 — £375,000 • 2 bed • 1 bath • 559 ft²
2 bedroom flat for sale in Kingscourt Road, Streatham, SW16 — £495,000 • 2 bed • 1 bath • 779 ft²
2 bedroom flat for sale in Kingscourt Road, Streatham, London, SW16 — £575,000 • 2 bed • 1 bath • 780 ft²
2 bedroom flat for sale in Babington Road, Streatham, London, SW16 — £475,000 • 2 bed • 1 bath • 853 ft²


































































