Two-bedroom starter with extension and parking potential near Grove Park station.
Chain-free end-of-terrace on larger-than-average plot
Chain-free two-bedroom end-of-terrace set on a larger-than-average plot, close to Grove Park station and local amenities. The house requires renovation throughout but offers clear potential to add value with an extension to the rear and possible off-street parking to the front, both subject to planning permission.
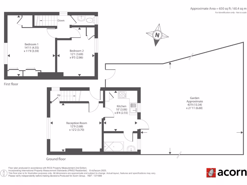
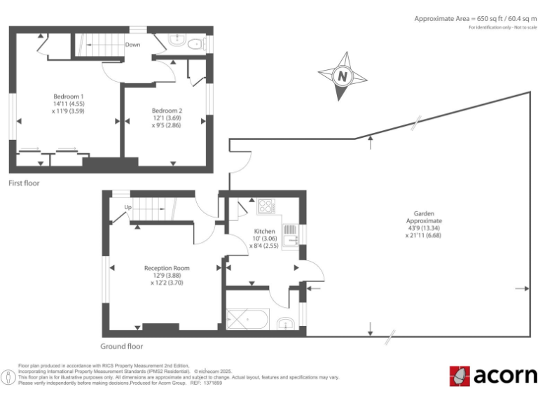
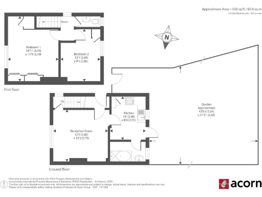
Internally the property provides an entrance lounge, small fitted kitchen, downstairs bathroom, two double bedrooms and an additional WC upstairs. The home has double glazing and gas central heating; the solid brick walls are likely uninsulated and will benefit from modern upgrades. At around 650 sq ft this is an average-sized starter home with scope to reconfigure and modernise.
Outside there are manageable front and rear gardens; the rear garden is large enough to support a good-size extension while the front could be altered to create parking (planning needed). The property sits in a mixed urban area with good schools nearby, fast broadband and excellent mobile signal, though the local area records above-average crime and high deprivation, which buyers should weigh against the price and improvement potential.
This property will suit a first-time buyer or small family willing to carry out works to create a comfortable, updated home and capture the uplift from permitted improvements. Buyers seeking a move-in-ready home should be aware of the renovation required before occupying.
2 bedroom semi-detached house for sale in Keedonwood Road, Bromley, BR1 — £380,000 • 2 bed • 1 bath • 929 ft²
2 bedroom house for sale in Shroffold Road, Bromley, BR1 — £400,000 • 2 bed • 1 bath • 808 ft²
2 bedroom terraced house for sale in Geraint Road, Grove Park, Bromley, BR1 — £425,000 • 2 bed • 1 bath • 808 ft²
2 bedroom end of terrace house for sale in Ballamore Road, Bromley, BR1 — £400,000 • 2 bed • 1 bath • 662 ft²
2 bedroom terraced house for sale in Gittens Close, Bromley, BR1 — £375,000 • 2 bed • 1 bath • 728 ft²
2 bedroom terraced house for sale in Castleton Road, Eltham, SE9 — £400,000 • 2 bed • 1 bath • 919 ft²






























































