Renovated detached house with private garden and versatile loft space.
Five bedrooms across three storeys, approx. 1,539 sq ft
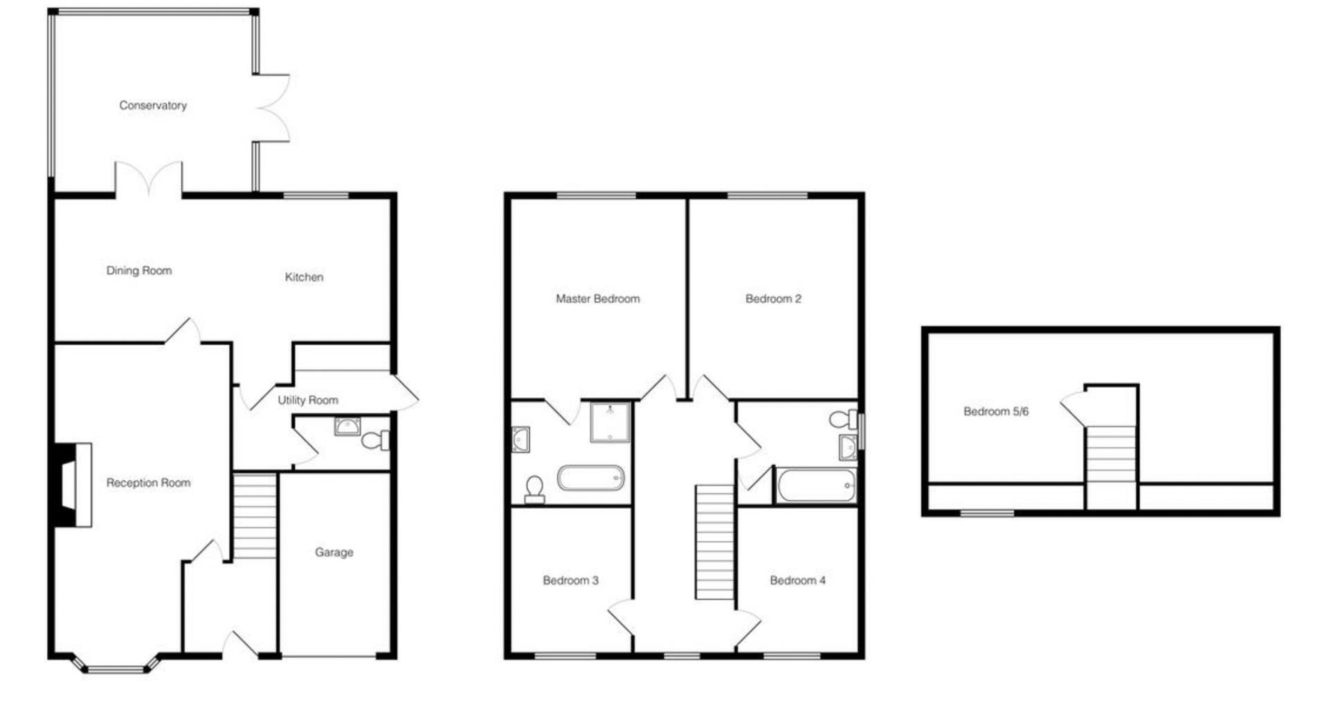
A spacious five-bedroom detached house on Church Lane, recently renovated and arranged over three floors for flexible family living. The ground floor centres on a bright entrance hall, a characterful living room with exposed beams and log burner, a refitted open-plan kitchen/diner, conservatory, utility and guest cloakroom — ideal for everyday family routines and entertaining. The rear garden is private and framed by open countryside, offering a safe play area and peaceful outlook.
The first-floor master suite benefits from a luxurious en suite with freestanding bath and separate shower; three further double bedrooms and a contemporary family bathroom serve the main floor. The second-floor open-plan room provides versatile space for a large bedroom, home office or two smaller rooms depending on need, though buyers should allow for partitioning if two separate rooms are required.
Outside, there is off-road parking for at least two cars plus an integral single garage. The property is freehold, in a very affluent area with fast broadband and excellent mobile signal — helpful for home working and commuting. Local primary schools rated Good are nearby, and Junction 22 of the M1 is around four miles away for straightforward travel to Leicester, Loughborough and Nottingham.
Practical points to note: the home has been updated throughout but offers only two bathrooms for five bedrooms, which may be a consideration for larger families. Crime is average locally. Overall, this is a well-presented, characterful family house that combines recent modernisation with countryside setting and flexible accommodation.
5 bedroom detached house for sale in Church Lane, Whitwick, LE67 — £360,000 • 5 bed • 2 bath • 1335 ft²
4 bedroom detached house for sale in Church Lane, Whitwick, LE67 — £450,000 • 4 bed • 3 bath • 1754 ft²
3 bedroom detached house for sale in School Lane, Whitwick, Coalville, Leicestershire, LE67 — £310,000 • 3 bed • 2 bath • 1255 ft²
4 bedroom detached house for sale in Parsonwood Hill, Whitwick, LE67 — £575,000 • 4 bed • 3 bath
5 bedroom detached house for sale in New Zealand Lane, Queniborough, Leicester, Leicestershire, LE7 — £650,000 • 5 bed • 3 bath • 1951 ft²
5 bedroom detached house for sale in Nurseryman Way, Rearsby, Leicester, Leicestershire, LE7 — £575,000 • 5 bed • 3 bath • 2233 ft²


































































































