**Standout Features:**
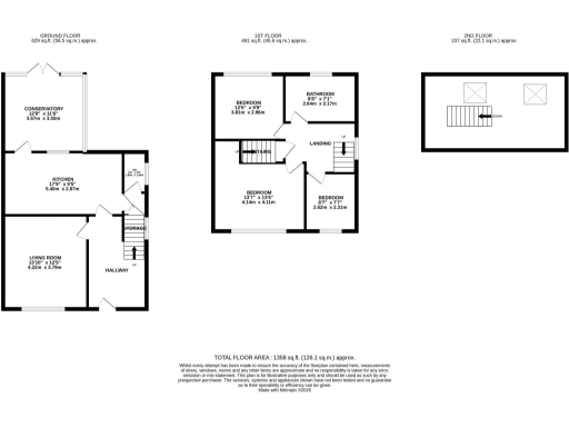
- Spacious 4-bedroom, 2-bathroom semi-detached home
- Conservatory and large gardens complete with patio and decking
- Well-maintained modern kitchen with integrated appliances
- Convenient off-street parking and good transport links
- Excellent local schools and amenities nearby
Nestled in a serene residential area, this charming semi-detached home boasts 1,358 square feet of living space, perfect for families seeking comfort and accessibility. The spacious living room, illuminated by a large front window, flows beautifully into a modern kitchen equipped with integrated appliances and easy access to a welcoming conservatory. Featuring four generous double bedrooms and two well-appointed bathrooms, this property is ideal for family living.
The outdoor space is a true highlight, showcasing a stunning garden featuring both patio and decking areas, perfect for summer gatherings or quiet evenings. Boasting a well-connected location near major transport links and a variety of shops, this home also sits within reach of reputable local schools.
While the property is in good condition, potential buyers should note that the first floor shower room plumbing is already in place for a possible bath addition. A wealth of opportunities for personal touches and renovations awaits, making this a gem in a competitively priced housing market at £210,000. Don't miss your chance to secure this family-friendly retreat in a sought-after neighborhood!







































































































