Chain-free single-level home with garage and sunny west garden.
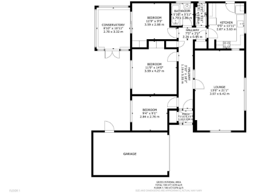
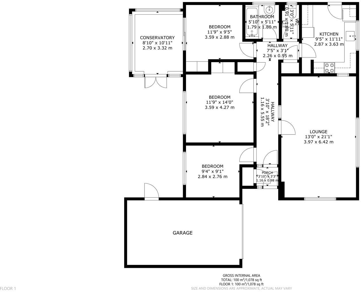
Detached single-storey bungalow with three bedrooms
This detached three-bedroom bungalow on Milland Road offers a single-storey layout that suits downsizers or anyone seeking one-level living with scope to personalise. The light, spacious lounge and conservatory open onto a west-facing rear garden that catches afternoon sun, while a detached garage and off-road parking add everyday convenience.
The property is sold chain free and includes a practical kitchen, separate WC and a generous entrance hall linking the principal rooms. Room sizes are comfortable for a bungalow of this era, and modern communications are strong — excellent mobile signal and fast broadband are already available.
Important to note: the house is in need of updating throughout. Fixtures, finishes and some sanitary fittings are dated, and the home will suit a buyer prepared to carry out cosmetic refurbishment or a more extensive modernisation project. There is a single bathroom only, which may be a consideration for some households.
Set in an affluent, low-crime suburb close to local shops, bus links and primary schools, this property represents a straightforward refurbishment opportunity with immediate one-floor living, garden space and garage parking. Viewings are advised to assess potential and the required works.
2 bedroom detached bungalow for sale in Mill Road, Hailsham, BN27 — £300,000 • 2 bed • 1 bath • 829 ft²
3 bedroom bungalow for sale in Hawkswood Road, Hailsham, East Sussex, BN27 — £400,000 • 3 bed • 2 bath • 1184 ft²
2 bedroom semi-detached bungalow for sale in Oldfield Crescent, Hailsham, BN27 — £289,950 • 2 bed • 1 bath • 751 ft²
3 bedroom detached bungalow for sale in Ditchling Way, Hailsham, BN27 — £385,000 • 3 bed • 2 bath • 911 ft²
2 bedroom detached bungalow for sale in The Drive, Hailsham, BN27 — £300,000 • 2 bed • 1 bath • 887 ft²
3 bedroom detached bungalow for sale in Cameron Close, Hailsham, BN27 — £400,000 • 3 bed • 1 bath • 842 ft²






















































































