Quiet village location with parking for two and woodland on the doorstep.
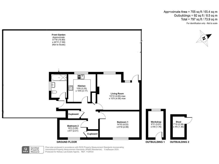
Ground-floor maisonette with private garden and patio
This ground-floor two-bedroom maisonette sits at the end of a quiet cul-de-sac in Lurgashall and offers an unusually generous private garden and off-road parking for two cars — a rare find for an apartment. The sitting/dining room opens through patio doors onto a covered area and lawn, making outdoor entertaining straightforward; there’s also a brick workshop/shed and raised beds for easy gardening.
Inside are two double bedrooms, a fitted kitchen with integrated oven and ceramic hob, and a re-fitted family bathroom with shower over bath. The home has double glazing and an oil-fired boiler serving radiators. Backing onto woodland within the South Downs National Park, the location gives immediate access to countryside walks while local village amenities and schools are within easy reach.
Practical points to note: the property is leasehold with 178 years remaining, an annual service charge of £287.73 and a ground rent of £10 per year. Heating runs on oil (individual supply), broadband speeds are slow in the area, and some interior elements are mid-20th-century in style and may benefit from cosmetic updating over time.
For a first-time buyer seeking a low-maintenance ground-floor home with private outside space and parking, this maisonette offers good long-term appeal and village living in the South Downs. Be aware of the oil heating and broadband limits when comparing running costs and lifestyle needs.
2 bedroom flat for sale in Cardew Road, Liss, GU33 — £285,000 • 2 bed • 1 bath • 747 ft²
2 bedroom maisonette for sale in Badgers Way, Loxwood, Billingshurst, RH14 0TJ, RH14 — £210,000 • 2 bed • 1 bath • 611 ft²
2 bedroom maisonette for sale in Clappers Meadow, Alfold, GU6 — £270,000 • 2 bed • 1 bath • 682 ft²
3 bedroom maisonette for sale in St. Christophers Road, Haslemere, Surrey, GU27 — £315,000 • 3 bed • 1 bath • 840 ft²
2 bedroom maisonette for sale in Chilcroft Road, Haslemere, GU27 — £250,000 • 2 bed • 1 bath • 424 ft²
1 bedroom maisonette for sale in Border End, Border Road, Haslemere, Surrey, GU27 — £150,000 • 1 bed • 1 bath • 541 ft²


























































