Period three-bed with garage and garden — renovation opportunity close to schools..
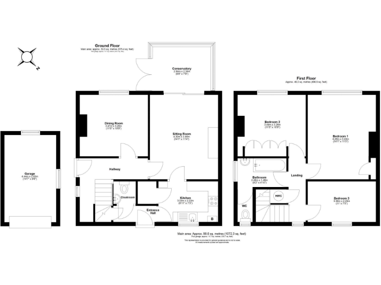
Three bedrooms with two reception rooms and conservatory
A mature three-bedroom semi-detached stone house on the Bath side of Bradford on Avon, set on a generous plot with front and rear gardens. The layout includes two reception rooms, conservatory, kitchen, cloakroom, family bathroom and a detached single garage with driveway parking. The property is offered chain free and sits close to good primary and secondary schools, local shops, the Wiltshire Music Centre and transport links.
The house is structurally traditional with stone elevations, a tiled roof and modern replacement windows externally. Internally the home requires modernisation: kitchen and bathroom fittings are dated and general cosmetic updating is needed throughout. There is clear scope for improvement or modest extension (subject to planning consent), making this a good project for first-time buyers, families or investors seeking added value.
Practical positives include off-street parking, a garage, low local crime rates, no flood risk and excellent mobile signal. Note the broadband speeds are slow and the property will benefit from upgrades to services and internal fixtures. Overall this is a well-located period home offering potential to create a comfortable, contemporary family house in an affluent town-fringe setting.
3 bedroom semi-detached house for sale in Bradford on Avon, BA15 — £375,000 • 3 bed • 1 bath • 1000 ft²
3 bedroom semi-detached house for sale in Bradford on Avon, BA15 — £400,000 • 3 bed • 1 bath • 1022 ft²
3 bedroom terraced house for sale in Upper Regents Park, Bradford On Avon, BA15 — £325,000 • 3 bed • 1 bath • 735 ft²
4 bedroom terraced house for sale in Bradford on Avon, BA15 — £500,000 • 4 bed • 1 bath • 1531 ft²
3 bedroom semi-detached house for sale in Winsley Road, Bradford on Avon, Wiltshire, BA15 1QS, BA15 — £450,000 • 3 bed • 1 bath • 1307 ft²
3 bedroom semi-detached house for sale in Horton Close, Bradford-On-Avon, BA15 — £380,000 • 3 bed • 1 bath • 797 ft²






























































