Large duplex apartment with private terrace and secure parking, ideal for families and professionals.
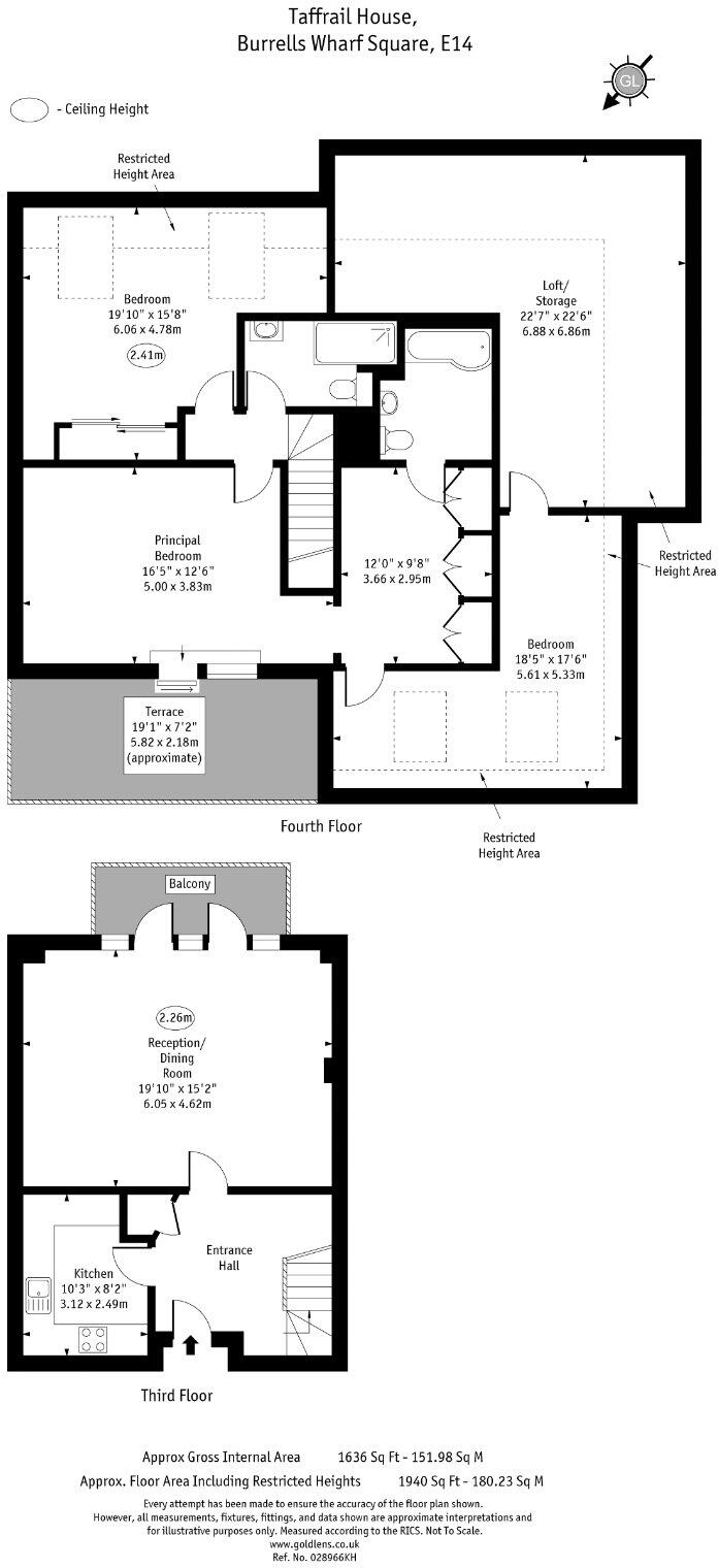
Circa 1,636–1,940 sq ft internal living space (includes restricted head height)
A remarkably large duplex penthouse in Burrells Wharf, this warehouse-conversion apartment offers expansive living space across two floors and plentiful storage. The main reception benefits from tall industrial-style glazing and a private east-facing balcony; upstairs there is a west-facing roof terrace with skyline views towards Canary Wharf.
Practical living is supported by two fully refurbished bathrooms, a separate fitted kitchen with integrated appliances, laundry space and significant eaves storage. The home comes with secure underground parking and access to residents’ leisure facilities: pool, gym, spa and sauna. A 24-hour concierge and excellent transport links — Mudchute DLR and the Thames Clipper nearby — make commuting straightforward.
Notable positives include a very long lease (circa 961 years), private outdoor space on two levels and a footprint well above average for the local market. This will suit buyers wanting generous flexible accommodation for family living, home working or a high-spec pied-à-terre.
Buyers should note the high annual service charge of approximately £14,158 and an additional council tax described as expensive. Parts of the upper floor have restricted head height and some areas are listed as having limited ceiling clearance. Tenure is share of freehold with a small ground rent of £50 per annum.
2 bedroom flat for sale in Brunel House,
Ship Yard, E14 — £375,000 • 2 bed • 1 bath • 600 ft²
2 bedroom flat for sale in Slipway House, Burrells Wharf, Canary Wharf, E14 — £550,000 • 2 bed • 2 bath • 1279 ft²
1 bedroom flat for sale in Wheel House,
1 Burrells Wharf Square, E14 — £255,000 • 1 bed • 1 bath • 433 ft²
1 bedroom flat for sale in Taffrail House,
Burrells Wharf Square, E14 — £325,000 • 1 bed • 1 bath • 412 ft²
2 bedroom apartment for sale in City Harbour, London, E14 — £1,100,000 • 2 bed • 2 bath • 1335 ft²
1 bedroom flat for sale in Plate House, Burrell's Wharf Square, Docklands, London, E14 — £300,000 • 1 bed • 1 bath • 730 ft²


































































































