Affordable ground-floor one-bedroom flat, walking distance to town and station, chain free.
Share of Freehold; approx 86–88 years remaining on lease
Vacant possession, offered with no onward chain
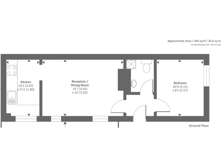
Compact 1-bed maisonette — approx 355 sq ft
0.5 miles to town centre; 0.9 miles to Newbury train station
Off-street parking included
Electric storage heating; likely higher running costs
Solid brick construction; no assumed wall insulation
Local area: fast broadband, excellent mobile signal, higher crime rates
This ground-floor one-bedroom maisonette offers an affordable entry into Newbury with vacant possession and no onward chain. At about 355 sq ft, the flat is compact and well suited to a first-time buyer or buy-to-let investor seeking a central location within walking distance of the town centre and under a mile from Newbury train station.
The interior is presented neutrally with modern-looking finishes, wood-effect flooring in the living space and a neat bedroom; photos show good natural light. Practical features include off-street parking, double glazing (installed before 2002) and an estimated 86–88 years remaining on the lease (Share of Freehold, 125-year term from 25/03/1986).
Buyers should note this is an older solid-brick building (circa 1900–1929) likely without cavity wall insulation and with electric storage heating. The property is small, so storage and living space are limited; renovation or upgrading of heating and insulation would improve comfort and running costs. The local area has fast broadband and excellent mobile signal but records higher crime levels than average.
This flat represents clear affordability and convenience close to amenities and good local schools, but it requires realistic budgeting for future energy upgrades and possible refurbishment. Viewing is recommended to assess room sizes and layout for your needs.
1 bedroom maisonette for sale in Craven Road, Newbury, RG14 5NE, RG14 — £155,000 • 1 bed • 1 bath • 367 ft²
1 bedroom flat for sale in Newbury, Berkshire, RG14 — £125,000 • 1 bed • 1 bath • 462 ft²
1 bedroom flat for sale in Newbury, Berkshire, RG14 — £133,000 • 1 bed • 1 bath • 387 ft²
1 bedroom flat for sale in Newbury, Berkshire, RG14 — £190,000 • 1 bed • 1 bath • 552 ft²
1 bedroom flat for sale in Newbury, Berkshire, RG14 — £160,000 • 1 bed • 1 bath • 346 ft²
1 bedroom flat for sale in London Road, Newbury, RG14 2BN, RG14 — £115,000 • 1 bed • 1 bath • 376 ft²










































