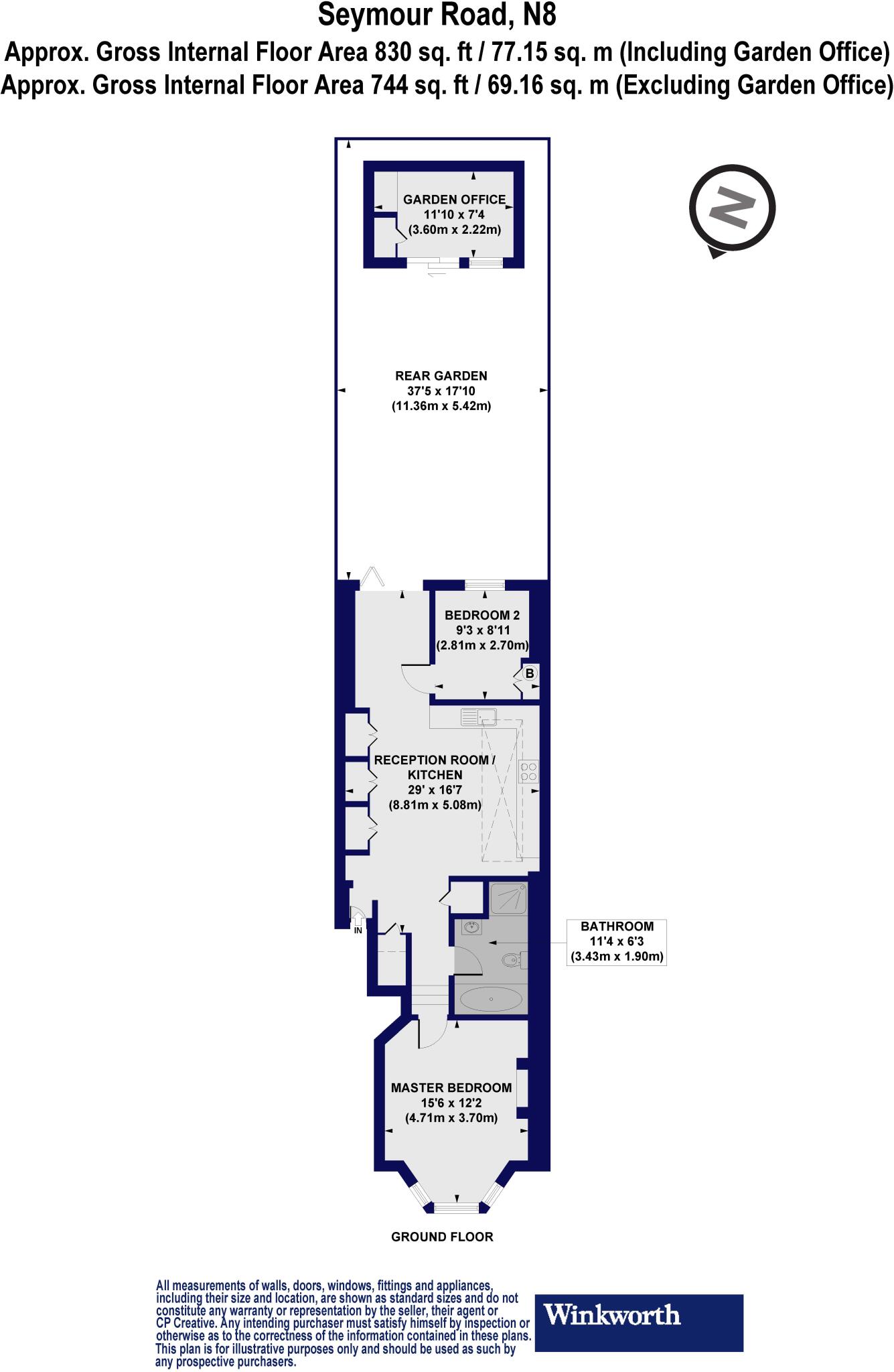
Discover this stunning ground-floor apartment in the highly sought-after Harringay Ladder, perfectly blending modern style with period charm. Key features include:
- Two spacious double bedrooms
- Bright and airy open-plan living area
- South-facing private garden ideal for entertaining
- Architect-designed garden office, perfect for working from home
- Convenient location with excellent transport links and a diverse array of nearby restaurants and parks
- Share of freehold and low crime rate
Spanning approximately 830 sq. ft., this thoughtfully extended home features modern finishes and plenty of natural light, enhanced by sleek bifold doors leading to your sun-drenched outdoor space. The central location provides easy access to Fairland Park, outstanding primary schools, and public transport options including the Manor House and Turnpike Lane Underground stations, making commuting and family life a breeze.
While the property showcases impressive renovations, potential buyers should note the solid-brick construction, which may require insulation updates and general maintenance. This charming residence offers flexible living space suited for families, young professionals, or anyone seeking a stylish urban retreat.
Don’t miss out on the opportunity to make this exclusive apartment your own—schedule a viewing today and envision your new life in this vibrant neighborhood.



































































