Outline consent for five homes on almost an acre within easy commuting distance to Bath.
Outline planning consent for five dwellings (ref 2022/2076/OUT).
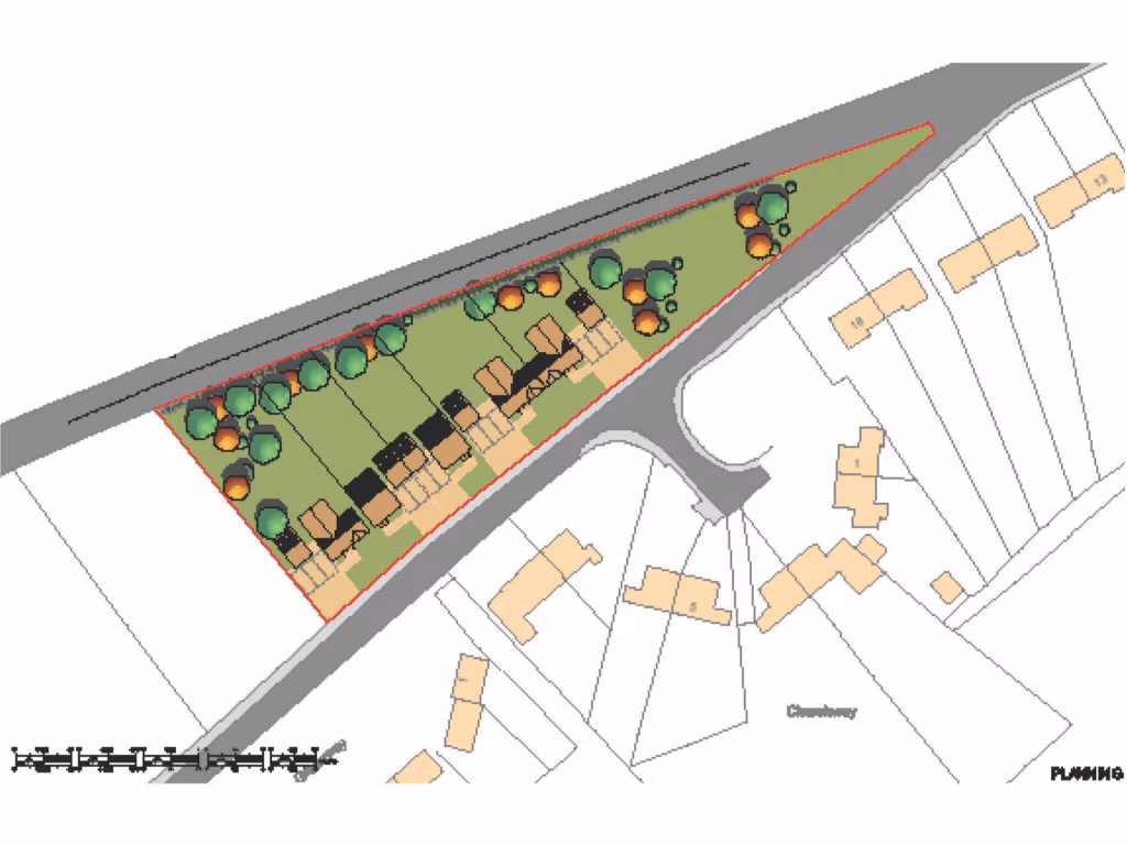
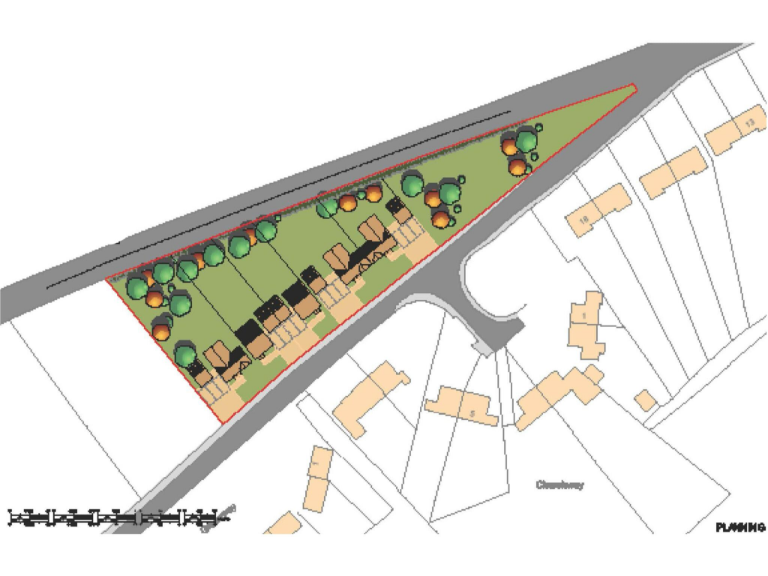
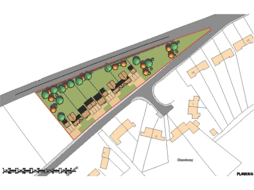
A rare development plot on the edge of Faulkland with outline planning consent for five dwellings. The level paddock extends to 0.90 acres (3,629 sq.m.) and benefits from extensive road frontage to the A366 and an adjoining lane, making access straightforward. The site is freehold and has fast broadband in the area, low local crime and no identified flood risk.
Outline planning consent (ref 2022/2076/OUT) indicates an indicative layout of three 4-bedroom homes (GIA 117 sq.m each) and two 3-bedroom homes (GIA 87 sq.m each), each with detached garages and gardens. Mains water, electricity and drainage are understood to be nearby, but purchasers must verify service connections and capacities with the relevant providers before exchange.
The location will appeal to buyers seeking a rural development within commuting distance of Bath (7 miles), Trowbridge and Bristol links. Local amenities include a village shop and pub within walking distance and good primary schools nearby. The site’s edge-of-village position offers countryside views while remaining accessible to nearby towns and transport links.
Practical considerations are clear: this is a development plot sold with outline (not full) permission, and any reserved matters, detailed design, access improvements or service connections remain to be agreed and funded by the buyer. Interested parties should carry out their own due diligence on planning conditions, ecology, drainage and highways requirements prior to purchase.
Land for sale in The Depot, Bailiffs' Wall, Axbridge, Somerset, BS26 — £475,000 • 1 bed • 1 bath
Land for sale in Writhlington, Near Radstock, BA11 — £500,000 • 1 bed • 1 bath • 27007 ft²
Plot for sale in Land adjacent to Millway House, With outline planning consent, Lydford-on-Fosse, Somerton, TA11 — £150,000 • 1 bed • 1 bath
Commercial development for sale in Land at Brick Hill Farm, Warminster, BA12 8PF, BA12 — £750,000 • 1 bed • 1 bath
Plot for sale in Lot 1 at Summerleaze, Marshalls Elm, Street, BA16 — £400,000 • 1 bed • 1 bath
Plot for sale in DEVELOPMENT SITE FOR 5 DWELLINGS, Chantry, Frome, BA11 — £860,000 • 1 bed • 1 bath • 12020 ft²


























