ST10 4LG - 3 bedroom detached house for sale in Uttoxeter Road, Tean,…

View on Property Piper

3 bedroom detached house for sale in Uttoxeter Road, Tean, ST10

Summary - 53, Uttoxeter Road, Tean ST10 4LG

3 bed 1 bath Detached

**Standout Features:**
- Charming three-bedroom detached cottage in Tean
- Open plan modern living area and dining kitchen
- French doors leading to a generous, well-maintained rear garden
- Good-sized bedrooms with built-in storage
- Contemporary first-floor bathroom
- Low council taxes and low crime rates

**Concerns:**
- Constructed before 1900, potentially requiring updates
- Solid brick walls with assumed no insulation

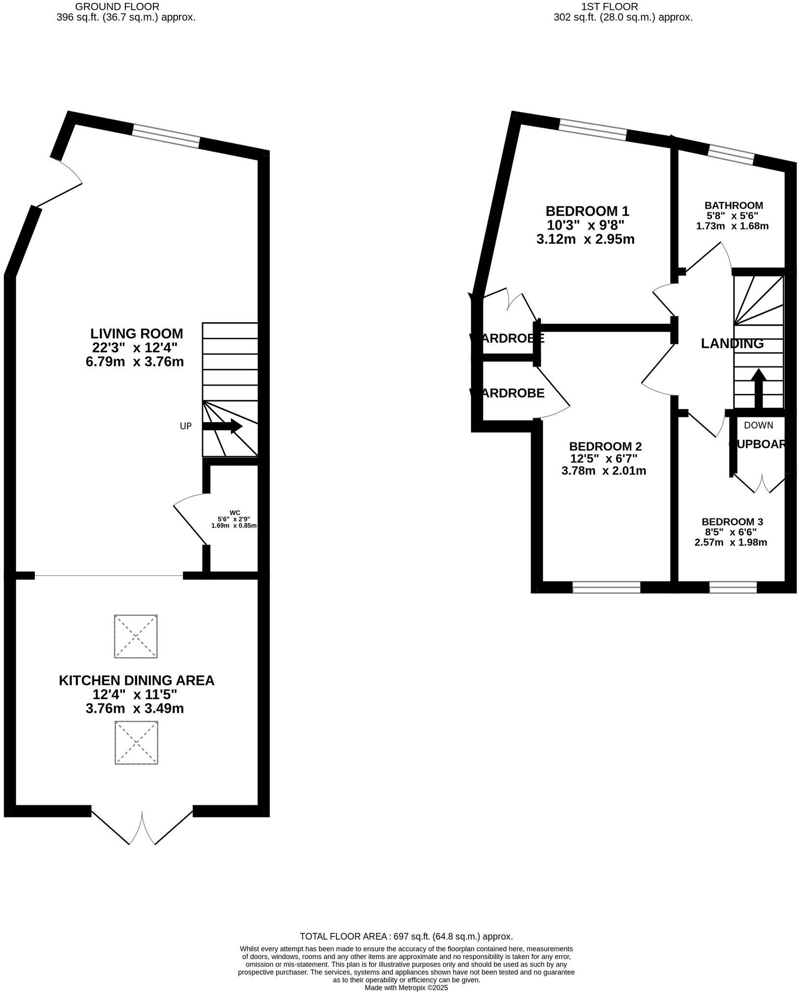
Nestled in the picturesque village of Tean, this delightful three-bedroom cottage offers the perfect blend of character and modern living. Step inside to find a spacious open plan living area, seamlessly flowing into a contemporary dining kitchen, complete with high ceilings and natural light. Enjoy the convenience of a handy guest WC on the ground floor and French doors that open to a well-kept garden, ideal for al fresco dining.

Upstairs, you will find three comfortable bedrooms, with the largest featuring a built-in wardrobe. The smallest bedroom is currently configured as a home office with scenic views of the fields—perfect for remote working. The modern bathroom, fitted with a shower over the bath, adds to the charm of this home.

Tean boasts excellent amenities, low crime rates, and convenient access to major commuter links and the surrounding countryside. This idyllic cottage presents a fantastic opportunity for families or first-time buyers looking for a tranquil lifestyle. Don’t miss your chance to own this unique property—schedule a viewing today!

Property Details

Image Descriptions

Floorplan Description

Rooms

Textual Property Features

Detected Visual Features

EPC Details

Nearby Schools

Nearest Bars And Restaurants

,,,,}

Nearest General Shops

,,}

Nearest Grocery shops

,,}

Nearest Supermarkets

,,}

Nearest Religious buildings

,,}

Nearest Medical buildings

,,,}

Nearest Leisure Facilities

,,,,}

Nearest Tourist attractions

,,}

Nearest Train stations

,,,,}

Nearest Bus stations and stops

,,,,}

Nearest Hotels

,,}

Tags

Local Market Stats

AirBnB Data

Similar Properties

Meta

High Res Images

Compatible Images

Low res Images

Thumbnails

Raw Images

High Res Floorplan Images

Compatible Floorplan Images

Low res Floorplan Images

FloorplanImages Thumbnail

Raw Floorplan Images