Spacious family home with live plans to extend to five bedrooms.
Detached 1960s modernist home on a large, private plot
Tucked down a private road in central Calverley, this detached 1960s modernist home sits on a large, mature plot with open field views. The house already offers flexible family accommodation across multiple levels: a spacious lounge, a dining kitchen with pantry, an open-plan conservatory, a flexible snug/home office and a mezzanine bedroom. Off-street parking and a double garage add practical convenience for busy households.
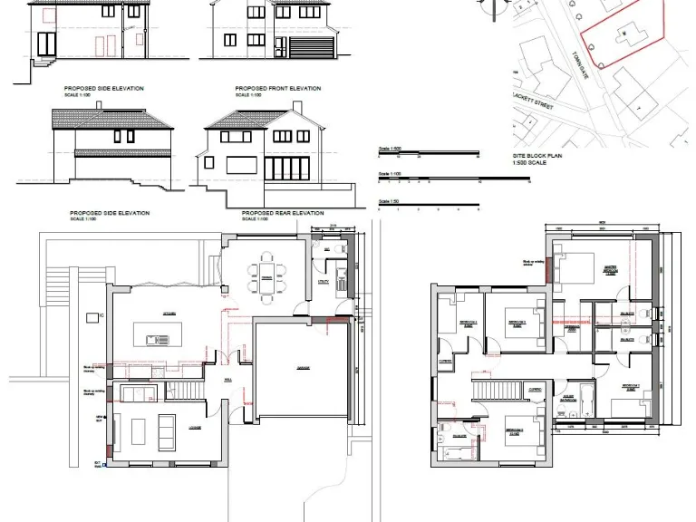
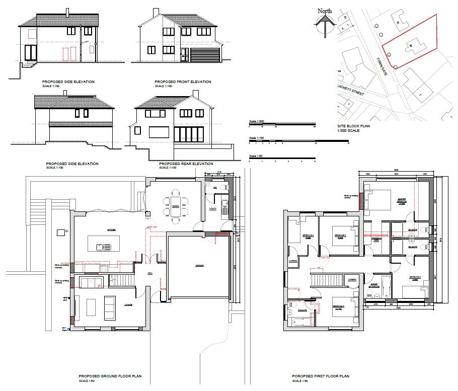
The property is offered with a live planning application (full proposed plans and CGI visuals available) for a substantial side and rear extension to create a five-bedroom, four-bathroom house. That scope makes the home a rare development opportunity for growing families or a developer seeking a standout refurbishment project in a sought-after village setting. The layout and plot size give genuine potential to create generous open-plan living and additional bedrooms.
Buyers should note the material points: there is currently a single three-piece family bathroom and some period fixtures and fittings that will need updating to achieve the proposed high-end finish. The planning application is live but not yet approved—any extension works will be subject to final consent. The property’s mid-century interior and some dated finishes mean renovation and modernisation costs should be factored into budgets.
In short, this is a substantial, well-sited detached home with immediate family use and clear potential to be transformed into a much larger, contemporary residence subject to planning. It will suit purchasers who value plot, privacy and views and who are prepared to invest time and money to realise the house’s next chapter.
4 bedroom detached house for sale in Chestnut Grove, Calverley, Pudsey, West Yorkshire, LS28 — £350,000 • 4 bed • 2 bath • 1334 ft²
4 bedroom detached house for sale in Foxholes Crescent, Calverley, Pudsey, Leeds, LS28 — £895,000 • 4 bed • 3 bath • 2686 ft²
4 bedroom detached house for sale in Town Gate, Calverley, Pudsey, West Yorkshire, LS28 — £965,000 • 4 bed • 2 bath • 3020 ft²
4 bedroom terraced house for sale in Thornhill Street, Calverley, Pudsey, West Yorkshire, LS28 — £425,000 • 4 bed • 2 bath • 1440 ft²
5 bedroom detached house for sale in Shell Lane, Calverley, Pudsey, West Yorkshire, LS28 — £750,000 • 5 bed • 3 bath • 3054 ft²
3 bedroom bungalow for sale in Monson Avenue, Calverley, Pudsey, West Yorkshire, LS28 — £900,000 • 3 bed • 1 bath • 2022 ft²


































































































