WN3 5UU - 3 bedroom terraced house for sale in Cheetham Grove, Wigan,…

View on Property Piper

3 bedroom terraced house for sale in Cheetham Grove, Wigan, WN3

Summary - 16 CHEETHAM GROVE WIGAN WN3 5UU

3 bed 1 bath Terraced

Three-bed terrace with south garden and parking — renovation opportunity for first-time buyers or investors..
No onward chain — freehold three-bedroom terraced house
Large kitchen/diner opening onto south-facing patio and lawn
Private off-street parking to the rear
Requires full modernisation and updating throughout
Small plot; modest rear garden but sunny south aspect
Area classified as very deprived — consider resale/rent risk
Double glazing installed pre-2002; EPC currently TBC
Mains gas central heating; fast broadband and excellent mobile signal
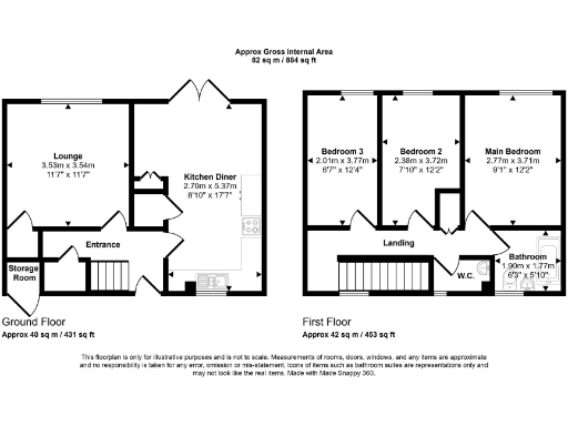
A chain-free, freehold three-bedroom mid-terrace offering generous living space across two floors. The ground floor houses a roomy lounge, a large kitchen/diner with storage, and a gated front yard. The kitchen opens onto a south-facing rear garden with patio and lawn, plus private off-street parking at the rear.

The property is sold requiring modernisation throughout — cosmetic and likely updating of systems will be needed. That condition creates scope to add value: reconfigure interiors, refresh finishes, and modernise the kitchen and bathroom to suit a growing family or rental market.

Practical benefits include mains gas central heating, double glazing (pre-2002), fast broadband and excellent mobile signal. Local amenities and several ‘Good’ primary and secondary schools are within easy reach. Note the area has a high level of deprivation, and the plot is modest in size, but council tax is very low and the property is vacant with no onward chain, making it straightforward to progress.

Property Details

Image Descriptions

Floorplan Description

Rooms

Textual Property Features

Target Audience

AI Tags

Detected Visual Features

EPC Details

Nearby Schools

Nearest Bars And Restaurants

,,,,}

Nearest General Shops

,,}

Nearest Grocery shops

,,}

Nearest Supermarkets

,,}

Nearest Religious buildings

,,}

Nearest Medical buildings

,,,}

Nearest Airports

,}

Nearest Leisure Facilities

,,,,}

Nearest Tourist attractions

,,}

Nearest Train stations

,,,,}

Nearest Bus stations and stops

,,,,}

Nearest Hotels

,,}

Tags

Local Market Stats

Similar Properties

Meta

High Res Images

Compatible Images

Low res Images

Thumbnails

Raw Images

High Res Floorplan Images

Compatible Floorplan Images

Low res Floorplan Images

FloorplanImages Thumbnail

Raw Floorplan Images