DE4 3QE - 2 bed grade ii shop cottage in Derbyshire Dales, DE4 3QE

View on Property Piper

2 bedroom end of terrace house for sale in 36/36A Market Place, Cromford, DE4

Summary - 36a, Market Place, Cromford, MATLOCK DE4 3QE

2 bed 1 bath End of Terrace

Period three-storey cottage with shopfront — renovation investment in Cromford village..
- Grade II listed three-storey end-terrace with period features
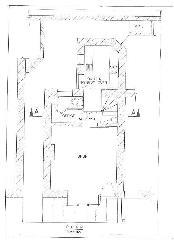
- Ground-floor retail unit with large shopfront and separate WC
- Two-bedroom accommodation above across first and second floors
- Requires full refurbishment; single-glazed sashes and upgrade needed
- Listed status — works likely need listed-building consent
- Medium flood risk; may affect insurance and lender decisions
- No private parking; on-street parking only, first-come basis
- Sale by online auction: 5% deposit, buyer's fee and strict terms
A three-storey Grade II listed end-terrace with ground-floor retail and two upper residential floors, presented as a clear renovation and investment opportunity in the heart of Cromford. The property combines a characterful shopfront and sash windows with a compact rear yard and small outbuilding; the shop currently offers a bright retail space, storage/office and WC. The house above includes a kitchen, living room, bathroom and two bedrooms spread over the first and second floors.

The building requires a programme of refurbishment and upgrading (single-glazed sash windows, fit-out and general modernisation) and will need listed-building consents for certain works — this will affect cost and timescales. There is no private parking (on-street only) and the site is in a medium flood-risk area; these are important factors for lenders, insurers and some buyers.

Sold freehold by conditional online auction, this lot suits a buyer comfortable with renovation, historic building consents and auction processes. The ground-floor commercial unit may qualify for small business rates relief, providing short-term operating savings for a trading occupier or a means to boost rental income. No upward chain, good mobile signal and fast broadband add practical appeal for a mixed-use hold or conversion subject to consent. Read the legal pack and special conditions carefully before bidding.

Property Details

Brochure Descriptions

Image Descriptions

Floorplan Description

Rooms

Textual Property Features

Target Audience

AI Tags

Detected Visual Features

Nearby Schools

Nearest Bars And Restaurants

,,,,}

Nearest General Shops

,,}

Nearest Grocery shops

,,}

Nearest Supermarkets

,,}

Nearest Religious buildings

,,}

Nearest Medical buildings

,,,}

Nearest Leisure Facilities

,,,,}

Nearest Tourist attractions

,,}

Nearest Train stations

,,,,}

Nearest Bus stations and stops

,,,,}

Nearest Hotels

,,}

Tags

Local Market Stats

AirBnB Data

Similar Properties

Meta

High Res Images

Compatible Images

Low res Images

Thumbnails

Raw Images

High Res Floorplan Images

Compatible Floorplan Images

Low res Floorplan Images

FloorplanImages Thumbnail

Raw Floorplan Images