CH4 0HT - 2 bedroom bungalow for sale in Wrexham Road, Penyffordd CH4

View on Property Piper

2 bedroom bungalow for sale in Wrexham Road, Penyffordd CH4

Summary - Bryn-Y-Haul,Wrexham Road,CHESTER,CH4 0HT CH4 0HT

2 bed 1 bath Bungalow

**Standout Features:**
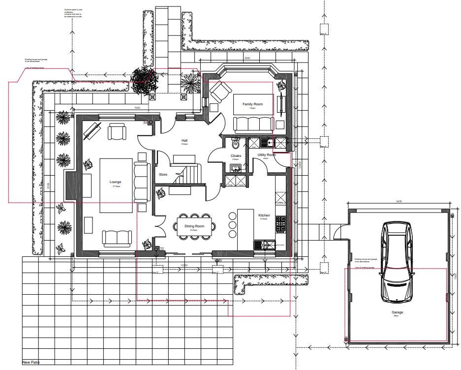
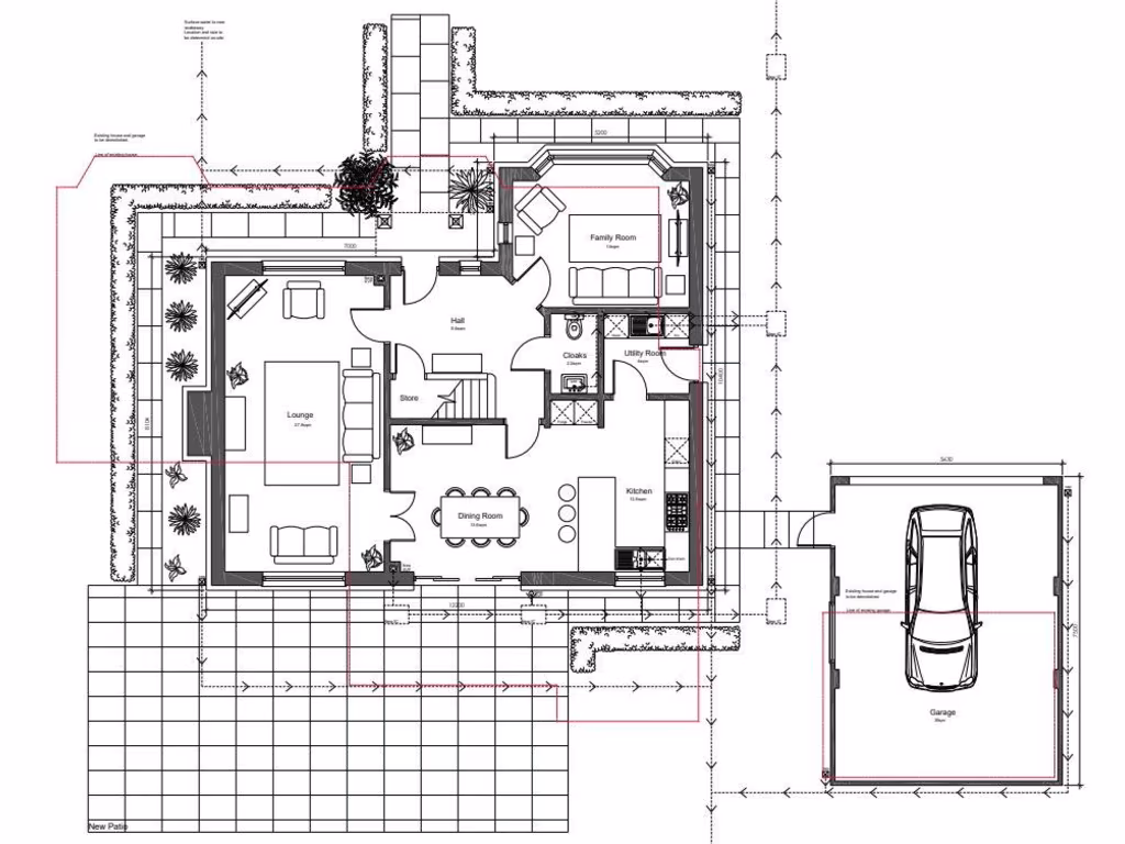
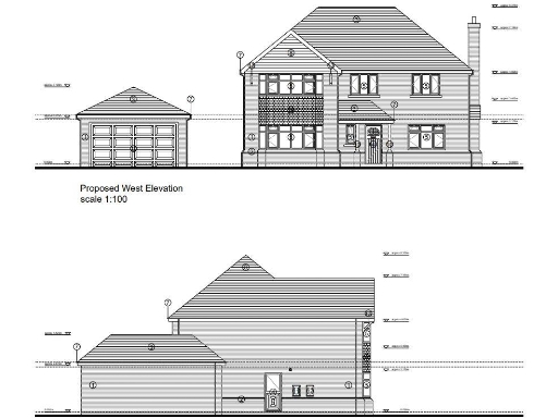
- 2-bedroom mid-20th century bungalow with outbuildings.
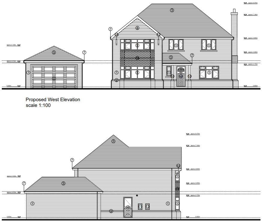
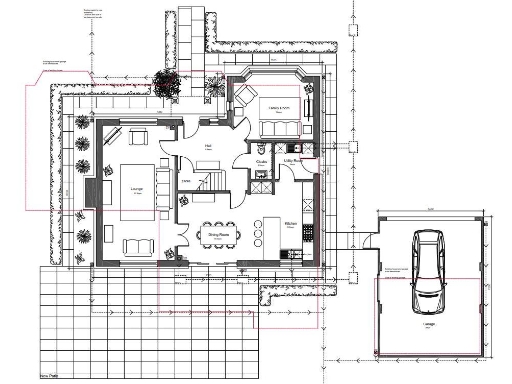
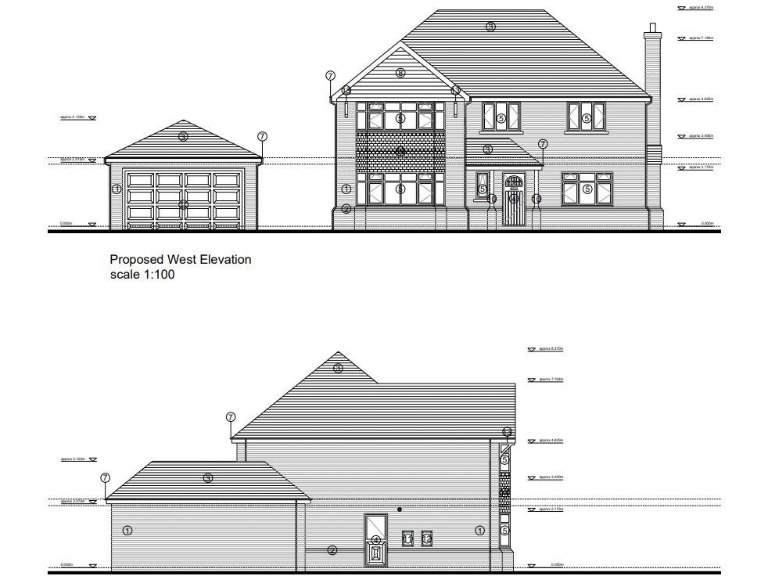
- Large plot of 2.91 acres with planning permission for a new 4-bedroom dwelling.
- Expansive gardens, detached garage, stable, and ample off-road parking.
- Existing accommodations include three reception areas, kitchen, and bathroom.
- Close proximity to local amenities and excellent transport links.

This charming bungalow on Wrexham Road in Penyffordd presents a unique opportunity for those looking to invest in a rural retreat with development potential. Set within a sprawling 2.91 acres, the current property features two spacious bedrooms and multiple reception areas, perfect for a cozy family home, while the proposed planning permission for a modern 4-bedroom dwelling offers a transformative vision for future living.

With the existing home sound and set amidst lush gardens, there's a comforting sense of space, privacy, and tranquility. For families or first-time buyers, it offers a chance to settle in a delightful village with amenities nearby—including schools, parks, and public houses—while enjoying a secure and peaceful environment.

Consider this an exciting blank canvas, enhanced by excellent mobile signal connectivity and a picturesque countryside backdrop. However, note the potential for modern renovations and the building's current maintenance requirements. This opportunity won't last long; envision your future here today!

Property Details

Brochure Descriptions

Image Descriptions

Floorplan Description

Rooms

Textual Property Features

Detected Visual Features

Nearest Bars And Restaurants

,,,,}

Nearest General Shops

,,}

Nearest Grocery shops

,,}

Nearest Supermarkets

,,}

Nearest Religious buildings

,,}

Nearest Medical buildings

,,,}

Nearest Airports

}

Nearest Leisure Facilities

,,,,}

Nearest Tourist attractions

,,}

Nearest Train stations

,,,,}

Nearest Bus stations and stops

,,,,}

Nearest Hotels

,,}

Tags

Local Market Stats

AirBnB Data

Similar Properties

Meta

High Res Images

Compatible Images

Low res Images

Thumbnails

Raw Images

High Res Floorplan Images

Compatible Floorplan Images

Low res Floorplan Images

FloorplanImages Thumbnail

Raw Floorplan Images