Large level plot with extension potential near excellent schools and fast rail links.
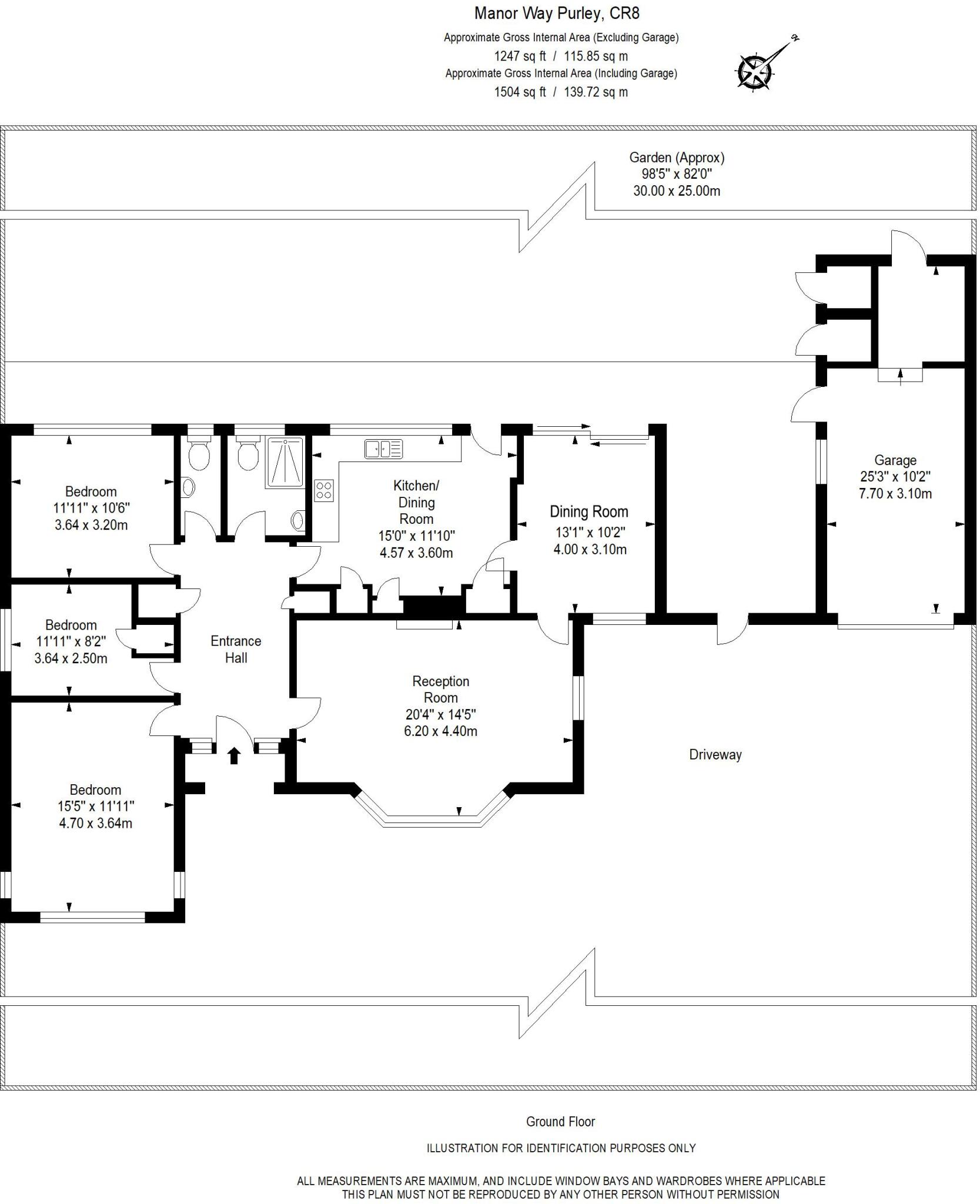
- Level 0.37 acre plot with substantial rear and front gardens
- Detached garage, wide driveway providing ample parking
- Chain free sale; freehold tenure
- Three bedrooms, one family bathroom plus separate WC
- EPC rating E; energy performance could be improved
- Cavity walls with no added insulation (assumed)
- Mid-20th century build — scope to extend subject to consents
- Council tax band high; running costs likely above average
Set on a level 0.37 acre plot in one of West Purley’s most sought-after roads, this detached three-bedroom bungalow offers generous single-storey living and substantial scope to extend or remodel (subject to planning). The property is offered chain free and sits behind a wide driveway with a detached garage and store — practical for families and those needing parking and storage.
Inside, rooms are well-proportioned with a bright bay-fronted living room, separate dining room and a kitchen that opens onto the rear garden. Accommodation is arranged for comfortable lateral living with three bedrooms, a family bathroom and an additional WC. The house dates from the mid-20th century and retains a solid, characterful form with a central chimney and red brick exterior.
Important practical notes: the property has an EPC rating of E and cavity walls with no known added insulation, so energy performance and running costs could be improved. Council tax is noted as expensive. The layout and large plot present good potential for extension or energy upgrades but will require planning consents and renovation investment.
For families, the location is a major draw: a selection of well-regarded independent and state schools are nearby and Purley’s rail links provide direct, fast journeys to central London. This bungalow will suit buyers seeking a spacious, single-storey home in an affluent, low-crime neighbourhood with clear potential to personalise and add value.
3 bedroom detached bungalow for sale in Hillcrest Road, Purley, CR8 — £750,000 • 3 bed • 1 bath • 1155 ft²
4 bedroom detached bungalow for sale in Edgehill Road, Purley, CR8 — £725,000 • 4 bed • 2 bath • 1449 ft²
4 bedroom detached bungalow for sale in Badgers Walk, Purley, CR8 — £850,000 • 4 bed • 2 bath • 1410 ft²
3 bedroom detached bungalow for sale in Coombe Wood Hill, Purley, CR8 — £650,000 • 3 bed • 2 bath • 1621 ft²
3 bedroom detached house for sale in Purley Downs Road, South Croydon, CR2 — £700,000 • 3 bed • 1 bath • 1468 ft²
3 bedroom bungalow for sale in Purley Oaks Road, South Croydon, Surrey, CR2 0NY, CR2 — £749,950 • 3 bed • 1 bath • 1356 ft²






































































