Well-equipped family home with solar and EV-ready garage near shops.
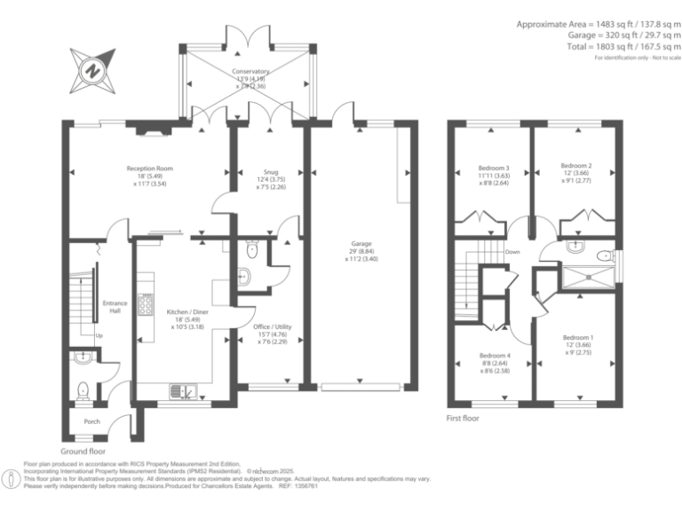
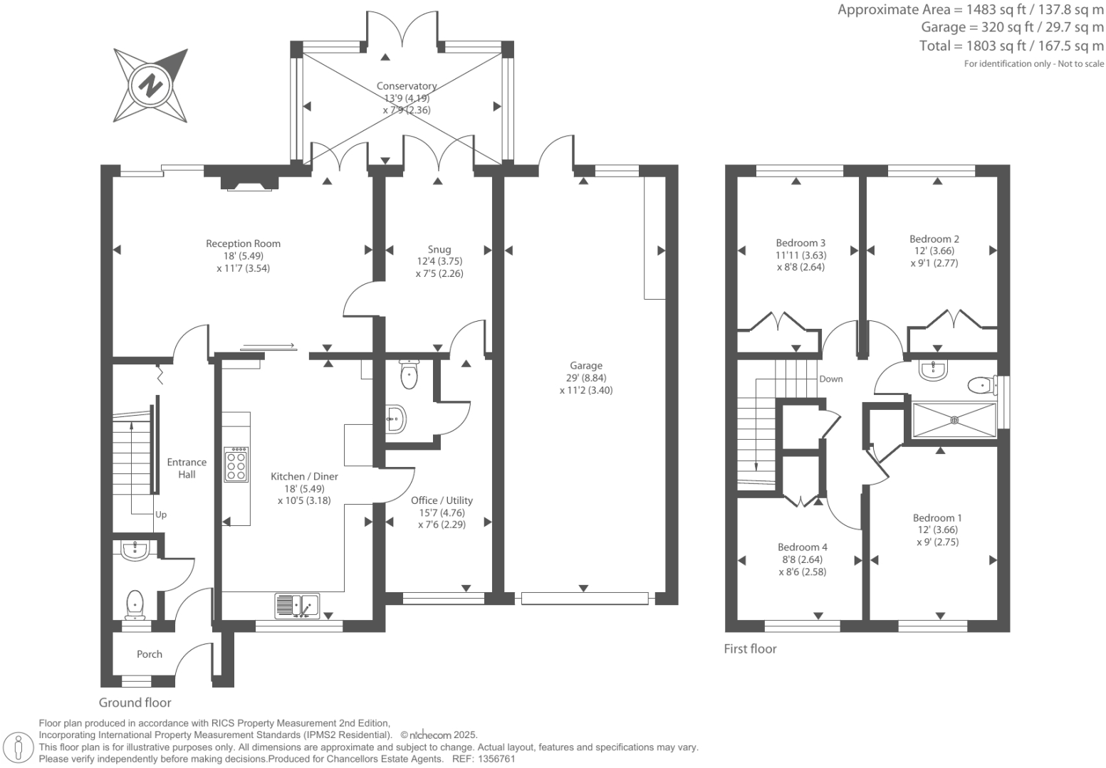
Four bedrooms across approximately 1,803 sq ft of floorspace
A substantial four-bedroom family home arranged over multiple floors, offering around 1,803 sq ft of flexible living space. Practical features include a tandem double garage with roller shutter, an EV charging point, fully owned solar panels, and two ground-floor WCs — conveniences that suit busy family life and lower running costs.
The kitchen has been revamped and includes a range cooker and fitted appliances, plus a utility room for added practicality. There is also fitted bedroom storage, a secure metal shed and greenhouse included in the sale, and off-street parking for multiple vehicles. The property has a strong energy rating (84/B) and low flood and crime risk.
Note the house is built using a steel frame construction type (PSA) and sits on a relatively small plot, which may influence extension options. There is a single family bathroom for four bedrooms, which could be an inconvenience and a candidate for upgrading. Overall this comfortable suburban home is well placed for schools, shops and Bicester North station, making it a convenient choice for families seeking space and lower running costs with some scope for improvement.
4 bedroom detached house for sale in Simpson Drive, Heyford Park, OX25 — £600,000 • 4 bed • 3 bath • 3061 ft²
4 bedroom town house for sale in Pioneer Way, Bicester, OX26 — £475,000 • 4 bed • 3 bath • 1574 ft²
4 bedroom detached house for sale in May Tree Close, BICESTER, Oxfordshire, OX26 — £585,000 • 4 bed • 2 bath • 1608 ft²
4 bedroom end of terrace house for sale in Grebe Road, Bicester, OX26 — £575,000 • 4 bed • 4 bath • 1640 ft²
4 bedroom detached house for sale in Izzard Road, Heyford Park, OX25 — £540,000 • 4 bed • 2 bath • 1270 ft²
4 bedroom detached house for sale in Lingfield Road, Bicester, OX26 — £550,000 • 4 bed • 3 bath • 1494 ft²


























































































