Low-entry auction buy for those confident with renovation and value-add..
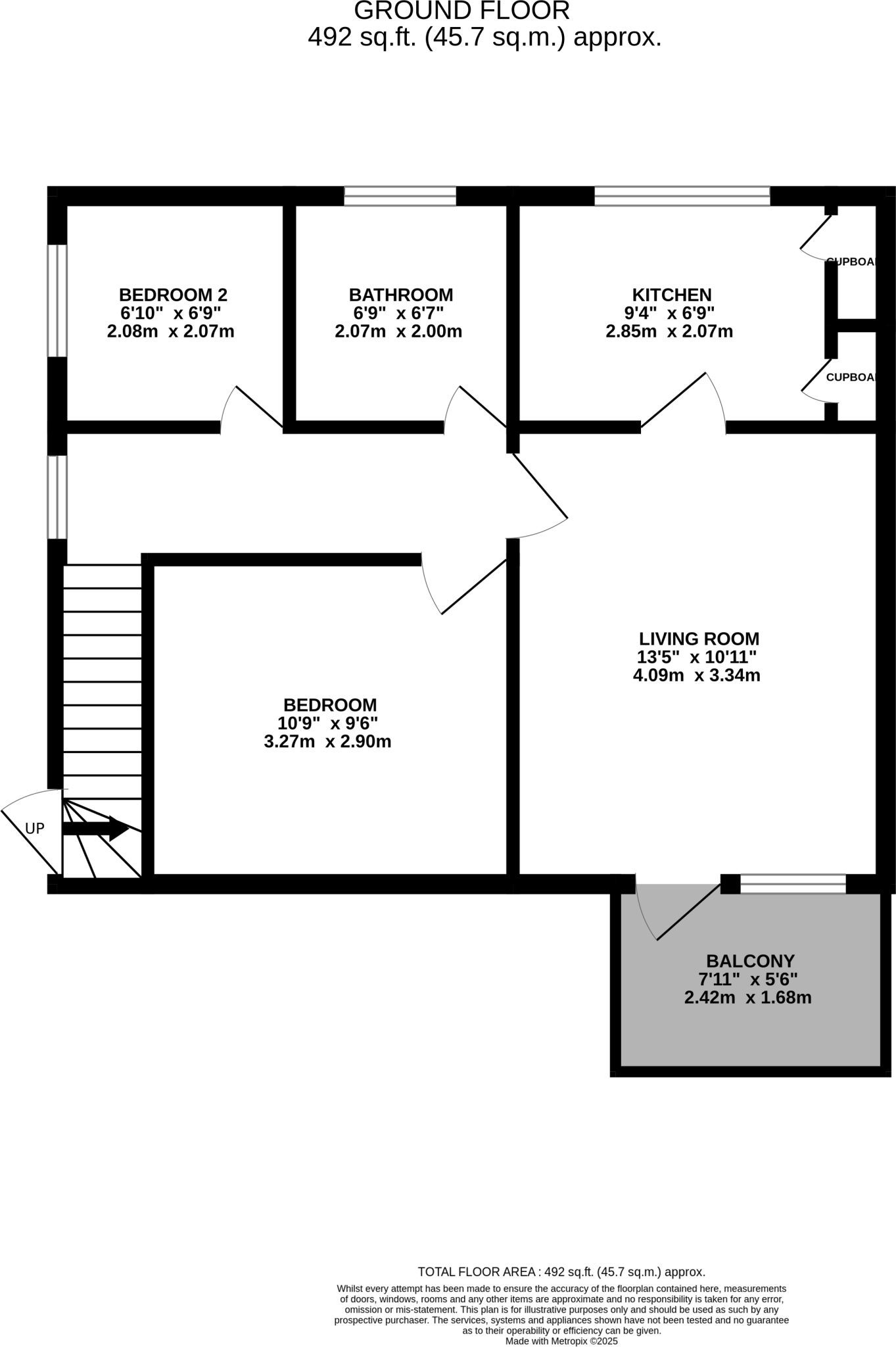
- Two-bedroom first-floor apartment, approx. 492 sq ft
- Covered front balcony and access to shared rear garden
- Vacant possession and no onward chain
- Requires full modernisation throughout
- Leasehold sale; auction sale with legal pack disbursements
- Administration fee £3,600 (inc VAT) on exchange
- EPC rating D; built 1976–1982, double glazing present
- Local area: very high crime and very deprived
This two-bedroom first-floor apartment (approx. 492 sq ft) is offered with vacant possession and no onward chain, presenting a clear refurbishment opportunity for investors or first-time buyers prepared to renovate. The flat has a covered front balcony, access to a shared rear garden, and two hallway storage cupboards; the living room and kitchen provide a workable layout for improvement.
The property requires full modernisation throughout — the kitchen and bathroom are dated and the overall condition needs upgrading. It is leasehold and will be sold at auction (commencing Monday 27th October at 1pm, ending Tuesday 28th October at 1pm); purchasers should review the legal pack for disbursements and note an administration fee of £3,600 (inc VAT) payable on exchange. EPC rating is D.
Location benefits include proximity to Barnsley town centre, regular bus routes, the M1 (J37), and several well-rated local schools. However, the immediate area is classified as very deprived with very high crime rates; buyers should consider local context and letability or resale implications when appraising value.
This small apartment suits a buyer seeking a low-entry-price refurbishment project or a buy-to-let purchase to renovate and re-let or re-sell after improvement.
1 bedroom flat for sale in Smithies Street, Barnsley, S71 1RB, S71 — £35,000 • 1 bed • 1 bath • 506 ft²
2 bedroom flat for sale in Masons Way, Barnsley, S70 — £45,000 • 2 bed • 1 bath • 625 ft²
2 bedroom terraced house for sale in 84. Honeywell Lane, Barnsley, South Yorkshire S71 1JH, S71 — £60,000 • 2 bed • 1 bath • 911 ft²
2 bedroom apartment for sale in Belgrave Road, Barnsley, S71 — £50,000 • 2 bed • 1 bath • 450 ft²
2 bedroom flat for sale in Westwood Court, Huddersfield Road, Barnsley, S70 2LT, S70 — £75,000 • 2 bed • 1 bath • 506 ft²
2 bedroom apartment for sale in Studmoor Road, Rotherham, South Yorkshire, S61 3BH, S61 — £70,000 • 2 bed • 1 bath • 732 ft²


















































