CH8 8NZ - 3 bed stone cottage with land in Carmel, CH8 8NZ

View on Property Piper

3 bedroom detached house for sale in Carmel Hill, Carmel, Holywell, CH8

Summary - CARMEL COTTAGE, CARMEL HILL, HOLYWELL, CARMEL CH8 8NZ

3 bed 1 bath Detached

Detached three-bed cottage with two acres, estuary views and no onward chain.
Approximately two acres of land included (approx)
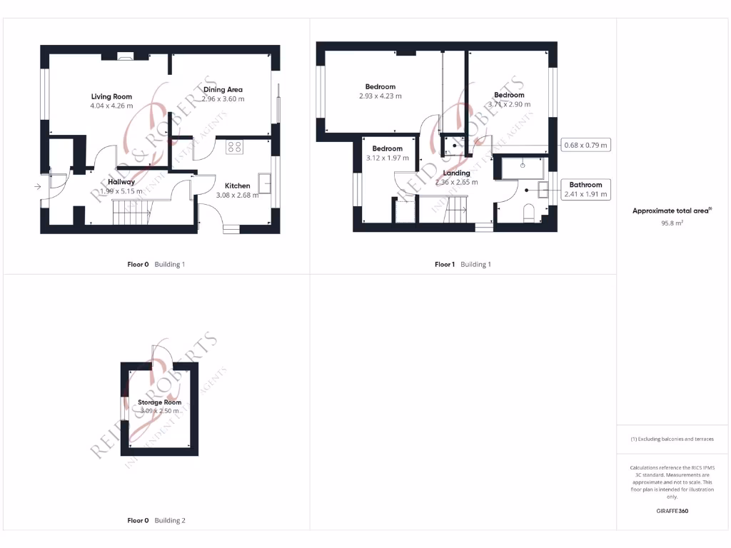
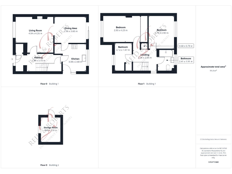
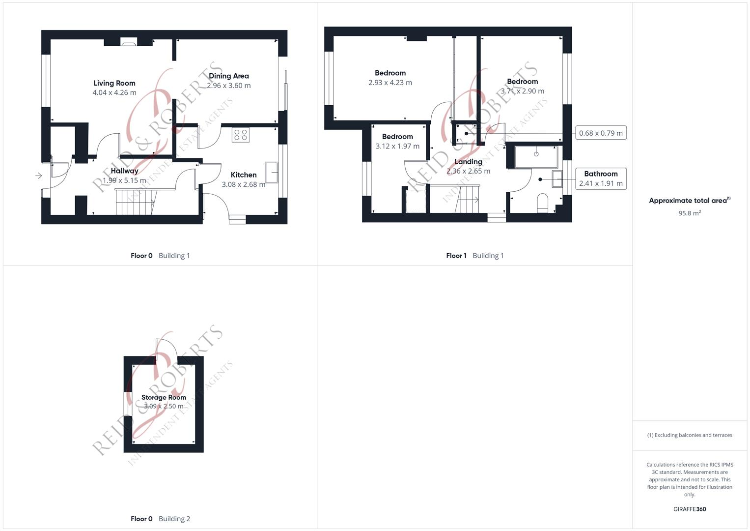
Set on approximately two acres and offered with no onward chain, this stone-fronted detached cottage combines roomy family living with substantial outdoor scope. The ground floor flows from a large lounge into a dining area with patio doors, while three first-floor bedrooms face open countryside and estuary views. A private driveway and paved patio extend the usable space outdoors, and a versatile outbuilding adds storage or hobby potential.

The house has clear character: granite-style walls, double glazing, traditional room proportions and a feature fireplace. It’s practical for everyday life with mains gas central heating, an equipped kitchen, and a modern walk-in shower room. The broad plot is a major asset—ideal for paddocks, gardens, or small-scale equestrian use—and the elevated outlook across the Dee Estuary is a strong lifestyle draw.

Buyers should note material issues that affect running costs and potential renovation scope. The stone walls are assumed uninsulated, so thermal upgrades (internal or external insulation) could be needed to improve comfort and efficiency. Double glazing installation date is unknown. Council Tax is above average (Band E), and the wider area records higher deprivation despite low crime and excellent connectivity by road.

This property suits families or buyers seeking a character home with expansive land, or investors looking at land-rich rural opportunities. It rewards someone prepared to carry out sympathetic upgrades to enhance energy performance and maximise value from the sizable plot.

Property Details

Brochure Descriptions

Image Descriptions

Floorplan Description

Rooms

Textual Property Features

Target Audience

AI Tags

Detected Visual Features

EPC Details

Nearest Bars And Restaurants

,,,,}

Nearest General Shops

,,}

Nearest Grocery shops

,,}

Nearest Supermarkets

,,}

Nearest Religious buildings

,,}

Nearest Medical buildings

,,,}

Nearest Airports

}

Nearest Leisure Facilities

,,,,}

Nearest Tourist attractions

,,}

Nearest Train stations

,,,,}

Nearest Bus stations and stops

,,,,}

Nearest Hotels

,,}

Tags

Local Market Stats

Similar Properties

Meta

High Res Images

Compatible Images

Low res Images

Thumbnails

Raw Images

High Res Floorplan Images

Compatible Floorplan Images

Low res Floorplan Images

FloorplanImages Thumbnail

Raw Floorplan Images