OX5 3DX - 1 bedroom flat for sale in Heathfield, Bletchingdon, Oxford…

View on Property Piper

1 bedroom flat for sale in Heathfield, Bletchingdon, Oxfordshire, OX5

Summary - WALKERS BARN 9 HEATHFIELD BLETCHINGDON KIDLINGTON OX5 3DX

1 bed 1 bath Flat

**Standout Features:**
- Share of Freehold with a lengthy lease of 992 years remaining
- One-bedroom duplex apartment, ideal for first-time buyers or investors
- Off-street parking within a secure gated site
- Attractive historic barn conversion with unique Georgian architecture
- Peaceful and rural setting, surrounded by picturesque villages
- Access to Oxford Parkway Mainline Station for convenient commuting
- No onward chain, facilitating a quicker purchase

**Summary:**
Discover the charm of this one-bedroom duplex apartment situated in a serene rural setting. Housed within a beautifully converted historic barn, this property boasts a captivating Georgian stone façade and modern living spaces filled with natural light. It comes with exclusive off-street parking and access to communal gardens, perfect for relaxation.

This apartment is ideally suited for first-time buyers, young professionals, or investors, especially given its proximity to Oxford Parkway Mainline Station for quick travel. You'll also appreciate the sense of peace in this picturesque hamlet, complemented by good local schools and amenities nearby.

While the property is in good condition, it's essential to note that there may be some listed status implications, which could affect renovation plans. The double-glazed windows installed after 2002 enhance comfort, although the sandstone walls offer limited insulation, potentially warranting future upgrades.

With a low council tax rate and an affluent area classification, this property offers both a comfortable living experience and excellent potential for future value appreciation—act swiftly, as chain-free opportunities in such a desirable setting are rare!

Property Details

Image Descriptions

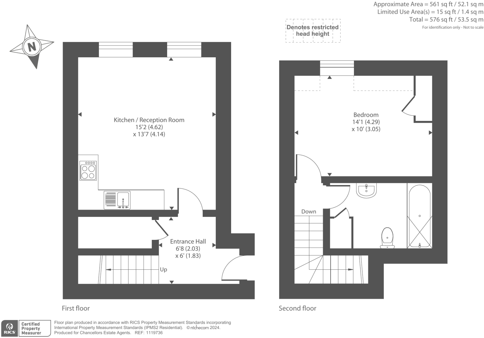
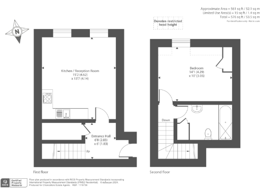
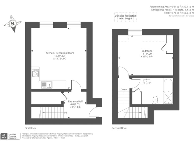
Floorplan Description

Rooms

Textual Property Features

Detected Visual Features

EPC Details

Nearby Schools

Nearest Bars And Restaurants

,,,,}

Nearest General Shops

,,}

Nearest Grocery shops

,,}

Nearest Supermarkets

,,}

Nearest Religious buildings

,,}

Nearest Medical buildings

,,,}

Nearest Leisure Facilities

,,,,}

Nearest Tourist attractions

,,}

Nearest Train stations

,,,,}

Nearest Bus stations and stops

,,,,}

Nearest Hotels

,,}

Tags

Local Market Stats

AirBnB Data

Similar Properties

Meta

High Res Images

Compatible Images

Low res Images

Thumbnails

Raw Images

High Res Floorplan Images

Compatible Floorplan Images

Low res Floorplan Images

FloorplanImages Thumbnail

Raw Floorplan Images