**Standout Features:**
- Chain-free sale
- Prime investment opportunity with 4 two-bedroom apartments
- Currently generating approx. £33,600 annual rental income
- All apartments are tenant-occupied
- Spacious, modern design
- Private outdoor gardens for ground-floor apartments
- Plenty of local amenities and excellent transport links
- Fast broadband and low council tax rates
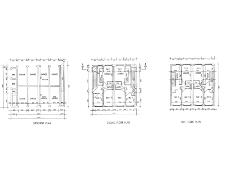
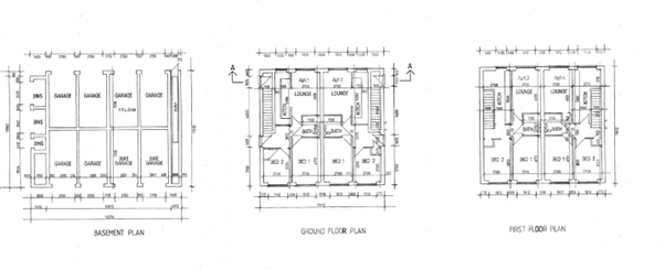
Nestled in a highly sought-after area, this modern block of apartments is a golden opportunity for investors looking to expand their portfolio. Comprised of four spacious two-bedroom units, this property is already generating approximately £33,600 in gross annual rental income, with potential for increases. Impeccably maintained, each apartment features a comfortable living space complemented by a modern kitchen, ensuring high demand from tenants.
The ground-floor apartments come with private gardens, offering tenants an appealing outdoor space. Despite the property’s undeniable charm and earning potential, it’s essential to note that the local area faces some economic challenges, which affect overall demographics. However, the prime location with excellent transport links, a variety of shops, and essential amenities nearby enhances its rental attractiveness, making it ideal for both families and constrained renters.
This freehold property is rare in this market, so act quickly to schedule a viewing and seize this exceptional investment opportunity. With its combination of comfort, functionality, and potential for income growth, it’s clear that this property won’t be available for long. Don’t miss out on making it a valuable addition to your investment strategy!
8 bedroom block of apartments for sale in Kirkham, Preston, PR4 — £485,000 • 8 bed • 8 bath
7 bedroom block of apartments for sale in Apartment Block, 4 Apartments at Haigh Road, Aspull, WN2 1YA, WN2 — £500,000 • 7 bed • 4 bath • 2586 ft²
1 bedroom apartment for sale in Station Terrace, 8-10 Waltons Parade, Preston, PR1 — £90,000 • 1 bed • 1 bath • 399 ft²
2 bedroom apartment for sale in Royal Drive, Fulwood, Preston, PR2 — £100,000 • 2 bed • 1 bath • 381 ft²
3 bedroom flat for sale in Devonshire Road, Blackpool, FY2 — £185,000 • 3 bed • 2 bath • 1248 ft²
2 bedroom apartment for sale in City Bridge Apartments, 3 Glovers Court, Preston, PR1 — £187,000 • 2 bed • 2 bath • 840 ft²










































