Ready-to-live apartment with parking and strong transport links.
Two double bedrooms, principal with en‑suite
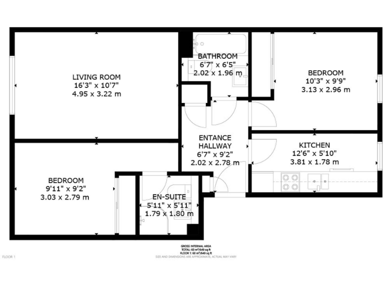
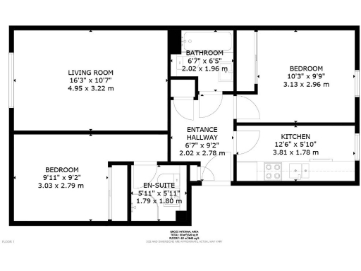
This bright two-bedroom first-floor flat in Cathcart offers practical, ready-to-live accommodation with good transport links and allocated parking. The living room benefits from large windows and natural light, while the contemporary kitchen and integrated appliances make day-to-day living straightforward. The principal bedroom’s en-suite is a useful addition and the second bathroom supports sharing or guests.
Practical comforts include gas central heating, double glazing, fast broadband and excellent mobile signal — all attractive to commuters and new homeowners. The building is accessed via secure entry and sits within well-kept communal grounds, with residents’ off-street parking immediately to the front.
Notable points: the property is modest in size (around 646 sq ft) and forms part of a communal development with no private garden. There is a service charge (approx. £1,164 pa) and the wider neighbourhood is classified as very deprived, which may affect long-term resale values in parts. EPC rated C and freehold tenure are positives, but buyers should inspect communal maintenance and service arrangements before committing.
2 bedroom flat for sale in Greenholme Court, Cathcart, G44 — £149,000 • 2 bed • 1 bath • 555 ft²
2 bedroom flat for sale in 97 Clarkston Road, Flat 2/2, Cathcart, Glasgow, G44 3BL, G44 — £209,000 • 2 bed • 1 bath • 1044 ft²
2 bedroom flat for sale in Netherlee Place, Glasgow, Glasgow City, G44 — £175,000 • 2 bed • 2 bath • 685 ft²
2 bedroom flat for sale in 125 Old Castle Road, Flat 1/3, Cathcart, Glasgow, G44 5TJ, G44 — £180,000 • 2 bed • 1 bath • 710 ft²
2 bedroom flat for sale in 1/1, 77 Brunton Street, Cathcart, G44 3NF, G44 — £225,000 • 2 bed • 2 bath • 914 ft²
2 bedroom flat for sale in Flat 3/2, 684 Cathcart Road, Glasgow, G42 — £150,000 • 2 bed • 1 bath • 599 ft²






































































































