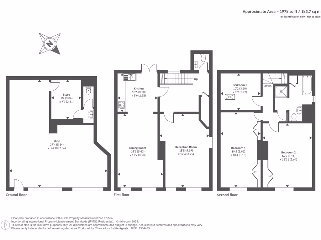
Central mixed-use building with long-term shop income and enclosed garden.
Three-storey period property with character features and high ceilings
Separate let retail unit producing rental income on a lease
Three-bedroom flat with open-plan living and town/rural views
Small enclosed rear garden and cellar providing additional storage
Cellar adjoins neighbouring cellar — investigate boundaries and access
Single bathroom in the flat; check space for modernisation
Slow broadband speeds locally; area classified as very deprived
Freehold, built before 1900, located inside Brecon Beacons National Park
A substantial three-storey, freehold period property combining a three-bedroom flat above with a separately let ground-floor retail unit. The flat features an open-plan living space that adjoins a modern kitchen, an attractive sitting room with town and rural views, and three bedrooms all enjoying outlooks across Hay-on-Wye and surrounding countryside. The building sits within the Brecon Beacons National Park and benefits from a small enclosed garden and cellar storage.
The retail area currently produces rental income under a lease and includes a sales area, office/storeroom, toilet and direct access to the cellar. There is separate access between the flat and the shop, which supports mixed residential/commercial use and flexible occupation or continued investment. High ceilings, period brick façade and character features add appeal for buyers seeking a distinctive property in a prime market-town location.
Notable practical points: broadband speeds in the area are reported as slow and the property sits in a very deprived area classification despite low crime figures; plot size is small. The cellar adjoins a neighbouring cellar, so any works or alterations will need careful investigation. The flat has one bathroom only. Viewing is recommended to judge layout and condition in person, and to review lease terms for the commercial tenant.
High street retail property for sale in Castle Street, Hay-on-Wye, Hereford, Powys, HR3 — £400,000 • 1 bed • 1 bath • 1348 ft²
4 bedroom detached house for sale in High street shop with 2 separate apartments., Hay-On-Wye, Herefordshire, HR3 — £600,000 • 4 bed • 2 bath • 2986 ft²
3 bedroom terraced house for sale in Garribaldi Terrace, Hay-on-Wye, Hereford, Powys, HR3 — £450,000 • 3 bed • 2 bath • 1157 ft²
4 bedroom semi-detached house for sale in Hay-On-Wye, HR3 — £695,000 • 4 bed • 3 bath • 1848 ft²
4 bedroom apartment for sale in St Johns Place, Hay-on-Wye, Hereford, Powys, HR3 — £700,000 • 4 bed • 1 bath • 2557 ft²
High street retail property for sale in St Johns Place, Hay-on-Wye, Hereford, Powys, HR3 — £700,000 • 1 bed • 1 bath • 1540 ft²


























































































