Large garden and parking; scope to extend and modernise for growing families.
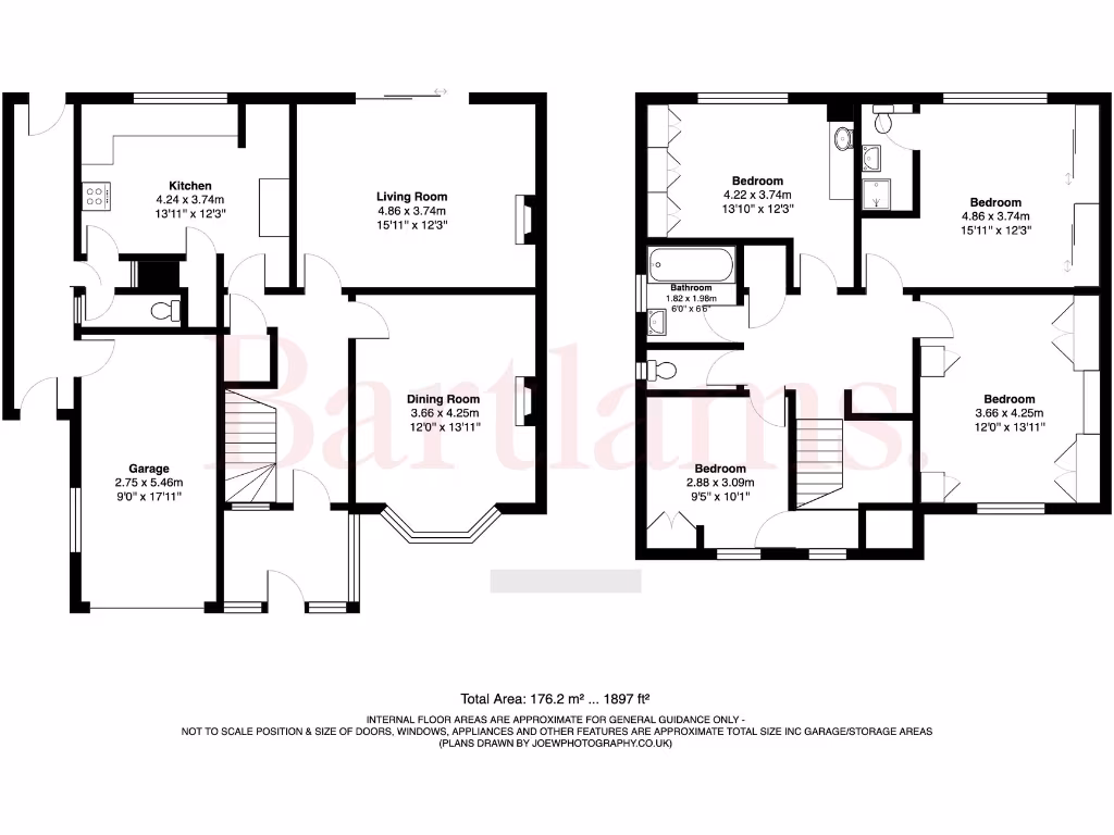
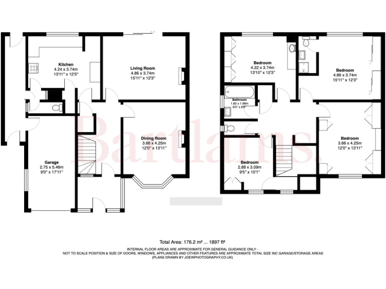
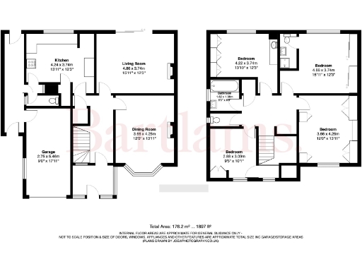
- Four good-sized bedrooms, principal with ensuite
- Two reception rooms plus fitted breakfast kitchen
- Large driveway with parking for multiple cars
- Mature, enclosed lawned rear garden with high privacy
- Loft with conversion potential, subject to consent
- Potential to extend (planning permission required)
- Some rooms dated and in need of modernisation
- EPC D and council tax noted as expensive
Occupying a sought-after position on Yew Tree Lane, this four-bedroom detached home is offered with no upward chain and strong family appeal. The layout includes two reception rooms, a fitted breakfast kitchen with pantry, and a principal bedroom with ensuite. Double glazing and gas central heating provide everyday comfort.
The plot is a standout feature: a large driveway for multiple cars and a mature, enclosed lawned rear garden bordered by established trees that deliver privacy and outdoor space for children and gardening. The generous loft and obvious room to extend (subject to planning) create clear scope to increase living space and add value.
The property dates from the 1930s and shows mixed presentation. Some reception areas, notably the main living room, are dated and will benefit from modernisation to suit contemporary tastes. The EPC is D and council tax is noted as expensive — factor running costs into your budget. Any extension or loft conversion would require relevant planning permissions.
Located close to well-regarded primary and secondary schools, local shops and countryside walks, this home suits families seeking a long-term base with scope to personalise. Good commuter links via the nearby M54 make access to Wolverhampton and the wider West Midlands straightforward.
5 bedroom detached house for sale in 81 Yew Tree Lane, Tettenhall, Wolverhampton, WV6 8UQ, WV6 — £685,000 • 5 bed • 2 bath • 1245 ft²
4 bedroom detached house for sale in Yew Tree Lane, Tettenhall, Wolverhampton, WV6 — £695,000 • 4 bed • 2 bath • 1777 ft²
5 bedroom detached house for sale in Yew Tree Lane, Wolverhampton, WV6 — £775,000 • 5 bed • 2 bath • 2306 ft²
4 bedroom detached house for sale in Corfe Close, Perton, WV6 — £325,000 • 4 bed • 1 bath • 1033 ft²
4 bedroom detached house for sale in Bridgewater Drive, Wombourne, WV5 — £450,000 • 4 bed • 2 bath • 1557 ft²
4 bedroom detached house for sale in Stokesay Avenue, Perton Wolverhampton, Staffordshire, WV6 — £412,500 • 4 bed • 1 bath • 1768 ft²






































































































