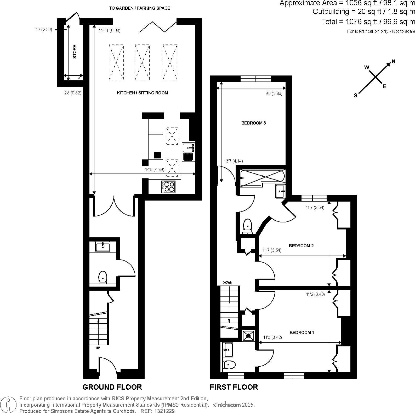
Three good-sized bedrooms with one en-suite bathroom
This well-presented split-level maisonette sits on Thames Ditton High Street, offering three good bedrooms and two bathrooms across about 1,056 sq ft. The ground floor is an open-plan kitchen, dining and lounge with patio doors to a private, enclosed garden and a useful external storage cupboard. Remote-controlled blinds on the triple skylights and large windows deliver plenty of natural light.
Practical features include an allocated off-street parking space accessed via a side gate, fast broadband, double glazing and mains gas central heating. The lease is long (around 127–128 years remaining) with a modest ground rent of £100, making this suitable for owner-occupiers or buy-to-let investors who want village convenience.
Buyers should note the maisonette sits above a High Street shop, so expect some street activity and outlook toward the bustling retail area. The building is solid-brick (circa 1900–1929) and is recorded as having no built-in wall insulation (assumed), which may affect running costs and future retrofit work.
This home will particularly suit families seeking excellent local schools and village living on foot, or investors after a well-located leasehold property with parking and outdoor space. Presentation is immaculate, but prospective purchasers should factor in the above-shop setting and possible insulation improvements.
2 bedroom maisonette for sale in Ditton Lawn, Portsmouth Road, Thames Ditton, KT7 — £380,000 • 2 bed • 1 bath • 627 ft²
3 bedroom flat for sale in Portsmouth Road, Thames Ditton, KT7 — £599,950 • 3 bed • 2 bath • 1132 ft²
2 bedroom maisonette for sale in Warwick Gardens, Thames Ditton, KT7 — £415,000 • 2 bed • 1 bath • 714 ft²
1 bedroom flat for sale in High Street, Thames Ditton, KT7 — £299,950 • 1 bed • 1 bath • 505 ft²
2 bedroom semi-detached house for sale in Warwick Road, Thames Ditton, United Kingdom, KT7 — £465,000 • 2 bed • 1 bath • 480 ft²
3 bedroom flat for sale in Criterion Buildings, Portsmouth Road, KT7 — £499,000 • 3 bed • 1 bath • 1160 ft²






































































