Large rooms and central transport links ideal for growing families or professionals.
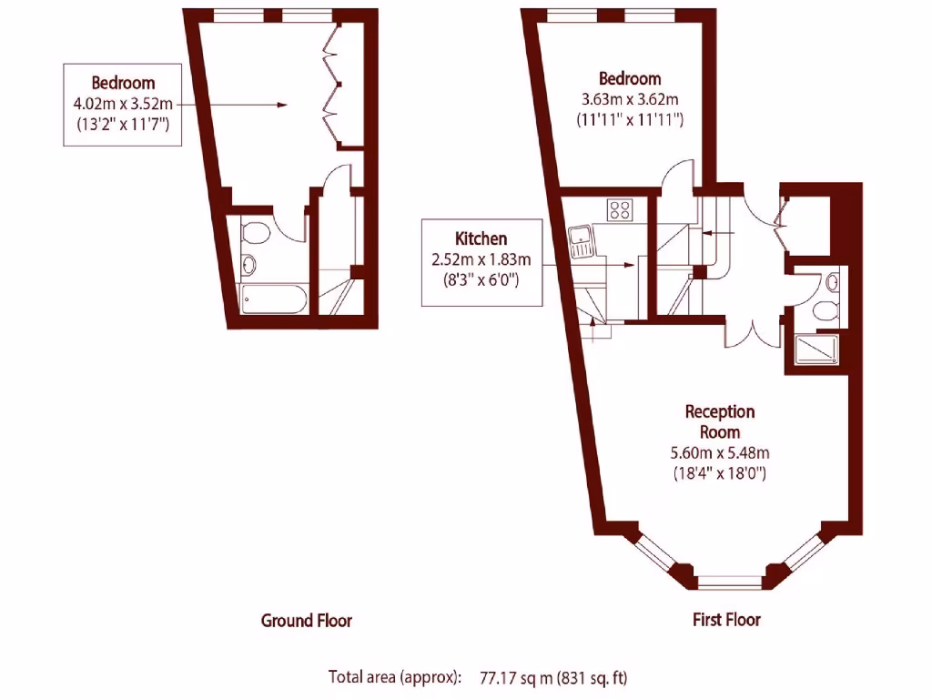
First-floor two-bed, two-bath layout with principal en-suite
Set on the first floor of a red-brick period block on Courtfield Road, this two-bedroom, two-bath apartment combines generous room proportions with a prime South Kensington address. The principal bedroom includes an en-suite, and a spacious reception room with high ceilings and bay windows provides plenty of natural light for everyday living and entertaining. The property may have access to a well-regarded communal garden shared with neighbouring residents.
The flat is offered as a share of freehold, which gives longer-term control over the building; it benefits from mains gas heating via a boiler and radiators and good broadband and mobile signal. The location is a major asset — Gloucester Road tube, Old Brompton Road amenities and numerous independent schools are within easy reach, making this a practical choice for families or professionals wanting central living.
Buyers should note the annual service charge (£6,281) and a high Council Tax band, which increase ongoing costs. The listing records the building as constructed 1976–82 and fitted with secondary glazing; walls are solid brick with partial insulation (assumed). Local crime levels are reported as above average — an important consideration when comparing inner-city options.
Overall this apartment offers well-proportioned living in a sought-after SW7 setting with strong transport links and schooling nearby. It will suit purchasers prioritising location and room size who accept higher running costs and inner-city conditions, and who may wish to update elements over time.
2 bedroom flat for sale in Courtfield Gardens, London, SW5 — £2,100,000 • 2 bed • 2 bath • 1186 ft²
2 bedroom apartment for sale in Courtfield Road, London, SW7 — £795,000 • 2 bed • 1 bath • 623 ft²
2 bedroom flat for sale in Courtfield Road, London, SW7 — £1,300,000 • 2 bed • 2 bath • 811 ft²
2 bedroom flat for sale in Courtfield Gardens, London, SW5 — £1,990,000 • 2 bed • 2 bath • 1189 ft²
2 bedroom apartment for sale in Courtfield Gardens, London, SW5 — £1,990,000 • 2 bed • 2 bath • 1186 ft²
2 bedroom flat for sale in Courtfield Gardens, South Kensington, London, SW5 — £750,000 • 2 bed • 1 bath • 835 ft²


























