Bright, substantial family home with large garden — ideal for a renovation project.
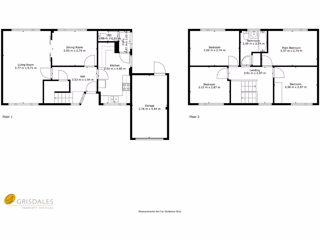
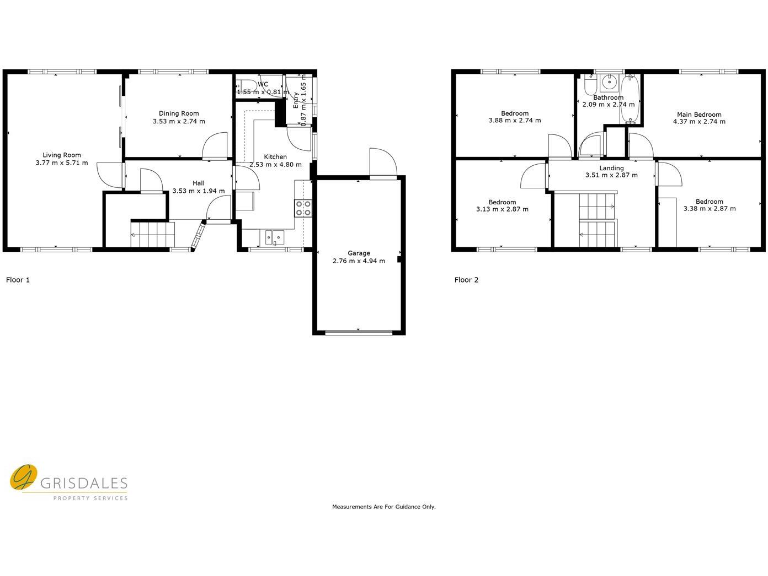
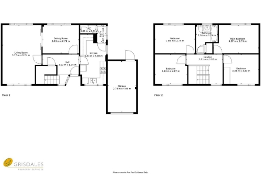
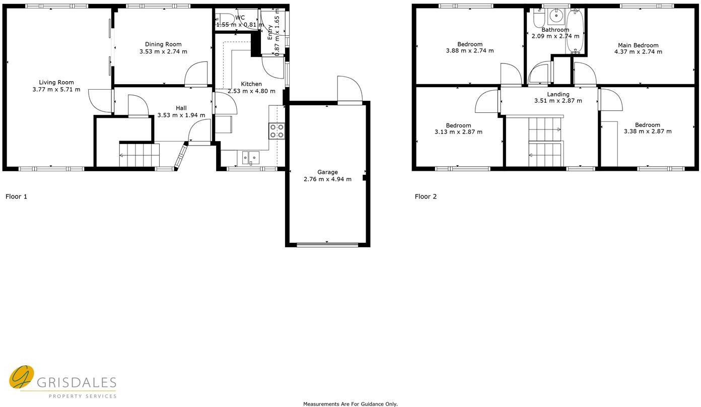
Detached four-bedroom family house with large front and rear gardens
A four-bedroom detached house on Vicarage Lane offering generous family accommodation and substantial gardens. Cherished by the same family since 1971, the home sits slightly back from the road with a larger-than-expected front garden, tarmac drive and single garage. Large windows give bright rooms and pleasant outlooks across rooftop and distant countryside.
The property requires upgrading and cosmetic refresh throughout — this is a clear refurbishment opportunity to modernise heating, kitchen and bathrooms, and improve insulation. There is one family bathroom and a separate ground-floor WC, so buyers should plan for limited bathroom provision until altered. EPC rating D and assumed cavity wall construction (no insulation) indicate potential for energy improvements.
For families, the location is a strong selling point: quiet, sought-after residential lane with quick access to Cockermouth town centre, A66, good local schools (including Outstanding-rated nearby options), leisure facilities and countryside walks. No chain and freehold tenure make for a straightforward purchase route for a buyer prepared to invest in updating the house.
Overall, this is a project property with real upside: keep the roomy layout and large garden, update services and finishes, and create a comfortable, efficient family home in a very affluent, low-crime neighbourhood.
3 bedroom detached house for sale in Isel Road, Cockermouth, CA13 — £375,000 • 3 bed • 1 bath • 1370 ft²
4 bedroom detached house for sale in Tweedmill Lane, Cockermouth, CA13 — £489,000 • 4 bed • 3 bath • 361 ft²
4 bedroom detached house for sale in Oaktree Crescent, Cockermouth, CA13 — £400,000 • 4 bed • 1 bath • 1265 ft²
3 bedroom detached bungalow for sale in Vicarage Lane, Cockermouth, CA13 — £480,000 • 3 bed • 2 bath • 1592 ft²
3 bedroom end of terrace house for sale in Lorton Road, Cockermouth, CA13 — £239,995 • 3 bed • 1 bath • 1076 ft²
3 bedroom semi-detached bungalow for sale in Green Bank Lane, Cockermouth, CA13 — £275,000 • 3 bed • 1 bath • 947 ft²










































































































