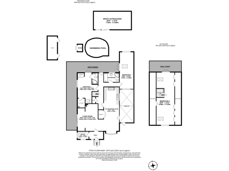
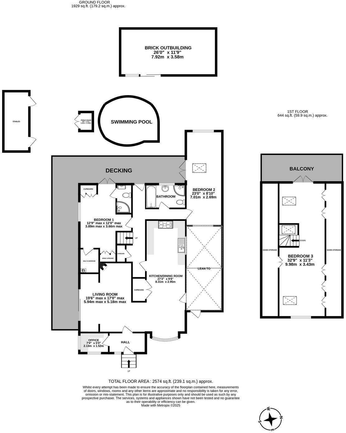
Large garden, pool and separate-title land ideal for improvement or extension.
Detached three double-bedroom house with loft-converted third bedroom
Set back behind a gated entrance on about 0.4 acres, this detached three-bedroom house combines riverside convenience with rare development potential. The plot includes a private swimming pool, extensive mature gardens and parking for several cars — a strong proposition for a growing family or a buyer seeking a project with upside.
The house is arranged largely on one level with a loft-converted third bedroom. The ground floor offers an open-plan living area, a well-equipped kitchen with granite worktops and walk-in pantry, a small home office, two double bedrooms with direct garden access and a tiled family bathroom. The loft bedroom is bright with three Velux windows and a balcony overlooking the rear garden.
Key strengths are the substantial plot (partly on a separate title deed), riverside location minutes away, excellent mobile and broadband connectivity, and mains gas central heating with recent double glazing. Notable considerations: the property has an EPC rating of E, is built of solid brick with assumed no wall insulation, carries a medium flood risk, and lies in council tax band F — all factors buyers should factor into renovation and running costs.
This freehold home will suit buyers wanting immediate comfortable living with scope to modernise, extend or pursue the stated development opportunity (subject to planning permission). Viewings are recommended to appreciate the plot size, private setting and the rare potential offered by the separate title land.
4 bedroom detached house for sale in Chertsey Lane, Staines, Surrey, TW18 — £1,495,000 • 4 bed • 4 bath • 4004 ft²
House for sale in Cherry Orchard Road, West Molesey, KT8 — £1,175,000 • 1 bed • 1 bath • 1958 ft²
3 bedroom detached house for sale in Dockett Eddy, Chertsey, Surrey, KT16 — £1,175,000 • 3 bed • 2 bath • 1673 ft²
4 bedroom detached house for sale in Mayfield Gardens, Staines, TW18 — £1,695,000 • 4 bed • 3 bath • 3700 ft²
4 bedroom detached house for sale in Hamhaugh Island, Shepperton, Surrey, TW17 — £1,250,000 • 4 bed • 2 bath • 1852 ft²
4 bedroom detached house for sale in Mayfield Gardens, Staines-upon-thames, TW18 — £1,695,000 • 4 bed • 3 bath • 3660 ft²


















































































































































































