**Standout Features:**
- Immaculate one-bedroom apartment
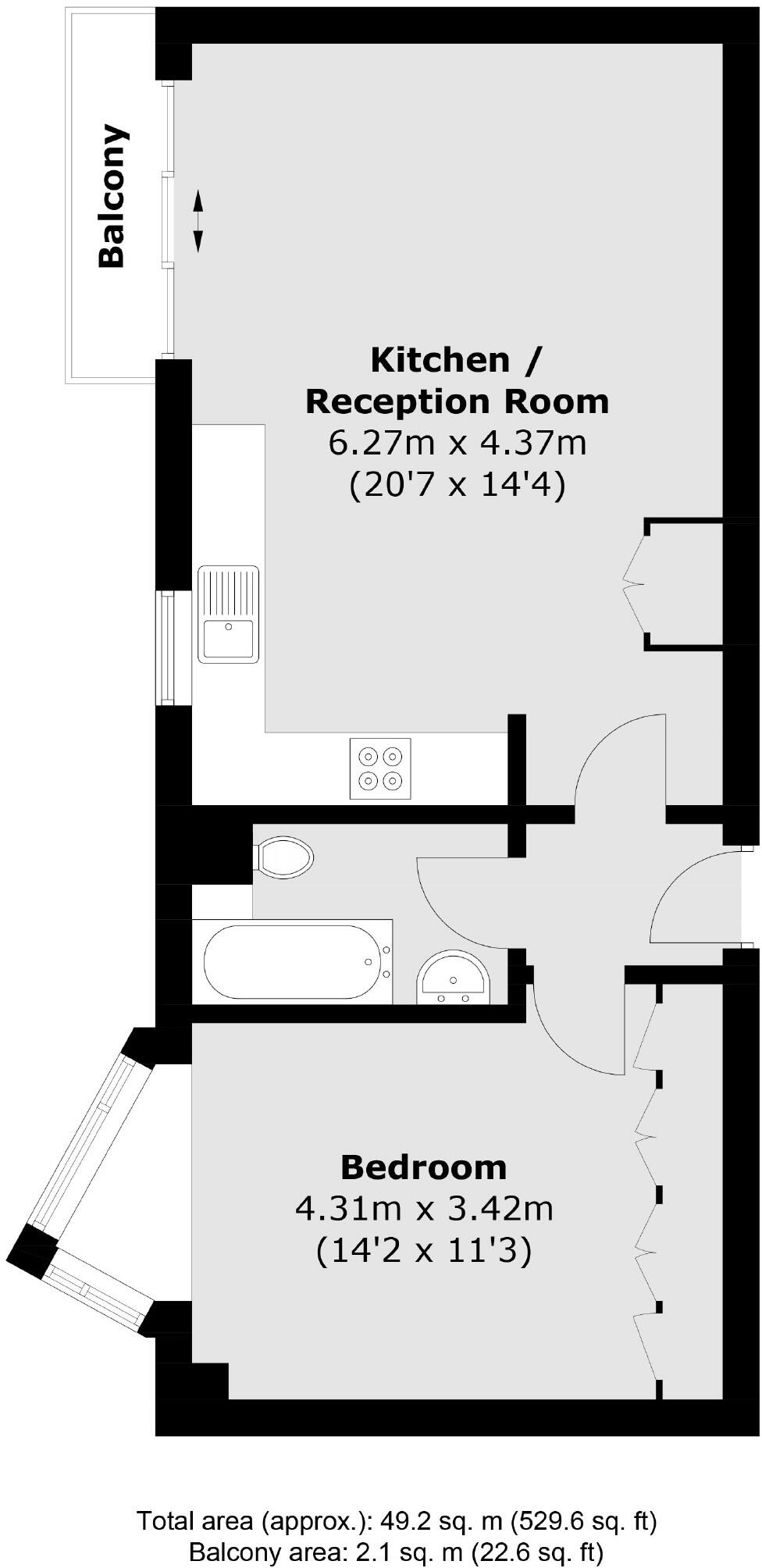
- Bright open-plan living space with hardwood flooring
- Private balcony offering city views
- Modern three-piece bathroom
- Excellent transport links, near Borough Underground and London Bridge
- Secure entry and lift access
- Ideal location near Borough Market and cultural attractions
**Concerns:**
- Leasehold tenure with 96 years remaining
- Annual service charge of £3,000 and ground rent of £200
- High crime rate in the area
Experience contemporary urban living in this stunning one-bedroom apartment located in the vibrant SE1 postcode. Boasting an immaculate open-plan design, this residence features hardwood floors, a spacious double bedroom, and a modern three-piece bathroom—all complemented by a private balcony for your morning coffee. It’s perfectly suited for singles or couples looking to immerse themselves in the multicultural lifestyle of Borough, with artisanal cafes, gourmet restaurants, and the iconic Borough Market just steps away.
With excellent transport options nearby, including Borough Underground and London Bridge, commuting is a breeze. However, potential buyers should note the long leasehold, service charge, and area crime rate, which warrants consideration. This gem in inner-city cosmopolitan living also offers fantastic investment potential, combining comfort, location, and style—making it a prime opportunity not to be missed!
1 bedroom flat for sale in Long Lane, London Bridge, SE1 — £460,000 • 1 bed • 1 bath • 529 ft²
1 bedroom apartment for sale in Arc House, Maltby Street, London, SE1 — £450,000 • 1 bed • 1 bath • 527 ft²
1 bedroom apartment for sale in Long Lane, London, SE1 — £500,000 • 1 bed • 1 bath • 552 ft²
2 bedroom flat for sale in Quastel House SE1 — £775,000 • 2 bed • 2 bath • 1000 ft²
1 bedroom flat for sale in Park Street, London Bridge, SE1 — £450,000 • 1 bed • 1 bath • 594 ft²
1 bedroom apartment for sale in Sanctuary Street, London, SE1 — £499,950 • 1 bed • 1 bath • 685 ft²


























