Town centre location with secure underground parking and balcony views.
First-floor apartment with lift access
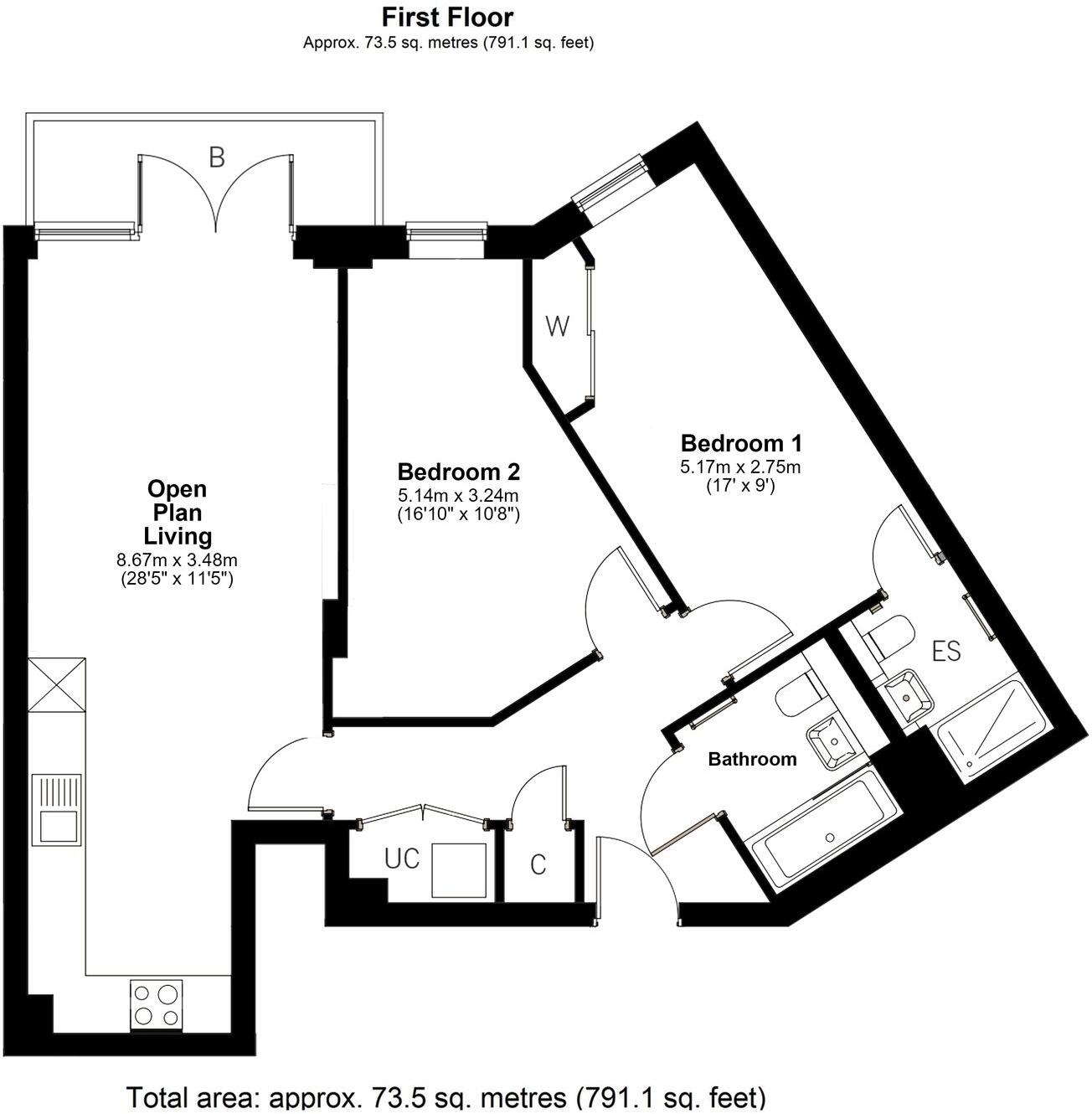
A bright first-floor apartment in a modern mid-rise block, positioned within easy reach of Crawley town centre and transport links. The open-plan living/dining room and larger-than-average kitchen create a sociable layout, while a private balcony overlooks well-maintained communal gardens. Two double bedrooms include a principal bedroom with fitted wardrobes and an en-suite; a separate family bathroom completes the accommodation.
Practical features include secure gated underground allocated parking, lift access to the floor, and built-in storage. The long lease (242 years) and EPC B are strong ownership points for buyers seeking low-maintenance urban living. At about 791 sq ft, the apartment offers roomy proportions for a two-bedroom flat and suits first-time buyers or investors alike.
Important practical considerations: the property uses electric room heaters as the main heating source and runs on electricity supply, which can affect running costs. Annual service charge totals approximately £2,400 and ground rent is £250 per year. The wider area records very high crime levels and local deprivation indicators, which buyers should weigh alongside the convenience of nearby shops, schools and fast transport links.
This flat offers straightforward, modern living with good transport access and secure parking, balanced by measurable running costs and local area considerations. Request a viewing to assess the neighborhood feel and running-cost implications for your circumstances.
2 bedroom apartment for sale in West Green Drive, West Green, Crawley, West Sussex, RH11 — £290,000 • 2 bed • 2 bath • 649 ft²
2 bedroom flat for sale in Ifield Road, Crawley, RH11 — £275,000 • 2 bed • 1 bath • 803 ft²
2 bedroom apartment for sale in Robinson House, High Street, Crawley, RH10 — £186,000 • 2 bed • 1 bath • 710 ft²
1 bedroom apartment for sale in West Green Drive, West Green, Crawley, West Sussex, RH11 — £215,000 • 1 bed • 1 bath • 544 ft²
2 bedroom flat for sale in West Green Drive, Crawley, RH11 — £240,000 • 2 bed • 1 bath • 709 ft²
2 bedroom apartment for sale in The Boulevard, Crawley, RH10 — £260,000 • 2 bed • 2 bath • 511 ft²






























































































