KA13 6BL - 3 bedroom maisonette for sale in 9 Almswall Road, Kilwinnin…

View on Property Piper

3 bedroom maisonette for sale in 9 Almswall Road, Kilwinning, KA13 6BL, KA13

Summary - 9, ALMSWALL ROAD, KILWINNING KA13 6BL

3 bed 1 bath Maisonette

**Standout Features:**
- Price: £70,000 – an affordable opportunity
- Freehold tenure offering long-term ownership
- Three bedrooms – ideal for families or investors
- Generous lounge and fitted kitchen
- Private rear garden with drying green
- Excellent mobile signal and fast broadband for modern living
- Secure gated entry for added safety

**Potential Downsides:**
- Located in a very deprived area
- Might require some renovations to meet contemporary decor preferences

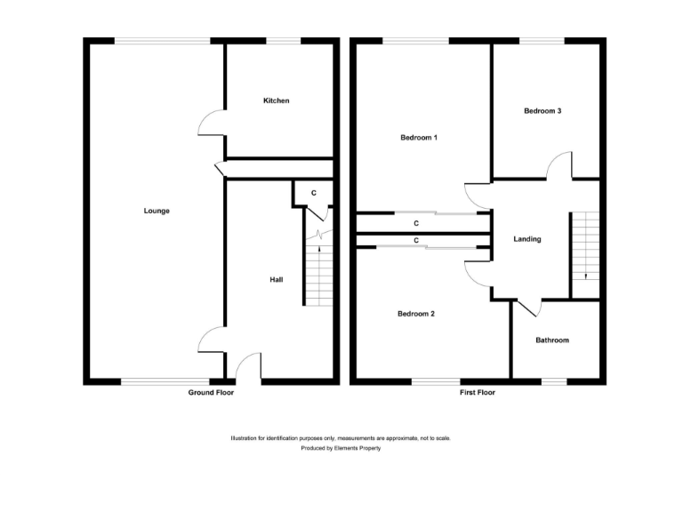
Discover this exquisite maisonette flat in Kilwinning, offering a unique blend of comfort and potential at an unbeatable price. The spacious reception hallway welcomes you into a bright and airy lounge, leading directly to a well-equipped kitchen. Upstairs, you will find two spacious double bedrooms and a cozy single bedroom, all providing ample storage with built-in cupboards. Enjoy the convenience of a private garden featuring a secure drying green, perfect for family gatherings or outdoor relaxation.

With very cheap council tax and excellent transport links to Glasgow and beyond, this property is ideal for both families seeking a vibrant community and investors looking for rental potential. While the area faces challenges, the location offers proximity to amenities, schools, and leisure options, enhancing lifestyle and convenience. Act quickly—properties like this, with such versatility and potential, do not stay on the market for long!

Property Details

Brochure Descriptions

Image Descriptions

Rooms

Textual Property Features

Detected Visual Features

Nearest Bars And Restaurants

,,,,}

Nearest General Shops

,,}

Nearest Grocery shops

,,}

Nearest Supermarkets

,,}

Nearest Religious buildings

,,}

Nearest Medical buildings

,,,}

Nearest Airports

,,}

Nearest Leisure Facilities

,,,,}

Nearest Tourist attractions

,,}

Nearest Train stations

,,,,}

Nearest Bus stations and stops

,,,,}

Nearest Hotels

,,}

Tags

Local Market Stats

Similar Properties

Meta

High Res Images

Compatible Images

Low res Images

Thumbnails

Raw Images

High Res Floorplan Images

Compatible Floorplan Images

Low res Floorplan Images

FloorplanImages Thumbnail

Raw Floorplan Images