**Standout Features:**
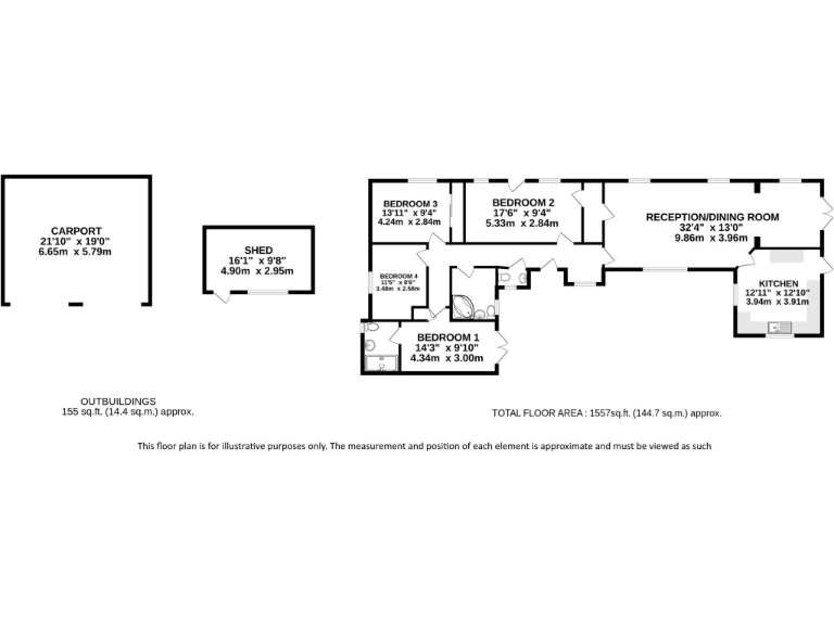
- Charming detached bungalow set on a large, private plot of 0.69 acres.
- Four spacious bedrooms and two bathrooms make it ideal for families.
- Bright, open living areas with a mid-century modern design including a cozy fireplace.
- Large front garden, double carport, and ample off-street parking.
- Scenic rear garden with a pond, nature trails, and a greenhouse.
- Conveniently located close to Kings Langley High Street and excellent local schools.
- Chain-free sale allows for quick and seamless purchasing.
Tucked away in a beautiful wooded setting, this stunning detached bungalow offers the perfect blend of comfort and tranquility. With four generous bedrooms and two well-appointed bathrooms, it provides ample space for families or individuals seeking single-story living. The inviting living room, enhanced by natural light and mid-century modern touches, flows into a dining area, making it perfect for entertaining or cozy family gatherings.
Outside, the expansive rear garden presents a unique opportunity for outdoor exploration and play, accentuated by serene surroundings and a delightful pond. Located just a short stroll from Kings Langley High Street, enjoy easy access to an array of cafes, restaurants, and shops, along with a nearby train station for quick commutes.
This property, with its inviting charm and potential for personalization, won't last long in such a high-demand area—make it your serene oasis today!















































































































