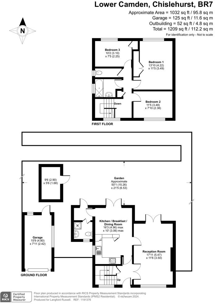
**Standout Features:**
- Detached family home with three spacious bedrooms
- Requires refurbishment with solid extension potential (planning permission needed)
- Chain-free and vacant freehold
- Dual reception rooms, family bathroom, and ground floor shower room
- Two-tiered garden with charming features, garage, and ample off-street parking
- Within a short walk to Chislehurst train station for fast London access
- Well-regarded local schools and affluent neighborhood
**Notable Concerns:**
- Requires modernization; currently in need of refurbishment
- Planning permission necessary for potential extensions
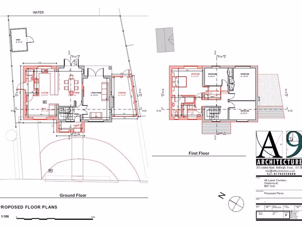
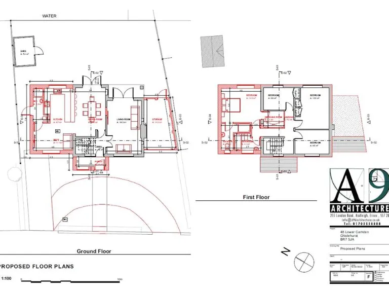
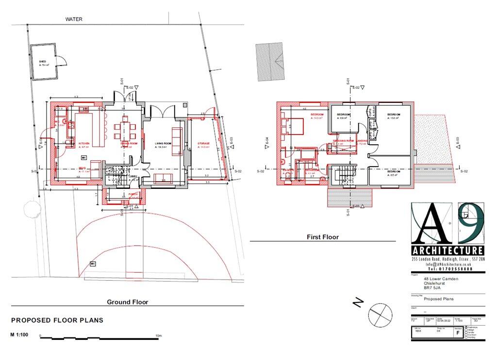
This detached three-bedroom family home, nestled in the affluent BR7 area, offers a blank canvas for renovation enthusiasts and families alike. Boasting significant potential for expansion with already drawn plans for a modern single-story extension, this property is perfect for those seeking to create their dream home. The generous off-street parking, garage, and serene two-tiered garden enhance the outdoor appeal. Located just a five-minute walk from Chislehurst train station, you’ll enjoy easy access to central London, making it ideal for commuters. Local primary and secondary schools are highly rated, providing an excellent family-friendly environment.
While the property needs refurbishing, the strategic opportunity to customize and extend awaits your vision. With low crime rates and an affluent community surrounding this major conurbation, don't miss your chance to secure this unique property that combines charming features with future flexibility. Act now, as opportunities like this in such a prime location are not available for long!
3 bedroom semi-detached house for sale in Sandy Ridge, Chislehurst, BR7 — £675,000 • 3 bed • 1 bath • 1130 ft²
4 bedroom detached house for sale in Willow Grove, Chislehurst, BR7 — £1,500,000 • 4 bed • 2 bath • 2119 ft²
3 bedroom semi-detached house for sale in Holmdale Road, Chislehurst, BR7 — £525,000 • 3 bed • 1 bath • 965 ft²
2 bedroom semi-detached house for sale in Barham Close, Chislehurst, BR7 — £525,000 • 2 bed • 1 bath • 956 ft²
5 bedroom detached house for sale in Islehurst Close, Chislehurst, BR7 — £990,000 • 5 bed • 2 bath • 2100 ft²
3 bedroom semi-detached house for sale in Mainridge Road, Chislehurst, BR7 — £585,000 • 3 bed • 1 bath • 1194 ft²






































































