**Standout Features:**
- Newly renovated ground flat with Victorian period charm.
- Large private rear garden and additional brick built storage outbuilding.
- Excellent access to Crowborough train station and local amenities.
- Off-street parking with private entrance through a secure gate.
- Affordable council tax and low crime rate in an affluent area.
**Summary:**
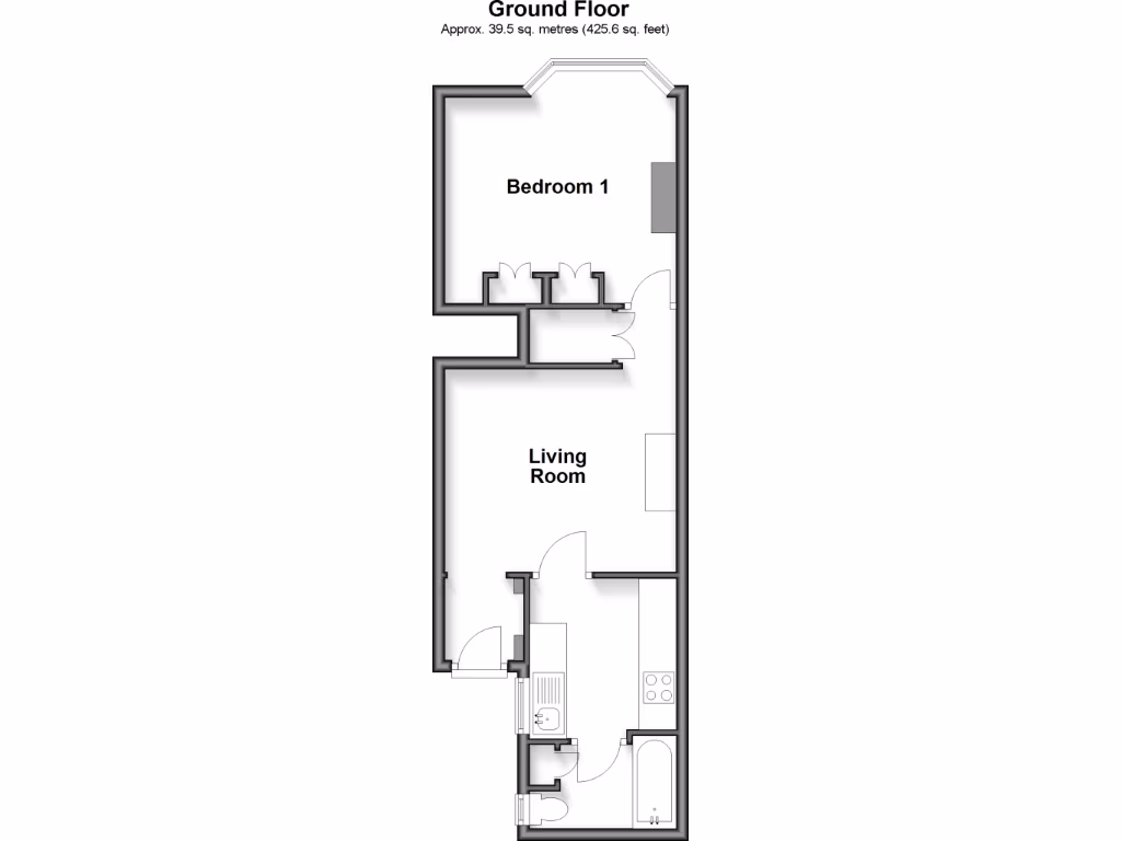
Discover this charming newly renovated ground flat in a desirable location, perfect for first-time buyers or investors seeking rental potential. Boasting a spacious living area, generous bedroom, and a well-maintained private garden, this property seamlessly blends comfort with convenience. With off-road parking and a secure side entrance, you'll enjoy easy access to local amenities, schools, and the Crowborough train station, making it ideal for commuters.
While the property is in excellent condition, the potential for customization remains, allowing you to tailor the space to your style. Its Victorian features, including high ceilings and traditional bay windows, provide character and warmth to your new home. Keep in mind, there are some maintenance concerns due to the solid brick construction without current insulation. Yet, this offers a unique opportunity for those looking to create their ideal living space. Don’t miss out on this exceptional chance to invest in a thriving community!
1 bedroom ground floor flat for sale in Crowborough Hill, Crowborough, East Sussex, TN6 — £210,000 • 1 bed • 1 bath
1 bedroom apartment for sale in Crowborough Hill, Crowborough, East Sussex, TN6 — £160,000 • 1 bed • 1 bath • 413 ft²
1 bedroom ground floor flat for sale in Crowborough Hill, Crowborough, TN6 — £210,000 • 1 bed • 1 bath • 570 ft²
2 bedroom flat for sale in Farningham Road, Crowborough, TN6 2JP, TN6 — £200,000 • 2 bed • 2 bath • 615 ft²
1 bedroom flat for sale in New Town, Uckfield, TN22 — £180,000 • 1 bed • 1 bath • 412 ft²
2 bedroom apartment for sale in Croft Road, Crowborough, East Sussex, TN6 — £249,950 • 2 bed • 1 bath • 698 ft²






















































