**Standout Features:**
- Newly renovated one-bedroom apartment.
- Exclusive location with stunning sea views over the Solent.
- Modern open-plan living space with high-end finishes.
- Bright, minimalist design with wood flooring and high ceilings.
- Lift access and no forward chain for an easy move-in process.
**Potential Concerns:**
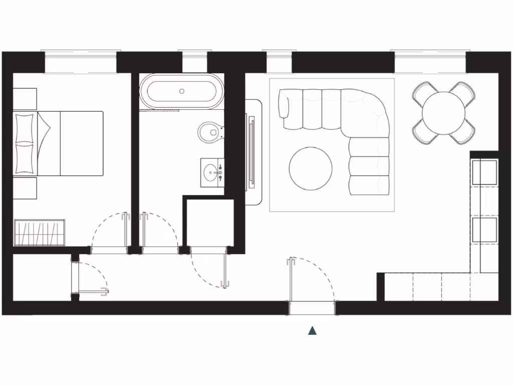
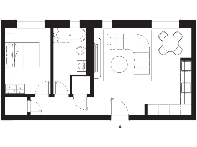
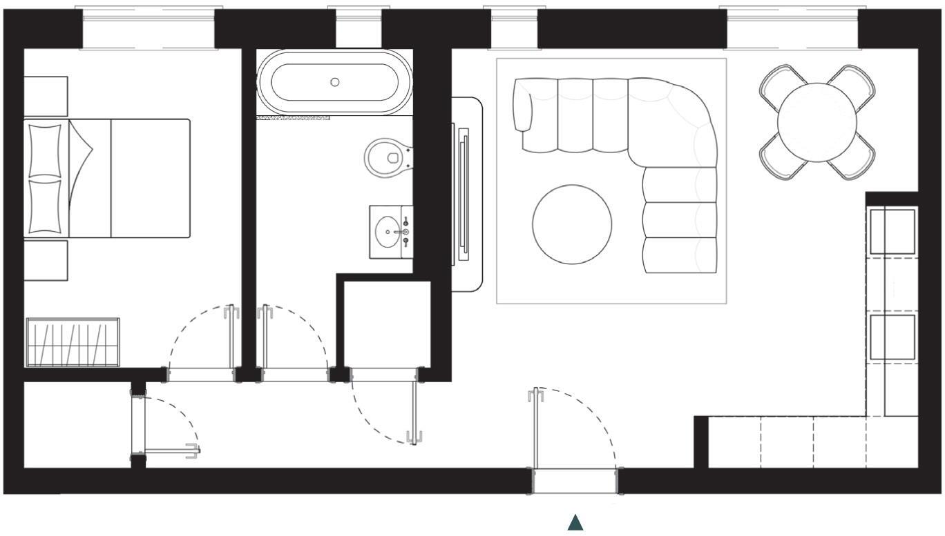
- Average size of the apartment at 530 sq ft; limited outdoor space.
- Property located in a high crime area.
**Summary:**
Discover the perfect blend of modern living and coastal charm in this newly renovated one-bedroom apartment, ideally situated on St Helens Parade with breathtaking views of the Solent. The open-plan living area is bathed in natural light, showcasing a contemporary German kitchen adorned with quartz countertops and high-end Neff appliances. The stylish luxury bathroom and comfortable double bedroom add to the appeal, while the building's historical architectural charm provides a unique backdrop. This well-maintained flat offers lift access and is chain-free, ensuring a smooth transition to your new seaside lifestyle.
However, with its average size of 530 sq ft and limited outdoor space, it may appeal primarily to singles, couples, or savvy investors looking for rental potential in a sought-after location. While the property sits within a vibrant cosmopolitan neighborhood with ample amenities, be mindful that it is in a high-crime area. Don't miss this exclusive opportunity—schedule your viewing today!
2 bedroom flat for sale in St. Helens Parade, Southsea, PO4 — £750,000 • 2 bed • 2 bath • 1500 ft²
2 bedroom flat for sale in St. Helens Parade, Southsea, PO4 — £325,000 • 2 bed • 1 bath • 530 ft²
2 bedroom flat for sale in St. Helens Parade, Southsea, PO4 — £695,000 • 2 bed • 2 bath • 1367 ft²
3 bedroom flat for sale in St. Helens Parade, Southsea, PO4 — £750,000 • 3 bed • 2 bath • 1500 ft²
1 bedroom apartment for sale in Apartment 10 Solent View, St. Helens Parade, Southsea, Hampshire, PO4 — £235,000 • 1 bed • 1 bath • 515 ft²
2 bedroom apartment for sale in Apartment 8 Solent View, St. Helens Parade, Southsea, Hampshire, PO4 — £695,000 • 2 bed • 2 bath • 1363 ft²














































































































