Spacious three-bedroom home with private outdoor space and superb local amenities.
30ft light bay–fronted reception room with high ceilings
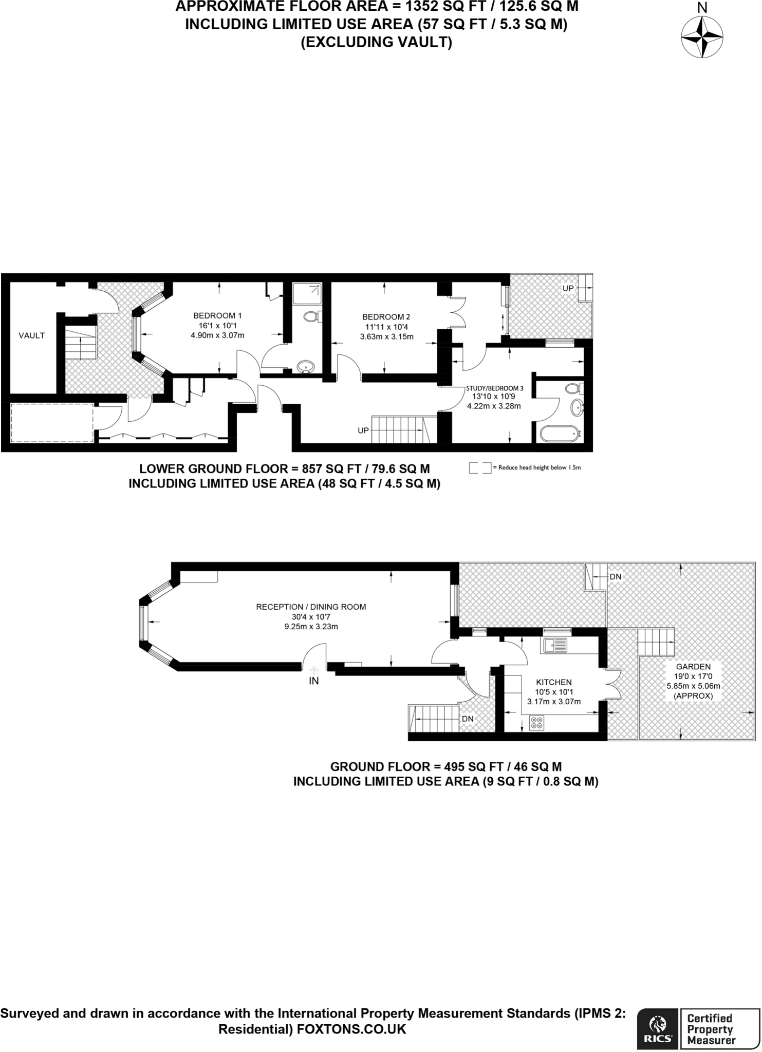
Set on a sought-after Chelsea address, this large duplex offers flexible family living across a generous 1,352 sq ft. A light bay-fronted reception runs to about 30 feet, creating an elegant main entertaining space beneath high ceilings and sash windows. The modern fitted kitchen opens directly to the private garden, useful for children and al fresco meals.
The principal bedroom has an en suite shower room, with a further double bedroom and a third room currently used as a study, served by a separate family bathroom. Good built-in storage and useful front storage space add practical convenience for a household. Lift access serves the lower floor, easing day-to-day comings and goings.
Buyers should note this is a leasehold property with 92 years remaining. Heating is by electric room heaters and the building has secondary glazing; the solid brick walls are assumed uninsulated, so further energy-efficiency upgrades may be desirable. The flat sits in a very affluent, inner-city area with excellent schools, fast broadband, and very low flood risk.
This home suits a family seeking central Chelsea living with straightforward, well-proportioned accommodation and a private outdoor space. It will appeal to those who value period character, high ceilings and proximity to Albert Bridge and the Kings Road, while being prepared to invest in modernisation to improve heating and insulation if desired.
3 bedroom terraced house for sale in Cheyne Gardens, London, SW3 — £2,299,000 • 3 bed • 2 bath • 1679 ft²
3 bedroom apartment for sale in Cheyne Gardens, Chelsea, SW3 — £2,500,000 • 3 bed • 2 bath • 1762 ft²
3 bedroom apartment for sale in Cheyne Gardens, Chelsea, London, SW3, United Kingdom, SW3 — £2,500,000 • 3 bed • 2 bath • 1704 ft²
3 bedroom flat for sale in Cheyne Gardens, Chelsea, London, SW3 — £2,850,000 • 3 bed • 2 bath • 1302 ft²
3 bedroom maisonette for sale in Cheyne Gardens, London, SW3 — £2,250,000 • 3 bed • 2 bath • 1300 ft²
1 bedroom flat for sale in Cheyne Gardens,
Chelsea, SW3 — £900,000 • 1 bed • 1 bath • 478 ft²






















































































































































































































