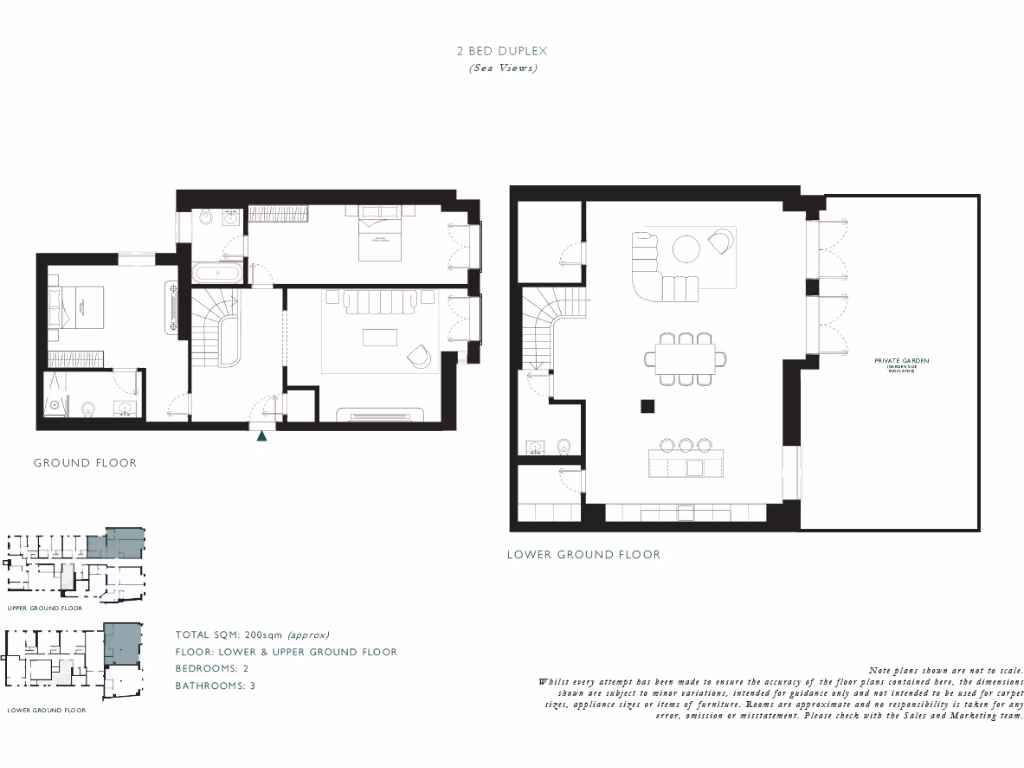
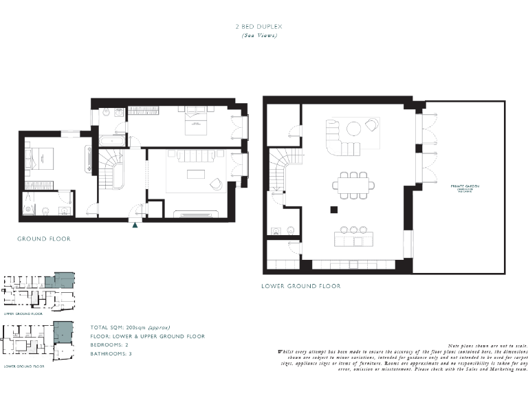
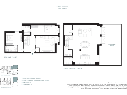
Large two-bedroom duplex with south-facing terrace and direct Solent views.
2,152 sq ft duplex with expansive internal living space
Occupying an expansive 2,152 sq ft within a converted iconic seafront hotel, this two-bedroom duplex offers generous, light-filled living and uninterrupted views across the Solent. The lower floor opens to a fully fitted kitchen with Neff appliances, utility room and a large south-facing private terrace — an exceptional outdoor space for coastal living. Both first-floor bedrooms have en-suites and the drawing room faces the sea, emphasising the apartment’s waterfront appeal. Lift access and allocated off-street parking add daily convenience.
Finished to a high specification with marble-style quartz worktops, brass fittings and high-quality sanitaryware, this apartment suits buyers seeking a premium seaside home or a standout second residence. Its size and layout create opportunities for flexible use: elegant main living areas, guest accommodation, or dedicated work-from-home space. Share of freehold tenure is typical for conversions of this kind and supports longer-term control over the building.
Buyers should note some practical considerations: the development sits in an area with higher recorded crime rates, which may affect insurance costs and lifestyle choices. Council tax banding is not provided. The listing images are indicative and do not show Apartment 2 specifically. Viewings are recommended to confirm finish and exact siting of the accommodation and terrace.
2 bedroom duplex for sale in Apartment 3 Solent View, St. Helens Parade, Southsea, Hampshire, PO4 — £325,000 • 2 bed • 1 bath • 708 ft²
2 bedroom apartment for sale in Apartment 8 Solent View, St. Helens Parade, Southsea, Hampshire, PO4 — £695,000 • 2 bed • 2 bath • 1363 ft²
2 bedroom flat for sale in St. Helens Parade, Southsea, PO4 — £325,000 • 2 bed • 1 bath • 530 ft²
2 bedroom flat for sale in St. Helens Parade, Southsea, PO4 — £750,000 • 2 bed • 2 bath • 1500 ft²
3 bedroom flat for sale in St. Helens Parade, Southsea, PO4 — £750,000 • 3 bed • 2 bath • 1500 ft²
2 bedroom flat for sale in St. Helens Parade, Southsea, PO4 — £695,000 • 2 bed • 2 bath • 1367 ft²










































