SW16 4NY - 4 bed spacious 4bed semi in Pollards Hill North, SW16 4NY

View on Property Piper

4 bedroom semi-detached house for sale in Pollards Hill North, Norbury, London, SW16

Summary - 72 POLLARDS HILL NORTH LONDON SW16 4NY

4 bed 1 bath Semi-Detached

Quiet street close to Norbury station and park, ideal for growing families.
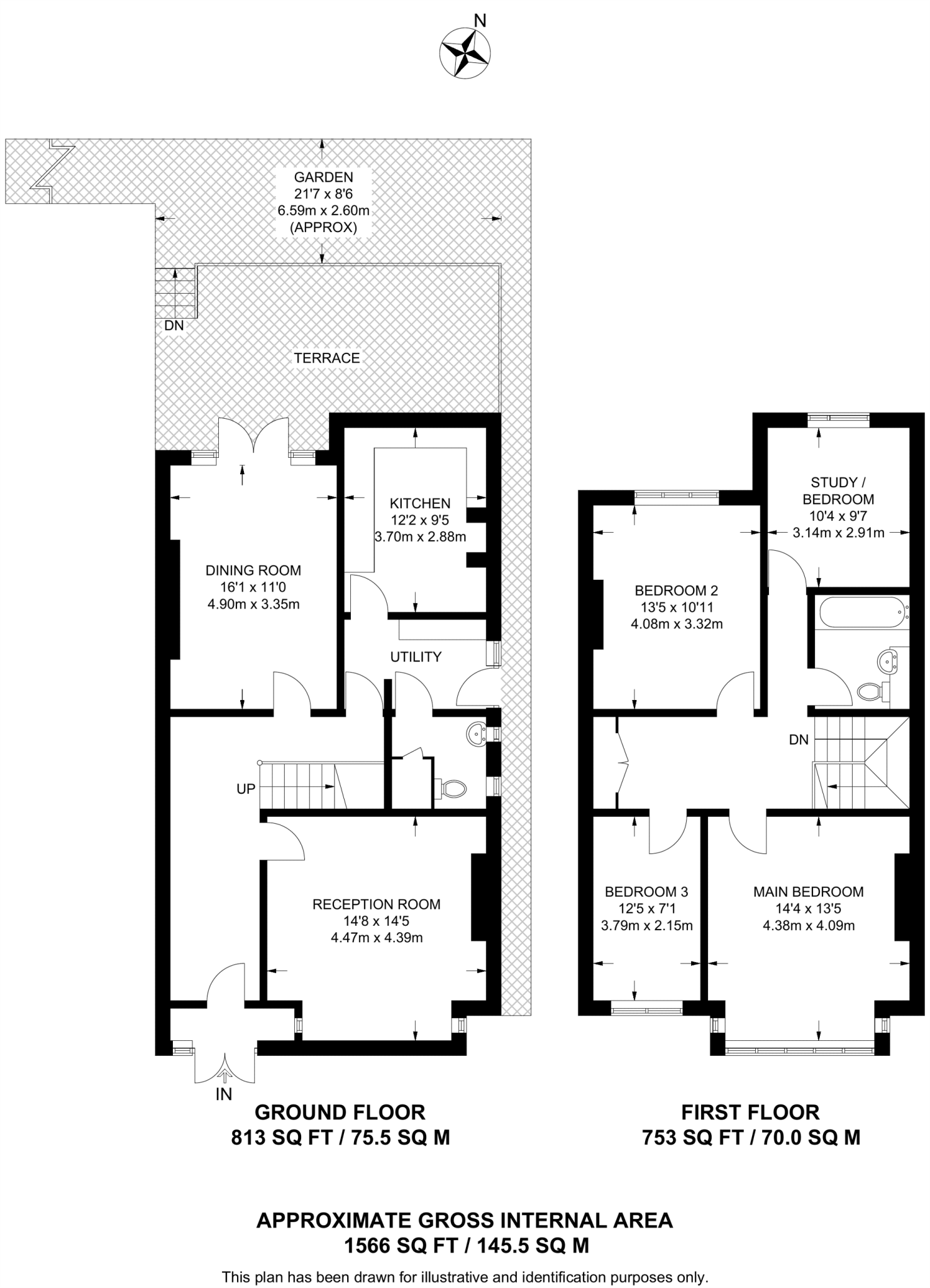
- Four double bedrooms, generous overall floor area (1,566 sq ft)
- Bright reception room and separate dining kitchen
- Decent private rear garden, fenced and suburban in character
- Private off-street parking for one vehicle
- Located between Norbury Rail Station and Pollards Hill Park
- Single bathroom only; may be insufficient for four bedrooms
- 1930s solid brick construction, likely no wall insulation
- Double glazing pre-2002; property needs modernisation throughout
This four-bedroom semi-detached home on a quiet Pollards Hill North street offers generous living space across multiple floors and a decent private garden. The bright reception room and separate kitchen with dining room create comfortable, flexible family living close to open green space. Off-street parking adds rare convenience for the area.

Set between Norbury Rail Station and Pollards Hill Park, the location combines suburban calm with good transport links and several well-regarded primary and secondary schools nearby. Broadband speeds are fast and mobile signal is excellent, supporting modern working-from-home needs.

The property is an original 1930s build with solid brick walls and double glazing installed before 2002. It is Freehold and heated by a mains-gas boiler and radiators. Practical drawbacks include a single bathroom, older glazing and assumed lack of wall insulation, and general need for modernisation throughout. These points affect immediate comfort but also offer clear scope for improvement and value-add for a renovating buyer or growing family.

Property Details

Image Descriptions

Floorplan Description

Rooms

Textual Property Features

Target Audience

AI Tags

Detected Visual Features

EPC Details

Nearby Schools

Nearest Bars And Restaurants

,,,,}

Nearest General Shops

,,}

Nearest Grocery shops

,,}

Nearest Supermarkets

,,}

Nearest Religious buildings

,,}

Nearest Medical buildings

,,,}

Nearest Airports

,,}

Nearest Leisure Facilities

,,,,}

Nearest Tourist attractions

,,}

Nearest Train stations

,,,,}

Nearest Bus stations and stops

,,,,}

Nearest Hotels

,,}

Tags

Local Market Stats

AirBnB Data

Similar Properties

Meta

High Res Images

Compatible Images

Low res Images

Thumbnails

Raw Images

High Res Floorplan Images

Compatible Floorplan Images

Low res Floorplan Images

FloorplanImages Thumbnail

Raw Floorplan Images