Characterful family home minutes from town and estuary with private parking.
- Deceptively spacious three-bedroom end-of-terrace over three floors
- Character features: stone fireplace, exposed beam, wood-burning stove
- Private off-street parking space and small gated courtyard
- Freehold tenure and available with no onward chain
- Built before 1900 with granite walls and internal insulation
- EPC Band D; Council Tax Band B (lower running costs)
- Small plot only — no substantial garden space
- High flood risk; purchase requires specialist flood advice
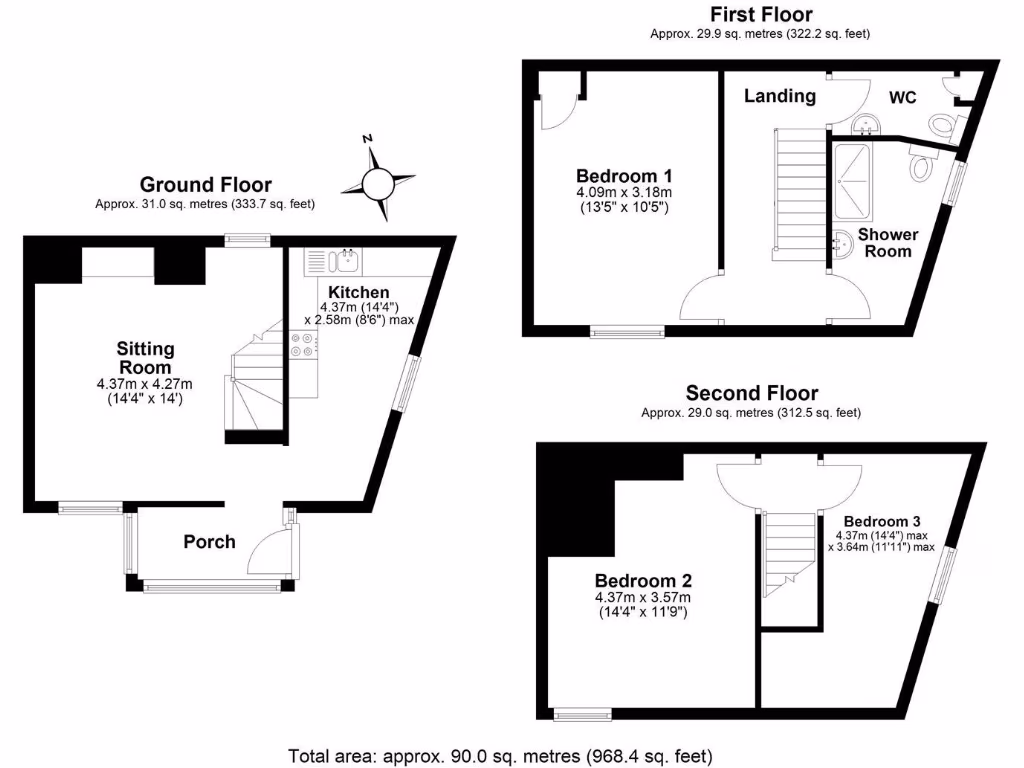
This deceptively spacious end-of-terrace cottage spreads comfortably over three floors and will appeal to families wanting character close to town amenities and the estuary. The ground floor opens to a charming open-plan sitting/dining room with a stone fireplace and wood-burning stove, a fitted kitchen and practical slate-floored porch; there is a useful WC on the first floor and three bedrooms upstairs.
Practical positives include a private off-street parking space, freehold tenure and no onward chain, plus gas central heating and double glazing. The property is solidly built in Victorian stone with internal insulation and offers 968 sq ft of accommodation arranged in a traditional layout — ready to live in while offering scope to personalise.
Buyers should note material points plainly: the property lies in a high flood-risk area and purchasers should obtain flood cover and specialist advice. There is a small plot/courtyard rather than a rear garden, and a first-floor cupboard forms part of a flying freehold with the neighbour’s stairs. EPC rating D and Council Tax Band B are factual details to factor into running costs.
In short, this corner cottage combines period character and a convenient town-centre location with sensible practical features. It suits a family or couple seeking a cosy, characterful home near the estuary, but buyers must check flood resilience and the flying freehold detail before committing.
2 bedroom cottage for sale in Baptist Lane, Kingsbridge, TQ7 — £235,000 • 2 bed • 1 bath • 841 ft²
2 bedroom terraced house for sale in Coronet Place, Fore Street, Kingsbridge, TQ7 — £224,950 • 2 bed • 1 bath • 860 ft²
2 bedroom terraced house for sale in Duncombe Street, Kingsbridge, TQ7 — £300,000 • 2 bed • 1 bath • 529 ft²
3 bedroom terraced house for sale in Ebrington Street, Kingsbridge, TQ7 — £275,000 • 3 bed • 1 bath • 856 ft²
2 bedroom semi-detached house for sale in Fore Street, Kingsbridge, TQ7 — £350,000 • 2 bed • 2 bath • 959 ft²
3 bedroom cottage for sale in Fore Street, Kingsbridge, TQ7 — £200,000 • 3 bed • 1 bath • 859 ft²






























































































































