SE1 8QD - 2 bedroom terraced house for sale in Ufford Street, London,…

View on Property Piper

2 bedroom terraced house for sale in Ufford Street, London, SE1

Summary - 27, Ufford Street SE1 8QD

2 bed 1 bath Terraced

**Standout Features:**
- Charming Victorian end-terrace house
- Freehold tenure
- Two generous double bedrooms
- Delightful private garden
- Off-street parking available (residents permit)
- Convenient location near transport links (Southwark and Waterloo stations)
- Potential for customization and renovation

**Notable Concerns:**
- Requires energy efficiency improvements (double-glazing installed before 2002)
- Solid brick walls without assumed insulation
- Above average council tax

**Summary:**
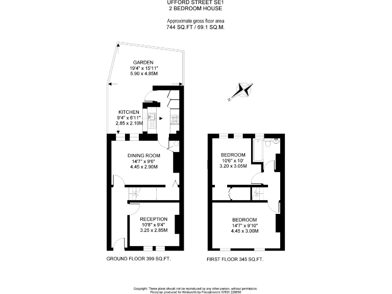
Nestled in the vibrant urban landscape of SE1, this delightful two-bedroom Victorian end-terrace house offers a unique opportunity for buyers looking to establish a cozy home in a fantastic location. Spanning 744 square feet, the well-designed layout includes a reception room, a dining area, and a charming kitchen that opens to a private garden, perfect for outdoor entertaining or relaxation. Upstairs, both generously sized bedrooms provide built-in storage and ample space for creativity.

While the home does require enhancements for energy efficiency, it already boasts double-glazing and mains gas heating, making it a promising investment. Located on Ufford Street, you're just a short distance from key transport routes and local amenities, including popular eateries and shops. With off-street parking available and strong rental potential, this property is ideal for first-time buyers or investors keen on creating a bespoke urban sanctuary. Don’t miss the chance to make this blank canvas your own.

Property Details

Brochure Descriptions

Image Descriptions

Floorplan Description

Rooms

Textual Property Features

Detected Visual Features

EPC Details

Nearby Schools

Nearest Bars And Restaurants

,,,,}

Nearest General Shops

,,}

Nearest Grocery shops

,,}

Nearest Supermarkets

,,}

Nearest Religious buildings

,,}

Nearest Medical buildings

,,,}

Nearest Airports

,,}

Nearest Leisure Facilities

,,,,}

Nearest Tourist attractions

,,}

Nearest Train stations

,,,,}

Nearest Bus stations and stops

,,,,}

Nearest Hotels

,,}

Tags

Local Market Stats

AirBnB Data

Similar Properties

Meta

High Res Images

Compatible Images

Low res Images

Thumbnails

Raw Images

High Res Floorplan Images

Compatible Floorplan Images

Low res Floorplan Images

FloorplanImages Thumbnail

Raw Floorplan Images