Compact, well-located flat with parking and garden access for first-time buyers.
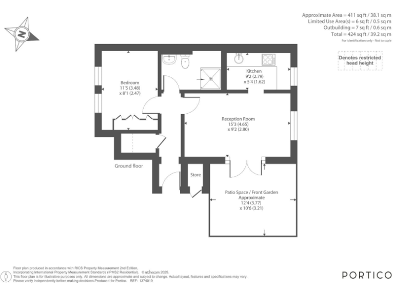
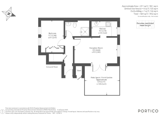
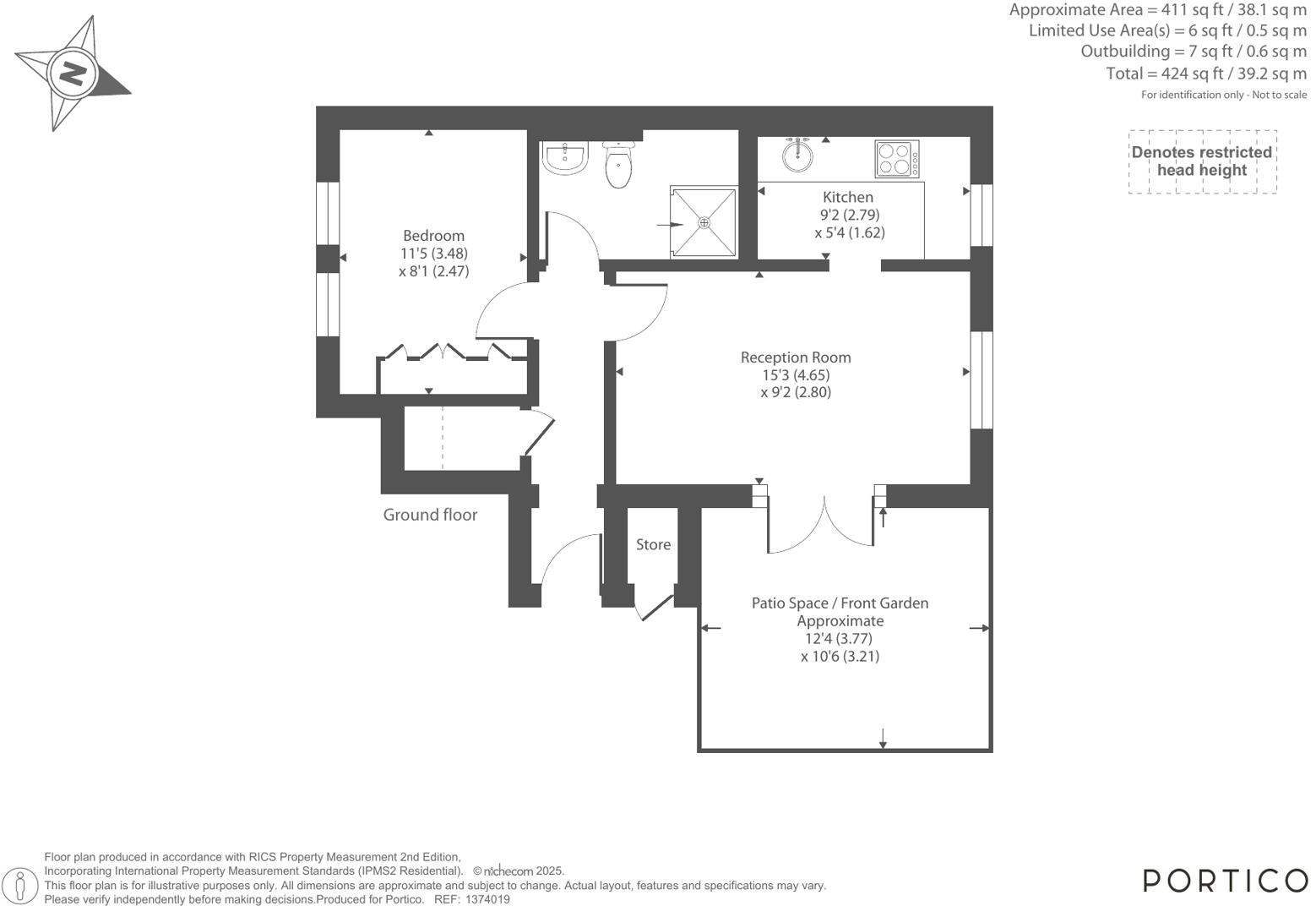
Ground-floor one-bedroom apartment with private patio access
Quietly set on the ground floor of a purpose-built development, this one-bedroom apartment offers practical city living with direct access to a private patio and well-kept communal gardens. The reception room is bright with large glazed doors leading to outside space, and a separate fitted kitchen provides everyday functionality. Allocated off-street parking and an own front door add convenience and independence not always found on ground-floor flats.
The flat is compact (around 424 sq ft) and best suited to a single occupant, couple or someone downsizing who values outdoor access and good transport links. The lease is long (166 years) and the property benefits from planned new windows/patio doors in 2025. Main heating is gas-fired boiler with radiators; broadband and mobile signals are strong, and local crime levels are low.
Buyers should note the service charge is approximately £2,364 per year; the property is leasehold with a peppercorn ground rent. The internal footprint is modest and would benefit from light updating in places to maximise resale or rental value. Proximity to Turnham Green, Stamford Brook and local parks, plus shops on Askew Road, will particularly appeal to commuters and first-time buyers seeking a compact, practical London base.
1 bedroom apartment for sale in Holley Road, London, W3 — £350,000 • 1 bed • 1 bath • 409 ft²
1 bedroom apartment for sale in Monmouth Close, London, W4 — £385,000 • 1 bed • 1 bath • 457 ft²
1 bedroom apartment for sale in Holley Road, Askew, W3 — £250,000 • 1 bed • 1 bath • 399 ft²
1 bedroom apartment for sale in Madeley Road, London, W5 — £525,000 • 1 bed • 1 bath • 513 ft²
1 bedroom flat for sale in Acton Lane, Chiswick, London, W4 — £300,000 • 1 bed • 1 bath • 388 ft²
1 bedroom apartment for sale in Northfield Avenue, London, W13 — £325,000 • 1 bed • 1 bath • 438 ft²










































