SK12 2HJ - 6 bedroom detached house for sale in 2 Waterside Farm, Wate…

View on Property Piper

6 bedroom detached house for sale in 2 Waterside Farm, Waterside, Disley, Stockport, SK12 2HJ, SK12

Summary - 2, WATERSIDE, STOCKPORT, DISLEY SK12 2HJ

6 bed 4 bath Detached

Substantial six-bedroom family home with indoor pool and sweeping gated drive..
- Six bedrooms and four bathrooms across three floors
- Over 4,000 sq ft of accommodation, high ceilings throughout
- Private indoor swimming pool and leisure room (maintenance required)
- Long gated driveway, large forecourt, carport/garage
- Generous, private gardens with Indian stone patio and woodland backdrop
- Constructed circa 1996–2002; period-style not original Victorian
- Broadband speeds slow locally; council tax described as quite expensive
- EPC C, mains gas heating, freehold, no flood risk
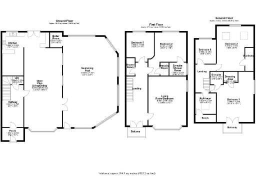
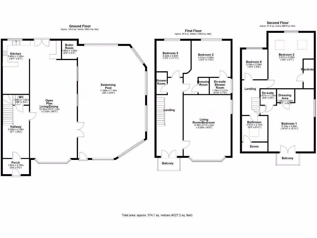
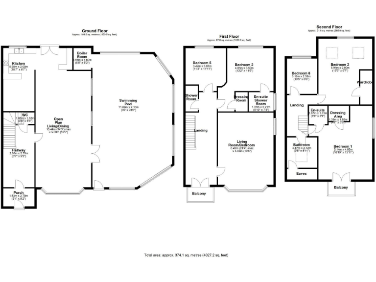
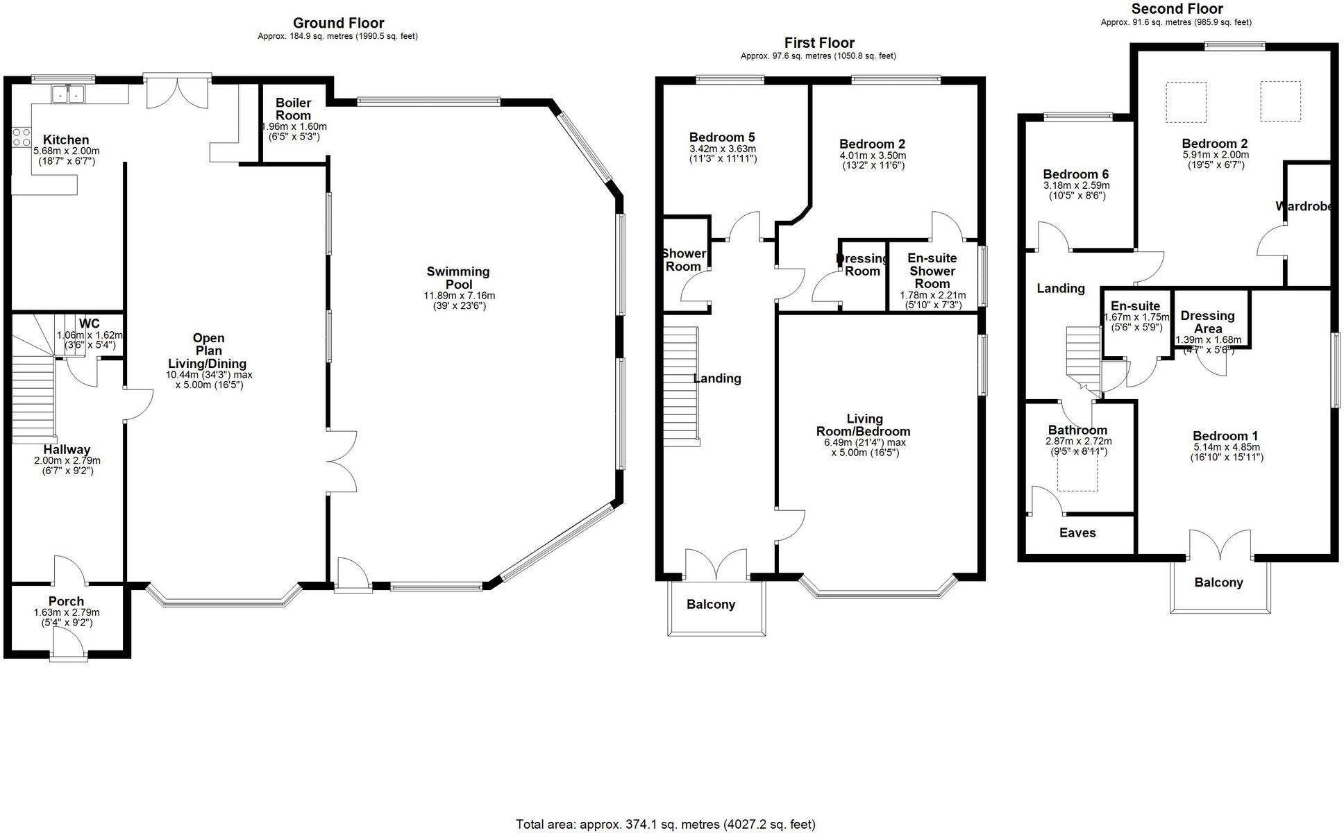
An impressive, versatile family house set well back behind gated grounds, 2 Waterside Farm offers more than 4,000 sq ft of living space with long driveway, private garden and far-reaching countryside views. The layout spans three floors with six bedrooms, four bathrooms, high ceilings and multiple reception rooms — ideal for a large family, multigenerational living or dedicated home working. The property’s standout feature is the private indoor swimming pool and leisure room, complemented by balconies from the principal bedroom and hallway.

The house blends period-style features (bay windows, high ceilings, chimney details) with later construction and double glazing. The plot is generous and private, with mature lawns, woodland backdrop and an Indian stone patio for outdoor dining. Off-street parking is generous via a wide forecourt and carport/garage. EPC band C and mains gas central heating are in place; the house is freehold and not in a flood-risk area.

Practical considerations are important: the property dates from the late 1990s/early 2000s and, while well-proportioned, would benefit from updating in places to suit modern finishes and energy standards. The indoor pool and large footprint increase ongoing running and maintenance costs. Broadband speeds are reported as slow locally and council tax is described as quite expensive. These factors should be weighed against the lifestyle benefits of space, privacy and proximity to the Peak District.

This is a distinctive countryside home for buyers seeking substantial accommodation and outdoor privacy rather than a low-maintenance lock-up-and-leave. It will suit families wanting space to spread out, buyers seeking leisure facilities at home, or those prepared to invest in modernisation to maximise the property’s long-term potential.

Property Details

Brochure Descriptions

Image Descriptions

Floorplan Description

Rooms

Textual Property Features

Target Audience

AI Tags

Detected Visual Features

EPC Details

Nearby Schools

Nearest Bars And Restaurants

,,,,}

Nearest General Shops

,,}

Nearest Grocery shops

,,}

Nearest Supermarkets

,,}

Nearest Religious buildings

,,}

Nearest Medical buildings

,,,}

Nearest Airports

}

Nearest Leisure Facilities

,,,,}

Nearest Tourist attractions

,,}

Nearest Train stations

,,,,}

Nearest Bus stations and stops

,,,,}

Nearest Hotels

,,}

Tags

Local Market Stats

Similar Properties

Meta

High Res Images

Compatible Images

Low res Images

Thumbnails

Raw Images

High Res Floorplan Images

Compatible Floorplan Images

Low res Floorplan Images

FloorplanImages Thumbnail

Raw Floorplan Images